电脑桌面
添加小米粒文库到电脑桌面
安装后可以在桌面快捷访问

2.12纽约大学绿色施工方案1011

2.12纽约大学绿色施工方案1011_第1页
1/33
2.12纽约大学绿色施工方案1011_第2页
2/33
2.12纽约大学绿色施工方案1011_第3页
3/33
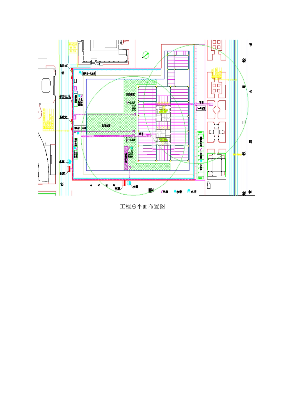
1. 工程概况工程名称陆家嘴竹园商贸区 2-13-4/5 地块大楼(上海纽约大学)工程地址上海市浦东新区松林路/向城路开、竣工时间2011 年 7 月 15 日~2014 年 5 月 31 日建设单位上海陆家嘴金融贸易区联合进展有限公司设计单位中国海诚工程科技股份有限公司(主体设计)上海申元岩土工程有限公司(基坑围护设计)监理单位上海金桥建设监理有限公司施工单位上海市第五建筑有限公司、中建钢构有限公司建筑层数地上 15 层、地下 2 层建筑高度主楼 71.3m裙房地上 6 层裙房 30.2m建筑面积63600㎡建筑造价3.96 亿元结构类型主楼为钢框架+钢筋混凝土核心筒混合结构地下部分为钢筋混凝土框架结构基础类型三轴止水帷幕、钻孔灌注桩围护、三轴搅拌桩加固、钻孔灌注桩桩基单体组成塔楼及裙房、地下二层车库(部分为人防区域)分包情况桩基、土方、基础、主体、安装、装饰、幕墙均在总包范围(土方:97350m3)周围环境东侧为长甲大厦裙楼(地上 4 层,桩基)以及上海期货大厦(地上 38 层,桩基),西侧为嘉瑞中心(地上 24 层,桩基),北侧为松林路,路外为香榭丽幼儿园(地上 3 层,桩基),南侧为宽约 23m 的中华植物园,之外是世纪大道。东侧有两根电力管线一根煤气管道。北侧松林路下有电力、煤气、雨水、污水、信息管线各一根。南侧有燃气、电气、上水、电缆、信息管线各一根。建筑产品设计节能本工程采纳断热铝合金半明框,低辐射双层中空玻璃幕墙,不透明部分采纳聚氨酯保温铝板;墙体采纳 200mm,100 mm 厚砂加气砌块;刚性上人屋面,局部采纳种植屋面;屋面保温采纳 40 厚挤塑聚苯板。 工程总平面布置图2.绿色施工目标2.1 工程难点及对策1.2.1 基础阶段难点一:根据现场勘察和图纸所示,场地四周市政道路下管线较多。施工过程中基坑的变形大小将直接影响这些市政管线能否正常使用。基坑南面 43m 外有地铁二号线区间,属于本工程基坑施工保护的重点。对策:在基坑施工阶段,尤其是挖土施工过程中,严格遵守国家的法律法规、设计的有关规定、施工组织设计的要求,利用“时空效应”,减小基坑变形。已安排专业单位对基坑周边变形、沉降、地下水位、支撑内力等进行监测,对每日监测资料进行跟踪分析,对异常情况,由总包召集各家单位协商实行相应措施。难点二:本工程红线范围内可利用场地极其有限,现场除了布置临时道路、办公设施、仓库外其他加工区域要多次调整。对策:强化材料、设备的调配管理力度,制定合理...

1、当您付费下载文档后,您只拥有了使用权限,并不意味着购买了版权,文档只能用于自身使用,不得用于其他商业用途(如 [转卖]进行直接盈利或[编辑后售卖]进行间接盈利)。
2、本站所有内容均由合作方或网友上传,本站不对文档的完整性、权威性及其观点立场正确性做任何保证或承诺!文档内容仅供研究参考,付费前请自行鉴别。
3、如文档内容存在违规,或者侵犯商业秘密、侵犯著作权等,请点击“违规举报”。

碎片内容

2.12纽约大学绿色施工方案1011

确认删除?
VIP
微信客服
  • 扫码咨询
会员Q群
  • 会员专属群点击这里加入QQ群
客服邮箱
回到顶部