电脑桌面
添加小米粒文库到电脑桌面
安装后可以在桌面快捷访问

变电站构支架基础及保护帽施工工艺标准

变电站构支架基础及保护帽施工工艺标准_第1页
1/5
变电站构支架基础及保护帽施工工艺标准_第2页
2/5
变电站构支架基础及保护帽施工工艺标准_第3页
3/5
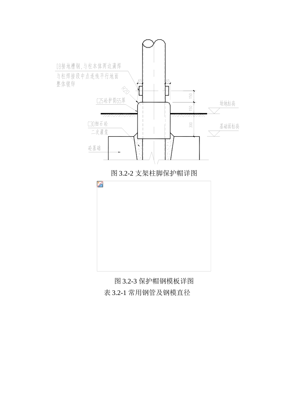
变电站构支架基础及保护帽施工工艺标准1 设计要求(1)基础混凝土强度符合设计要求。(2)基础部分混凝土一次浇注成型,不得设施工缝。(3)地面以上柱脚保护帽阳角做 R=20~30mm 倒角处理。为提高地面以上部分构支架柱脚保护帽的外观质量,保护帽采纳与防火墙要求一致的清水混凝土施工工艺。保护帽建议采纳钢模,钢模板制作成圆筒形,直径的大小根据施工图确定。保护帽的模板图、效果图见下图,站内常见钢管直径见下表。图 3.2-1 构架人字柱柱脚保护帽详图图 3.2-2 支架柱脚保护帽详图图 3.2-3 保护帽钢模板详图表 3.2-1 常用钢管及钢模直径(4)基础混凝土材料要求:第一,粗骨料采纳碎石,含泥量<2%;第二,砂采纳中砂,含泥量<5%。(5)质量要求:第一,构支架基础沿轴线通直、尺寸准确;第二,构支架基础中心定位偏差≤10mm,相间支架基础中心偏差≤10mm;第三,采纳杯口基础时,基础中心至杯口中心偏差≤10mm;第四,采纳预埋地脚螺栓与基础连接时,地脚螺栓上部要求采纳热镀锌处理,螺栓中心及螺栓群中心偏差≤2mm,单个基础及同类构支架基础地脚螺栓出露长度一致;第五,安装后,隔离开关支架倾斜度小于 1.5/1000 且柱顶偏差≤5mm,水平偏差≤5mm,组内支架中心偏差≤5mm,支架轴线中心偏差≤10mm;第六,安装后, CT、PT、TYD、避雷器等支架标高偏差≤10mm,水平偏差≤5mm,组内支架中心偏差≤5mm,轴线中心偏差≤10mm;第七,基础表面清洁、色泽一致、棱角分明、线条顺直,表面无砂带、黑斑和明显气泡,表面无蜂窝、麻面、裂纹和露筋现象;第八,如施工图或产品说明中对误差有具体要求,应满足较高标准。2 施工工艺要点(1)模板宜采纳 15mm 及以上厚度覆膜胶合板模板或钢模板体系。(2)模板表面要清理洁净,不得粘有干硬水泥砂浆等杂物,浇灌混凝土前,模板应浇水充分湿润,模板缝隙应用油毡纸等堵严,并均匀涂刷长效模板阻隔剂。(3)柱帽顶部阳角需做倒圆角处理,钢模顶角部需设置圆环型装饰木线条,做法与防火墙相同。(4)基础部分混凝土一次浇注成型,不得设施工缝。(5)浇筑混凝土应连续进行。如必须间歇,其间歇时间应尽量缩短。并应在前层混凝土初凝之前,将次层混凝土浇筑完毕。间歇的最长时间应按所有水泥品种及混凝土初凝条件确定,一般不得超过 2h。3 样板图片图 3.2-4 构架人字柱柱脚保护帽效果图图 3.2-5 支架柱脚保护帽效果图

1、当您付费下载文档后,您只拥有了使用权限,并不意味着购买了版权,文档只能用于自身使用,不得用于其他商业用途(如 [转卖]进行直接盈利或[编辑后售卖]进行间接盈利)。
2、本站所有内容均由合作方或网友上传,本站不对文档的完整性、权威性及其观点立场正确性做任何保证或承诺!文档内容仅供研究参考,付费前请自行鉴别。
3、如文档内容存在违规,或者侵犯商业秘密、侵犯著作权等,请点击“违规举报”。

碎片内容

变电站构支架基础及保护帽施工工艺标准

确认删除?
VIP
微信客服
  • 扫码咨询
会员Q群
  • 会员专属群点击这里加入QQ群
客服邮箱
回到顶部