电脑桌面
添加小米粒文库到电脑桌面
安装后可以在桌面快捷访问

模板工程顶板模板施工技术交底

模板工程顶板模板施工技术交底_第1页
1/11
模板工程顶板模板施工技术交底_第2页
2/11
模板工程顶板模板施工技术交底_第3页
3/11
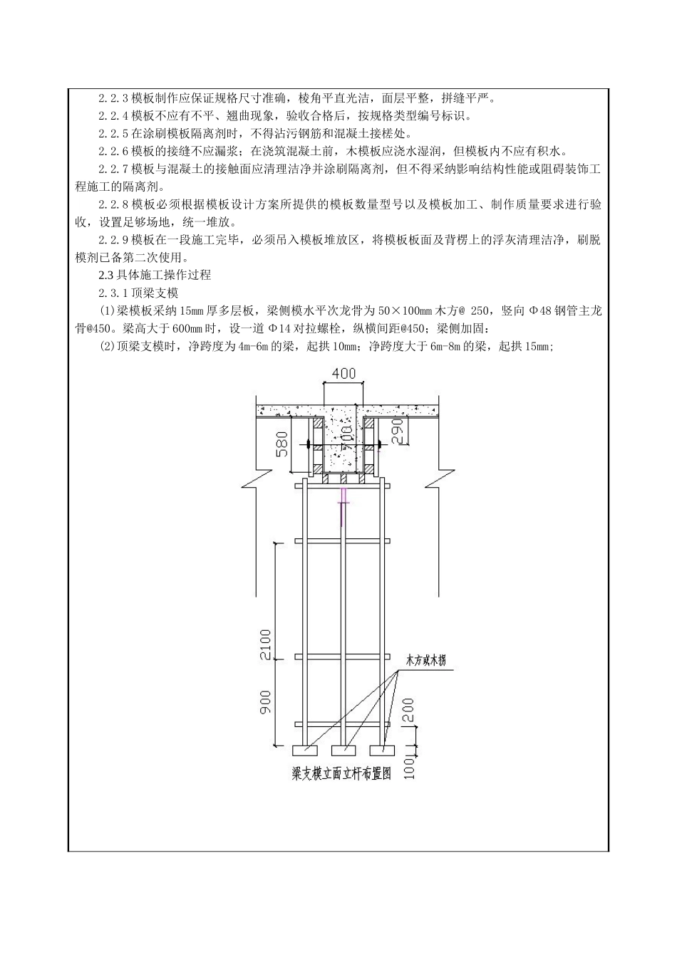
技术交底记录编 号021工程名称新村工程三标段交 底 日 期施工单位(集团)有限公司分项工程名称模板工程交底提要顶板模板施工技术交底一、作业准备1.1 技术准备1.1.1 仔细熟悉图纸,进行图纸会审,了解设计意图。1.1.2 根据设计要求和工程实际特点及现场施工条件编制模板施工方案,根据审核批准的施工方案进行现场技术交底。1.2 机具准备锤子、斧子、打眼电钻、活动扳子、手锯、水平尺、卷尺、线坠、撬棍等工具。1.3 材料准备1.3.1 本工程的竖向模板(墙柱模板)采纳 18mm 厚的多层板,木方为 50mm×100mm,对拉螺栓采纳 Φ14,外墙采纳止水螺栓,20*5mm 海绵条,次龙骨木方为 50mm×100mm,主龙骨木方为 100mm*100mm。钢管。1.3.2 脱模剂:脱模剂要求采纳水性脱模剂,要求脱模之后混凝土表面无污染。用量 15~20 平方米/千克。1.4 作业条件。1.4.1 测量放线:施工前弹好轴线,墙柱边线,及 50 控制线,墙体模板下口线,墙体上的 1m 线及钢筋上的 50 线,1.4.2 隐蔽验收:支模之前,要完成钢筋隐检、水电管线、预留、预埋等工作,并形成隐蔽验收记录。1.4.3 施工缝清理:支模之前,要对墙柱根部及外墙后浇带处的竖向施工缝的混凝土剔凿情况及平整度进行检查,要求混凝土表面无浮浆,石子外露。表面无积灰及杂物。1.4.4 交接检查:支模之前,对上一道交接工序进行复核(线、预留预埋、钢筋预留支撑点、混凝土接茬处理等),并形成工序交接检查记录。 1.4.5 导墙上水平施工缝处剔凿完成并冲洗洁净。二、施工操作工艺措施及主要做法要求2.1 工艺流程2.1.1 柱头模板和梁模板弹+500 线和梁下标高线→立杆支设→调整标高→安装梁底模→起拱→绑扎梁钢筋→安装梁侧模→垫钢筋垫块→检查验收2.1.2 顶板模板弹+500 控制线和楼板下标高线→满堂架搭设→铺设龙骨→中间起拱→铺钉模板→模板加固→检查验收2.2 施工操作要点及要求2.2.1 导墙上施工缝进行剔凿处理完毕后,在支模前应在施工缝两侧粘贴海绵条,海绵条要沿施工缝的走向及形状进行粘贴,不得超出缝边,应向后退 2mm。2.2.2 模板加工:模板配置过程中,要做到竖向结构混凝土施工时有利于控制混凝土的标高,模板加工时,尽量采纳整块板,一般情况下不准采纳小板拼装。2.2.3 模板制作应保证规格尺寸准确,棱角平直光洁,面层平整,拼缝平严。2.2.4 模板不应有不平、翘曲现象,验收合格后,按规格类型编号标识。2.2.5 在涂刷模板隔离剂时,不得沾污钢筋和混...

1、当您付费下载文档后,您只拥有了使用权限,并不意味着购买了版权,文档只能用于自身使用,不得用于其他商业用途(如 [转卖]进行直接盈利或[编辑后售卖]进行间接盈利)。
2、本站所有内容均由合作方或网友上传,本站不对文档的完整性、权威性及其观点立场正确性做任何保证或承诺!文档内容仅供研究参考,付费前请自行鉴别。
3、如文档内容存在违规,或者侵犯商业秘密、侵犯著作权等,请点击“违规举报”。

碎片内容

模板工程顶板模板施工技术交底

确认删除?
VIP
微信客服
  • 扫码咨询
会员Q群
  • 会员专属群点击这里加入QQ群
客服邮箱
回到顶部