电脑桌面
添加小米粒文库到电脑桌面
安装后可以在桌面快捷访问

外墙SBS防水技术交底VIP免费

外墙SBS防水技术交底_第1页
1/6
外墙SBS防水技术交底_第2页
2/6
外墙SBS防水技术交底_第3页
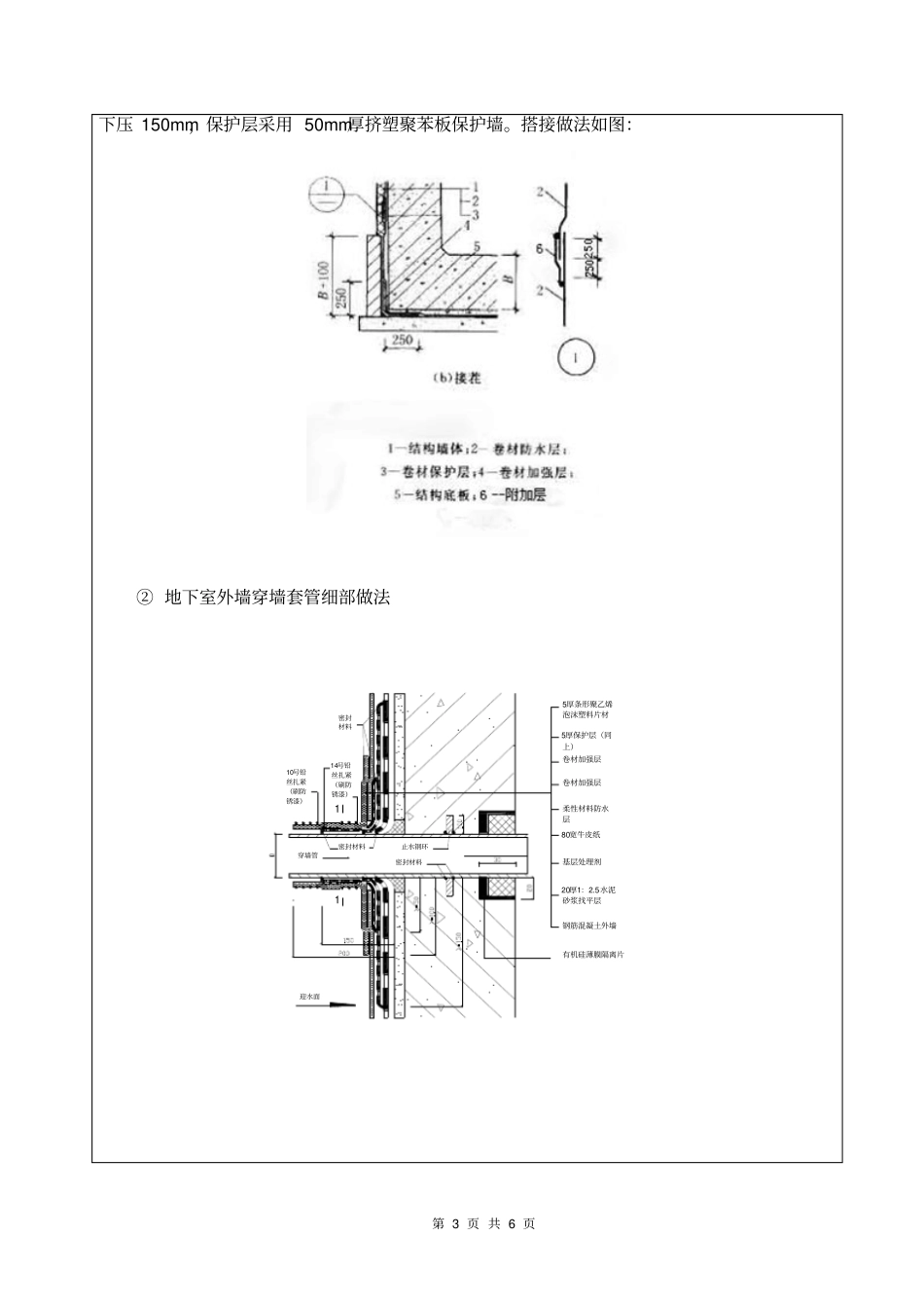
3/6
第1页共6页表C2—2技术、安全交底记录施工单位:河南省2017年8月15日编号:工程名称交底部位地下室外墙SBS防水共5页第1页交底内容:一、外爬架提升完毕,地下室外架已经拆除。可进行地下室外墙SBS卷材防水施工。二、施工准备1.施工前审核图纸,编制防水工程施工方案,并进行技术交底。地下防水工程必须由专业队伍施工,操作人员持证上岗。2.铺贴防水层的外墙基层需打磨平整无突起毛刺等,筏板上部打磨修补平整并经养护后干燥,含水率不大于9%;基层应平整、牢固,不空鼓开裂、不起砂。3防水层施工涂底胶底(冷底子油),应将基层表面清理干净。4施工用材料均匀易燃,因而应准备好相应的消防器材。5.防水所有材料为‖型防水卷材厚度不小于4mm,需化验合格后方可使用。三、主要用具:1、清理用具:高压吹风机、小平铲、笤帚。2、操作工具、电动搅拌器、油毛刷、铁桶、汽油喷灯或专用火焰喷枪、压子、手持压滚、铁辊、剪刀、量尺、1500mmφ30管(铁、塑料)、划(放)线用品。四、配套材料:1氯丁橡胶沥青胶粘剂,氯丁橡胶加入沥青及溶剂配制而成的黑色液体。用于油毡接缝的粘结。2橡胶沥青乳液:用于卷材粘结。3橡胶沥青嵌缝膏:用于特殊部位、管根、变形缝等处的嵌固密封。4汽油、二甲苯等:用于清洗工具及污染部位。五、操作工艺工艺流程:找出接头部分→基层清理→涂刷基层处理剂→铺贴附加层,管根、接地扁铁等部分→热熔铺贴卷材→热熔封边→做保护层1、找接头:施工前将筏板下预先留出的防水卷材接头找出并清理干净检查是否有破损情况,于有破损加一道同宽度的附加层。2、基层清理:施工前将验收合格的基层清理干净。3、涂刷基层处理剂:在基层表面满刷一道用汽油稀释的氯丁橡胶沥青胶粘剂,涂刷应均匀,不透底。4、铺贴附加层:管根、阴阳角部位加铺一层同材质的附加层卷材,且阴阳角两侧附加层的宽度各不小于25cm。按规范及设计要求将卷材裁成相应的形状进行铺贴。5、铺贴卷材:将改性沥青防水卷材按铺贴长度进行裁剪并卷好备用,操作时将已卷好的卷材,用φ30的管穿入卷心,卷材端头比齐开始铺的起点,点燃汽油喷灯或专用火焰喷枪,加热基层与卷材交接处,喷枪距加热面保持300mm左右的距离,往返喷烤、观察当卷材的沥青刚刚熔化时,铺贴时应两人扶稳两端向上缓缓滚动铺设,要求用力均匀、不窝第2页共6页气,铺设压边宽度应掌握好,防水接头应用上部压下部。满贴法搭接宽度为80mm。卷材接搭长边不小于100mm,短边不小于150mm。6热熔封边:卷材搭接缝处用喷枪加热,压合至边缘挤出沥青粘牢。卷材末端收头用橡胶沥青嵌缝膏嵌固填实。7外墙防水(SBS)下端从筏板接头处做起,上端高度应高出室外地面500mm处封头并用钢板加铆钉固定并刷水泥基渗透结晶厚度不下于2mm。六、质量标准保证项目:1高聚物改性沥青防水卷材和胶粘剂的规格、性能、配合比必须按设计和有关标准采用,应有合格的出厂证明。2卷材防水层特殊部位的细部作法,必须符合设计要求和施工及验收规范的规定,先施工细部验收合格后方可大面积施工。3防水层严禁有破损和渗漏现象。基本项目:1基层应平整,无空鼓、起砂,阴阳角应呈圆弧形或钝角。2改性沥青胶粘剂涂刷应均匀,不得有漏刷、透底和麻点等现象。3卷材防水铺附加层的宽度应符合规范要求;分层的接头搭接宽度应符合规范的规定,收头应嵌牢固。4卷材粘结应牢固,无空鼓、损伤、滑移翘边、起泡、皱折等缺陷。七、成品保护1地下卷材防水层部位预埋的管道,在施工中不得碰损和堵塞杂物。2卷材防水层铺贴完成后,应及时做好保护层,防止结构施工碰损防水层;外贴防水层施工完后,应按设计砌好保护墙。3卷材平面防水层施工,不得在防水层上放置材料及作为施工运输车道。八、应注意的质量问题1卷材搭接不良:接头搭接形式以及长边、短边的搭接宽度偏小,接头处的粘结不密实,接槎损坏、空鼓;施工操作中应按程序弹标准线,使与卷材规格相符,操作中齐线铺贴,使卷材接搭长边不小于100mm,短边不小于150mm。2空鼓:铺贴卷材的基层潮湿,不平整、不洁净、产生基层与卷材间窝气、空鼓;铺设时排气不彻底,窝住空气,也可使卷材间空鼓;施工时基层应充分干燥,卷材铺设应...

1、当您付费下载文档后,您只拥有了使用权限,并不意味着购买了版权,文档只能用于自身使用,不得用于其他商业用途(如 [转卖]进行直接盈利或[编辑后售卖]进行间接盈利)。
2、本站所有内容均由合作方或网友上传,本站不对文档的完整性、权威性及其观点立场正确性做任何保证或承诺!文档内容仅供研究参考,付费前请自行鉴别。
3、如文档内容存在违规,或者侵犯商业秘密、侵犯著作权等,请点击“违规举报”。

碎片内容

外墙SBS防水技术交底

您可能关注的文档

确认删除?
VIP
微信客服
  • 扫码咨询
会员Q群
  • 会员专属群点击这里加入QQ群
客服邮箱
回到顶部