电脑桌面
添加小米粒文库到电脑桌面
安装后可以在桌面快捷访问

别墅图纸超市---别墅图纸VIP免费

别墅图纸超市---别墅图纸_第1页
1/30
别墅图纸超市---别墅图纸_第2页
2/30
别墅图纸超市---别墅图纸_第3页
3/30
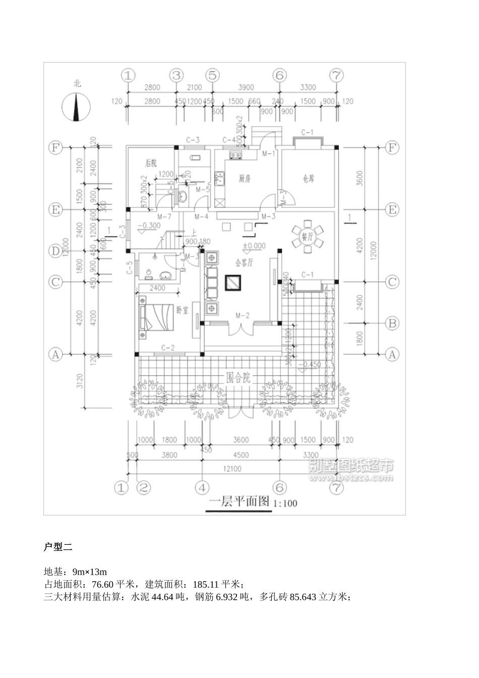
农村房子太老土?这样盖房才能让你心动!随着房价物价的迅速攀升,很多在外面打工的朋友感觉在城里买一套房子变得越来越艰难了,而且城市里住房面积小,空气质量越来越差;乡下就不一样了,乡下环境好,空气清新,手头有个二三十万就可以建一栋好点的房,再买辆车,生活也可以过得很潇洒。但目前绝大多数农村建房的师傅没有专业的施工图纸,建起来的房子千篇一律,感觉很土气,没有创新!下面我给大家介绍几款新农村户型图,先展示效果图和首层的平面图,需要完整的图纸请联系别墅图纸超市。一、新农村住宅户型户型一:地基:12m×12m占地面积:116平米,建筑面积:213.53平米;户型二地基:9m×13m占地面积:76.60平米,建筑面积:185.11平米;三大材料用量估算:水泥44.64吨,钢筋6.932吨,多孔砖85.643立方米;户型三地基:9m×12m占地面积:75.1平米,建筑面积:119.7平米;三大材料用量估算:水泥32.28吨,钢筋4.753吨,多孔砖74.179立方米;户型四:地基:12m×10m占地面积:109.68平方米,建筑面积:287.82平方米;二、双拼户型家里有两兄弟需要建房的可以考虑双拼的,一来兄弟间能有个照应,二来可以节省建筑成本。户型一地基:24m×10m占地面积:178.46平米,建筑面积:284.2平米;户型二地基:19m×12m占地面积:123平米,建筑面积:213.2平米;三、独栋别墅户型独栋别墅即独门独院,上有独立空间,下有私家花园领地,是私密性很强的独立式住宅,表现为上下左右前后都属于独立空间,一般房屋周围都有面积不等的绿地、院落。这一类型是别墅历史最悠久的一种,也是别墅建筑的终极形式。在城市里花50万买一百平米,在农村却可以建这样的别墅:户型一:地基:14m×15m占地面积:147.7平米,建筑面积:366.4平米;户型二:地基:13m×16m占地面积:130平方米,建筑面积:310平方米;户型三:地基:14m×13m建筑基地面积:170.38平米,建筑面积:412.72平米;户型四:地基:8m×12m占地面积:88.7平米,建筑面积:220.9平米;四、精选小成本户型如果感觉以上房屋建筑成本太高,手头又没有足够的资金,可以考虑以下户型:户型一:地基:12m×9m占地面积:80.3平米,建筑面积:80.3平米;三大材料用量估算:水泥22.85吨,钢筋2.77吨,多孔砖57.702立方米;户型二:地基:11m×9m占地面积:89.96平米,建筑面积:185.92平米;三大材料用量估算:水泥44.07吨,钢筋6.544吨,多孔砖90.525立方米;户型三:地基:11m×10m占地面积:89.66平米,建筑面积:174.61平米;三大材料用量估算:水泥40.61吨,钢筋5.929吨,多孔砖88.851立方米;户型四:地基:8m×12m占地面积:75.1平米,建筑面积:119.7平米;三大材料用量估算:水泥49.47吨,钢筋7.771吨,多孔砖86.371立方米;户型五:地基:8m×10m建筑面积:160平米户型六:地基:8m×10m占地面积:89.60平方米,建筑面积:194.94平方米

1、当您付费下载文档后,您只拥有了使用权限,并不意味着购买了版权,文档只能用于自身使用,不得用于其他商业用途(如 [转卖]进行直接盈利或[编辑后售卖]进行间接盈利)。
2、本站所有内容均由合作方或网友上传,本站不对文档的完整性、权威性及其观点立场正确性做任何保证或承诺!文档内容仅供研究参考,付费前请自行鉴别。
3、如文档内容存在违规,或者侵犯商业秘密、侵犯著作权等,请点击“违规举报”。

碎片内容

别墅图纸超市---别墅图纸

您可能关注的文档

确认删除?
VIP
微信客服
  • 扫码咨询
会员Q群
  • 会员专属群点击这里加入QQ群
客服邮箱
回到顶部