电脑桌面
添加小米粒文库到电脑桌面
安装后可以在桌面快捷访问

建筑类各种材料预算VIP免费

建筑类各种材料预算_第1页
1/28
建筑类各种材料预算_第2页
2/28
建筑类各种材料预算_第3页
3/28
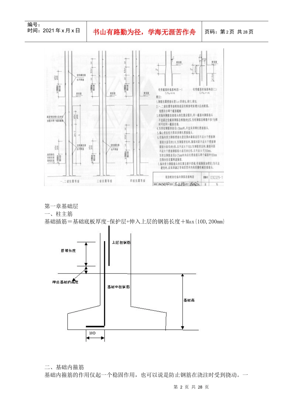
第1页共28页编号:时间:2021年x月x日书山有路勤为径,学海无涯苦作舟页码:第1页共28页建筑类各种材料预算1、受力主筋顶层连梁主筋长度=洞口宽度+左右两边锚固值Lae中间层连梁纵筋长度=洞口宽度+左右两边锚固值Lae2、箍筋顶层连梁,纵筋长度范围内均布置箍筋即N=(LAE-100/150+1)*2+(洞口宽-50*2)/间距+1(顶层)中间层连梁,洞口范围内布置箍筋,洞口两边再各加一根即N=(洞口宽-50*2)/间距+1(中间层)二、暗梁1、主筋长度=暗梁净长+锚固2、箍筋第三章柱KZ钢筋的构造连接第2页共28页第1页共28页编号:时间:2021年x月x日书山有路勤为径,学海无涯苦作舟页码:第2页共28页第一章基础层一、柱主筋基础插筋=基础底板厚度-保护层+伸入上层的钢筋长度+Max{10D,200mm}二、基础内箍筋基础内箍筋的作用仅起一个稳固作用,也可以说是防止钢筋在浇注时受到挠动。一第3页共28页第2页共28页编号:时间:2021年x月x日书山有路勤为径,学海无涯苦作舟页码:第3页共28页般是按2根进行计算(软件中是按三根)。第二章中间层一、柱纵筋1、KZ中间层的纵向钢筋=层高-当前层伸出地面的高度+上一层伸出楼地面的高度二、柱箍筋1、KZ中间层的箍筋根数=N个加密区/加密区间距+N+非加密区/非加密区间距-103G101-1中,关于柱箍筋的加密区的规定如下1)首层柱箍筋的加密区有三个,分别为:下部的箍筋加密区长度取Hn/3;上部取Max{500,柱长边尺寸,Hn/6};梁节点范围内加密;如果该柱采用绑扎搭接,那么搭接范围内同时需要加密。2)首层以上柱箍筋分别为:上、下部的箍筋加密区长度均取Max{500,柱长边尺寸,Hn/6};梁节点范围内加密;如果该柱采用绑扎搭接,那么搭接范围内同时需要加密。第三节顶层顶层KZ因其所处位置不同,分为角柱、边柱和中柱,也因此各种柱纵筋的顶层锚固各不相同。(参看03G101-1第37、38页)一、角柱第4页共28页第3页共28页编号:时间:2021年x月x日书山有路勤为径,学海无涯苦作舟页码:第4页共28页角柱顶层纵筋长度=层净高Hn+顶层钢筋锚固值,那么角柱顶层钢筋锚固值是如何考虑的呢?弯锚(≦Lae):梁高-保护层+12da、内侧钢筋锚固长度为直锚(≧Lae):梁高-保护层≧1.5Laeb、外侧钢筋锚固长度为柱顶部第一层:≧梁高-保护层+柱宽-保护层+8d柱顶部第二层:≧梁高-保护层+柱宽-保护层注意:在GGJV8.1中,内侧钢筋锚固长度为弯锚(≦Lae):梁高-保护层+12d直锚(≧Lae):梁高-保护层外侧钢筋锚固长度=Max{1.5Lae,梁高-保护层+柱宽-保护层}二、边柱边柱顶层纵筋长度=层净高Hn+顶层钢筋锚固值,那么边柱顶层钢筋锚固值是如何考虑的呢?边柱顶层纵筋的锚固分为内侧钢筋锚固和外侧钢筋锚固:a、内侧钢筋锚固长度为弯锚(≦Lae):梁高-保护层+12d直锚(≧Lae):梁高-保护层b、外侧钢筋锚固长度为:≧1.5Lae注意:在GGJV8.1中,内侧钢筋锚固长度为弯锚(≦Lae):梁高-保护层+12d第5页共28页第4页共28页编号:时间:2021年x月x日书山有路勤为径,学海无涯苦作舟页码:第5页共28页直锚(≧Lae):梁高-保护层外侧钢筋锚固长度=Max{1.5Lae,梁高-保护层+柱宽-保护层}三、中柱中柱顶层纵筋长度=层净高Hn+顶层钢筋锚固值,那么中柱顶层钢筋锚固值是如何考虑的呢?中柱顶层纵筋的锚固长度为弯锚(≦Lae):梁高-保护层+12d直锚(≧Lae):梁高-保护层注意:在GGJV8.1中,处理同上。第四章板在实际工程中,我们知道板分为预制板和现浇板,这里主要分析现浇板的布筋情况。板筋主要有:受力筋(单向或双向,单层或双层)、支座负筋、分布筋、附加钢筋(角部附加放射筋、洞口附加钢筋)、撑脚钢筋(双层钢筋时支撑上下层)。一、受力筋软件中,受力筋的长度是依据轴网计算的。受力筋长度=轴线尺寸+左锚固+右锚固+两端弯钩(如果是Ⅰ级筋)。根数=(轴线长度-扣减值)/布筋间距+1二、负筋及分布筋负筋长度=负筋长度+左弯折+右弯折负筋根数=(布筋范围-扣减值)/布筋间距+1分布筋长度=负筋布置范围长度-负筋扣减值负筋分布筋根数=负筋输入界面中负筋的长度/分布筋间距+1三、附加钢筋(角部附加放射筋、洞口附加钢筋)、支撑钢筋(双层钢筋时支撑...

1、当您付费下载文档后,您只拥有了使用权限,并不意味着购买了版权,文档只能用于自身使用,不得用于其他商业用途(如 [转卖]进行直接盈利或[编辑后售卖]进行间接盈利)。
2、本站所有内容均由合作方或网友上传,本站不对文档的完整性、权威性及其观点立场正确性做任何保证或承诺!文档内容仅供研究参考,付费前请自行鉴别。
3、如文档内容存在违规,或者侵犯商业秘密、侵犯著作权等,请点击“违规举报”。

碎片内容

建筑类各种材料预算

您可能关注的文档

确认删除?
VIP
微信客服
  • 扫码咨询
会员Q群
  • 会员专属群点击这里加入QQ群
客服邮箱
回到顶部