电脑桌面
添加小米粒文库到电脑桌面
安装后可以在桌面快捷访问

地下室外墙防水技术交底(同名10475)VIP免费

地下室外墙防水技术交底(同名10475)_第1页
1/10
地下室外墙防水技术交底(同名10475)_第2页
2/10
地下室外墙防水技术交底(同名10475)_第3页
3/10
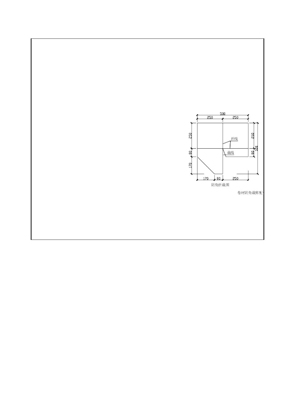
安全技术交底记录表C2-1编号XX楼工程名称XXXXXXXX交底日期年月日施工单位XXXXXXX有限公司分项工程名称防水工程交底提要地下室外墙防水技术交底交底内容:本次施工瀚海北金项目地下室外墙,3+4厚SBS改性沥青防水卷材。2013年1月19日~31日,工期12天,整个地下室外墙要全部施工完毕,为年前回填土创造条件。一、材料要求防水卷材:3mm、4mm厚SBS改性沥青防水卷材,卷材幅宽为1米,每卷卷材长10米。基层处理剂:采用再生橡胶改性沥青的汽油溶液为基层处理剂。接缝密封材料:采用改性沥青密封材料,用于立面防水卷材收头密封及外墙管根等特殊部位的粘结处理。其他辅助材料:主要是工业汽油,用于粘结剂稀释,机具清洗。二、主要机具小平铲,扫帚,汽油喷灯,滚动刷,铁桶,压子,剪刀,钢卷尺,小线绳,粉笔,灭火器。三、作业条件:1、防水基层检查验收,应达到如下要求(防水基层验收合格,办理隐检后,方可进行下道工序):1.1基层坚实、有足够强度,表面清洁干燥,无浮土、砂粒等污物;1.2基层表面应平整、光滑、无松动,对于残留的砂浆或突起物应以铲刀削平,不允许有凹凸不平及起砂现象,阴阳角抹成圆弧形,圆弧半径为:阳角10mm;阴角50mm。基层表面平整度检查:2m靠尺检查,与靠尺最大空隙≤5mm。1.3基层应干燥,含水率应小于9%,具体检测方法为(参考):用1m2见方的防水卷材覆盖在基层上3-4小时,揭开卷材后基层表面和卷材覆盖面干燥、无水印则可视基层干燥,可以进行卷材的铺贴。2、防水卷材合格证、准用证、检验报告、复试报告齐全,材料现场见证取样送检合格。防水施工分包单位资质齐备,现场管理人员和操作人员持证上岗。3、防水卷材和配套材料均为易燃材料,集中存放,有专人管理,并准备好足够干粉灭火器,严防火灾发生。4、做好安全防护:基坑边已做好围护,外架安全平网已铺挂到位,并通过验收。5、做好排水措施:已在基坑周圈做好排水沟,防止雨水浸泡基坑。6、做好照明工作:施工照明工作,配备足够灯具。四、操作工艺1、工艺流程:基层处理→基层处理剂涂刷→附加层施工→第一层SBS防水卷材铺贴→第二层SBS防水卷材铺贴→卷材收头粘结、接头密封→验收→防水保护层施工→回填土施工。2、基层处理:地下室结构施工完毕并经验收合格后,开始进行地下室外墙防水施工。将外墙上气泡用水泥腻子刮平,同时将墙面粘连的砂浆、突出物、螺杆头用小铲铲除或用水泥砂浆抹成1:6的缓坡。外墙阴阳角做半径为50mm的圆弧形。使外墙面达到规范规定的防水基层要求。同时拆除临时保护墙,并将卷材甩槎整理好,对于受损的部位必须先行修理。3、基层处理剂涂刷:采用专用基层处理剂,稀释后在基层表面均匀涂刷一遍。涂刷基层处理剂时,要按一个方向进行,厚薄均匀,不漏底、不堆积。待基层处理剂干燥后(干燥4小时,手感不粘),即可进行阴阳角附加层施工及墙面卷材的施工。4、铺贴附加层:管根、后浇带、阴阳角等部位加铺一层同质卷材附加层,将卷材裁成相应的形状进行粘结(图示见下页),宽度50cm(超过转折处或后浇带250mm)。卷材与管根连接要求见下页图。附加层施工必须粘贴牢固,施工要细心。项目质检员对此部位专门做隐蔽工程检查,并作书面记录。5、外墙立面SBS防水卷材铺贴:为保证卷材铺贴质量,方便操作,卷材施工应按工序施工,依次如下:5.1首先,用小白线和彩色粉弹线分档、确定卷材实际铺贴位置、铺贴间距,应符合有关卷材铺贴技术要求(见第三条“技术质量要求及注意事项”所述)。5.2然后选择底板西南角一个区范围做样板。经项目验收合格后,进行大面积施工。5.3按分档位置要求,将改性沥青防水卷材按铺贴长度和弹线尺寸裁剪并卷好备用,外墙防水层直接从底板甩出的接头开始,按搭接要求从下往上进行外墙防水层施工。平立面交接处搭接位置应在平面上,先施工立面,预留下部搭接范围卷材,待外架拆除后施工平面。点燃汽油喷灯,烘烤卷材底面与基层交界处,使卷材底面的改性沥青熔化,沿卷材幅宽往返加热,边烘烤边向上滚动卷材,排除卷材与基层间的气体,使卷材与基层粘结牢固。要求用力均匀、不窝气,掌握好铺设压边宽度。火焰喷灯与卷材底面的距离控制在300~500mm。...

1、当您付费下载文档后,您只拥有了使用权限,并不意味着购买了版权,文档只能用于自身使用,不得用于其他商业用途(如 [转卖]进行直接盈利或[编辑后售卖]进行间接盈利)。
2、本站所有内容均由合作方或网友上传,本站不对文档的完整性、权威性及其观点立场正确性做任何保证或承诺!文档内容仅供研究参考,付费前请自行鉴别。
3、如文档内容存在违规,或者侵犯商业秘密、侵犯著作权等,请点击“违规举报”。

碎片内容

地下室外墙防水技术交底(同名10475)

确认删除?
VIP
微信客服
  • 扫码咨询
会员Q群
  • 会员专属群点击这里加入QQ群
客服邮箱
回到顶部