电脑桌面
添加小米粒文库到电脑桌面
安装后可以在桌面快捷访问

外窗收口施工技术指导手册VIP免费

外窗收口施工技术指导手册_第1页
1/6
外窗收口施工技术指导手册_第2页
2/6
外窗收口施工技术指导手册_第3页
3/6
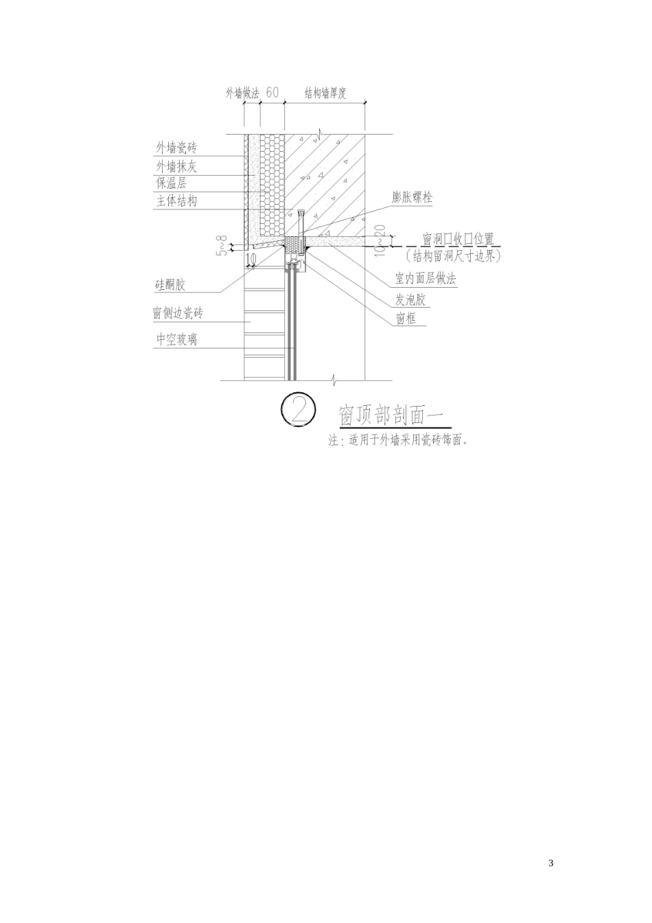
外窗收口施工技术指导手册本篇指导手册适用于住宅、公共建筑铝合金门窗的收口、安装。1弹线定位沿建筑全高用大线坠(高层建筑采用经纬仪找垂直线)引测窗边线,在每层门窗口划线标记。并逐层抄测门窗洞口距门窗边线实际距离,需要进行处理的应做记录和标识。门窗的水平位置以楼层室内+500mm的水平线为准上反量出窗下皮标高,弹线找直。每一层必须保持窗下皮标高一致。墙厚方向的安装位置应按设计要求和窗台板的宽度确定。2门窗洞口允许偏差门窗洞口允许偏差应符合下表:项目允许偏差(mm)洞口高度、宽度±5洞口对角线长度差≤5洞口侧边垂直度≤2洞口中心线与基准线偏差≤5洞口下平面标高±53门窗洞口收口施工工艺3.1窗边收口做法详图:12343.2工艺做法1)清除杂物,对突出部位混凝土进行剔凿处理。2)在抹灰收口前五天将混凝土墙面用胶灰拉毛处理,12小时后对拉毛部位进行洒水养护三天以上。3)30mm以下的缝隙直接用1:3水泥砂浆分层抹灰收口;30~50mm的缝隙,用1:3水泥砂浆分层抹灰收口并钉钢板网(网眼25X25mm,丝径0.8mm)对抹灰部位进行加强防裂处理;50mm以上缝隙,植筋2Φ6@300钢筋并通长绑扎2Φ6钢筋,用C20细石混凝土对缝隙对缝隙进行填补后,抹灰收口。4)外墙抹灰收口时必须收进门窗框里侧约10mm,且与门框四周预留510~20mm空隙,以便门窗框周围打发泡胶进行保温防腐处理,外墙面贴砖时将发泡胶割平门窗框,将门窗框四周用粘砖胶粉抹压密实,确保粘灰率达到100%;同时外墙面砖门窗收口时,窗楣做到里口比外口高5~8mm;窗台做15~20mm泛水,窗台砖比窗台框下口低3~5mm,窗楣、窗两侧面砖均距窗框5mm,缝内打密封胶。6

1、当您付费下载文档后,您只拥有了使用权限,并不意味着购买了版权,文档只能用于自身使用,不得用于其他商业用途(如 [转卖]进行直接盈利或[编辑后售卖]进行间接盈利)。
2、本站所有内容均由合作方或网友上传,本站不对文档的完整性、权威性及其观点立场正确性做任何保证或承诺!文档内容仅供研究参考,付费前请自行鉴别。
3、如文档内容存在违规,或者侵犯商业秘密、侵犯著作权等,请点击“违规举报”。

碎片内容

外窗收口施工技术指导手册

您可能关注的文档

确认删除?
VIP
微信客服
  • 扫码咨询
会员Q群
  • 会员专属群点击这里加入QQ群
客服邮箱
回到顶部