电脑桌面
添加小米粒文库到电脑桌面
安装后可以在桌面快捷访问

【农村自建房】自建房化粪池图集VIP免费

【农村自建房】自建房化粪池图集_第1页
1/23
【农村自建房】自建房化粪池图集_第2页
2/23
【农村自建房】自建房化粪池图集_第3页
3/23
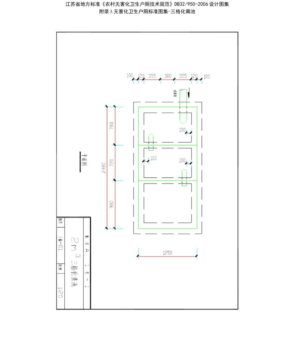
江苏省地方标准《农村无害化卫生户厕技术规范》DB32/950-2006设计图集附录A无害化卫生户厕标准图集-三格化粪池DB32/950-20062DB32/950-20063DB32/950-20064DB32/950-20065DB32/950-20066DB32/950-20067DB32/950-20068DB32/950-20069DB32/950-200610DB32/950-200611DB32/950-200612DB32/950-2006附录B无害化卫生户厕标准图集-双翁漏斗式厕所DB32/950-200614DB32/950-2006附录C无害化卫生户厕标准图集-粪尿分集式厕所15DB32/950-2006附录D无害化卫生户厕标准图集-预制化粪池DB32/950-2006附录E无害化卫生户厕标准图集-独立式厕所117DB32/950-200618DB32/950-200619DB32/950-200620DB32/950-200621DB32/950-20062220

1、当您付费下载文档后,您只拥有了使用权限,并不意味着购买了版权,文档只能用于自身使用,不得用于其他商业用途(如 [转卖]进行直接盈利或[编辑后售卖]进行间接盈利)。
2、本站所有内容均由合作方或网友上传,本站不对文档的完整性、权威性及其观点立场正确性做任何保证或承诺!文档内容仅供研究参考,付费前请自行鉴别。
3、如文档内容存在违规,或者侵犯商业秘密、侵犯著作权等,请点击“违规举报”。

碎片内容

【农村自建房】自建房化粪池图集

wxg+ 关注
实名认证
内容提供者

该用户很懒,什么也没介绍

确认删除?
VIP
微信客服
  • 扫码咨询
会员Q群
  • 会员专属群点击这里加入QQ群
客服邮箱
回到顶部