电脑桌面
添加小米粒文库到电脑桌面
安装后可以在桌面快捷访问

五种支架搬运车参数VIP免费

五种支架搬运车参数_第1页
1/17
五种支架搬运车参数_第2页
2/17
五种支架搬运车参数_第3页
3/17
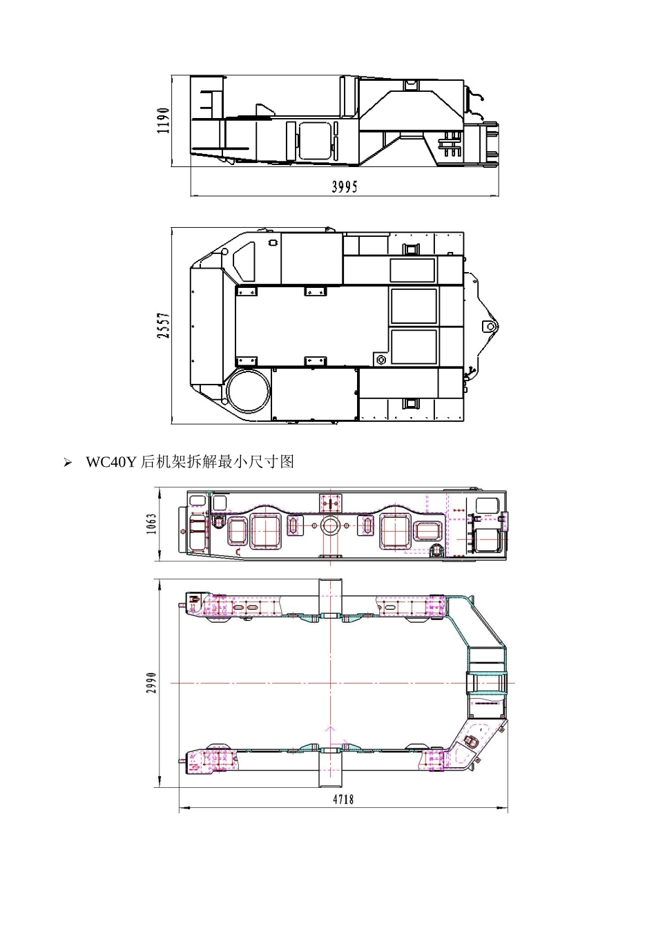
WC40Y支架搬运车(报价405万元/台)技术参数:1、外形尺寸(mm):9036×3500×17002、结构类型:中央铰接3、离地间隙(mm):2904、框架内宽:1750mm5、每档的速度(空载)(km/h):0-246、每档的速度(满载)(km/h):0-127、满载时爬坡速度/坡度(km/h):6/6°8、总功率(kW):2009、总重量(kg):2700010、载重(kg):最大4000011、适应液压支架类型:中心距≤1.75m11、有害气体指数:一氧化碳(CO)≤0.1%,氮氧化物(NOX)≤0.08%12、传动形式:液压传动13、驱动轮数量:414、制动轮数量:415、工作制动方式:湿式弹簧轮边制动16、工作制动距离(mm):≤800017、紧急制动方式:湿式弹簧轮边制动18、紧急制动距离(mm):≤500019、驾驶室位置:车右前侧20、转向方式:方向盘/液压双转向油缸21、绞接方式:中央铰接22、内转弯半径(mm):≤265023、外转弯半径(mm):≤670024、最大接地比压:0.43MPa(满载)WC40Y前机架总装尺寸图:WC40Y后机架总装尺寸图:WC40Y前机架拆解最小尺寸图WC40Y后机架拆解最小尺寸图WC40Y(A)支架搬运车(报价419万元/台)主要参数:长×宽×高(mm):9036×3500×1700自重(t):约28载重(t):40行走速度(km/h)空载:0~24满载:0~12离地间隙(mm):220后车架底板距地面高度(mm):385框架内宽:1750mm前轮胎接地比压(载40t):约0.33MPa后轮胎接地比压(载40t):约0.43MPa转向方式:方向盘/液压双转向油缸铰接方式:中央铰接转弯半径(内径/外径mm):2620/6700液压系统最高压力(MPa):32爬坡能力(º):12发动机净功率(kW)(1h):200发动机标定转数(rpm):2200液压绞车拉力:120kN推料(支架)架推力:230kN(两缸)推料(支架)架行程:1000mm铲板提升油缸提升力:320kN(两缸)WC40Y(A)后机架总装尺寸图:WC40Y(A)后机架拆解最小尺寸图WC40Y(B)支架搬运车(报价415万元/台)主要参数:长×宽×高(mm):9036×2950×1700自重(t):26载重(t):30行走速度(km/h)空载:0~24满载:0~14离地间隙(mm):220框架内宽:1500mm转向方式:方向盘/液压双转向油缸铰接方式:中央铰接转弯半径(内径/外径mm):2700/6800液压系统最高压力(MPa):32允许纵向最大坡度(º):12允许横向最大坡度(º):6发动机净功率(kW)(1h):200发动机标定转数(rpm):2200液压绞车拉力:120kN推料(支架)架推力:230kN(两缸)推料(支架)架行程:1000mm铲板提升油缸提升力:320kN(两缸)WC40Y(B)后机架总装尺寸图:WC40Y(B)后机架拆解最小尺寸图A和B型车模型WC55Y支架搬运车(报价650万元/台)主要参数:外形尺寸:9560mm×3650mm×1824mm自重:32吨最大载重量:55吨最小离地间隙:300mm框架内宽:1800mm总功率:260空载最快行走速度:≥22km/h满载最快行走速度:≥10km/h变速形式:无级变速驱动轮数:4制动轮数:4制动距离:≤8m框架内宽:1800mm驱动形式:液压马达+轮边减速器制动形式:液压制动+轮边制动器噪音:≤90dB(A)转弯半径:≤2.8m(内),≤7.1m(外)尾气指标:体积浓度CO≤500ppm,NOx≤800ppmWC55Y前机架总装尺寸图:WC55Y后机架总装尺寸图:WC55Y前机架拆解最小尺寸图WC55Y后机架拆解最小尺寸图WC55Y支架搬运车模型WC25EJ支架搬运车(铲板式)((报价405万元/台))1型号WC25EJ2驱动方式4×4全轮驱动3型式铲板式、前后机架铰接4驾驶操纵横向驾驶5防爆柴油机型号TY6121ZLFB026防爆柴油机额定功率/转速160kW/2200r/min7最大扭矩/转速830N·m/1500r/min8防爆柴油机启动方式压缩空气启动9装载质量(kg)2500010整车整备质量(kg)2805011最大总质量(kg)5305012轴距(mm)320013外形尺寸(mm)全长:9500(不包括牵引钩)14总宽:220015总高:190016铲板最大举升角11.5°17铲板向下最大摆动角度15°18最小离地间隙(mm)不小于275mm19各档最大车速空载1档0~3.8km/h2档0~9.0km/h3档0~19.6km/h20满载1档0~3.8km/h2档0~8.8km/h3档0~18.8km/h21最大爬坡度(在干硬路面上)14°22最小通过能力半径(m)2.765(内)5.92(外)23最大牵引力(kN)21024满载最大制动距离(m)不大于8m(在水平...

1、当您付费下载文档后,您只拥有了使用权限,并不意味着购买了版权,文档只能用于自身使用,不得用于其他商业用途(如 [转卖]进行直接盈利或[编辑后售卖]进行间接盈利)。
2、本站所有内容均由合作方或网友上传,本站不对文档的完整性、权威性及其观点立场正确性做任何保证或承诺!文档内容仅供研究参考,付费前请自行鉴别。
3、如文档内容存在违规,或者侵犯商业秘密、侵犯著作权等,请点击“违规举报”。

碎片内容

五种支架搬运车参数

您可能关注的文档

文泉书屋+ 关注
实名认证
内容提供者

热爱教学事业,对互联网知识分享很感兴趣

确认删除?
VIP
微信客服
  • 扫码咨询
会员Q群
  • 会员专属群点击这里加入QQ群
客服邮箱
回到顶部