电脑桌面
添加小米粒文库到电脑桌面
安装后可以在桌面快捷访问

盾构机辅助系统原理VIP免费

盾构机辅助系统原理_第1页
1/6
盾构机辅助系统原理_第2页
2/6
盾构机辅助系统原理_第3页
3/6
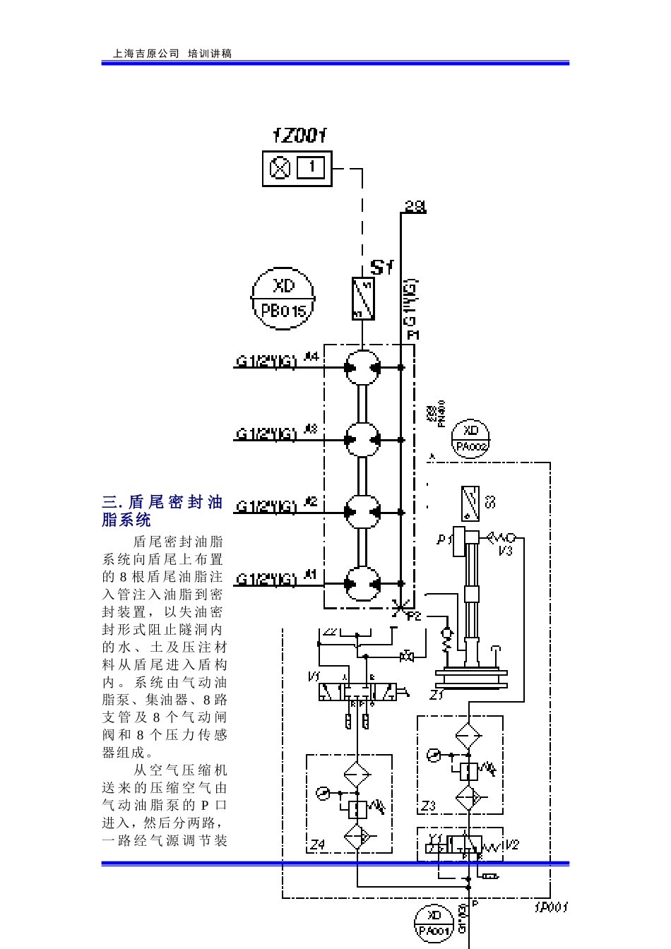
上海吉原公司培训讲稿盾构机辅助系统原理一.盾构机辅助系统组成盾构机是一综合性的大型地下隧道开挖机械。集机械、电子电器、液压、传感技术等于一体,自动化程度较高,除主要的液压系统和电气系统外,还需要各种不同的系统来完成不同的功能,其上就有十几个辅助系统,这些系统有:1.刀盘减速器润滑冷却系统;2.盾尾密封油脂系统;3.主轴承密封油脂系统;4.油脂润滑密封系统;5.供水及冷却系统;6.同步注浆系统;7.泡沫发生系统;8.添加聚合物系统;9.添加膨润土系统;10.压缩空气系统;11.土仓加压系统;12.人仓加压系统。二.刀盘减速器润滑冷却系统该系统以主轴承密封外壳为储油箱,配有4KW的齿轮油泵、益流阀、过滤器、水冷却器、流量分配阀,形成一循环系统。系统中装有油温传感器、压力表、流量传感器、低油位警报开关及检查密封状况的泄漏检查箱。油泵从减速器中抽出的油经过滤、冷却,由分配阀分为等量的四路油两路送往主轴承的OAX5、OAX1口润滑大滚子轴承,另两路送往OR4、OR1口润滑小滚子轴承。如果前面的一、二道密封损坏,就会有浆液流入泄漏检查箱,如果第三道密封损坏,就会有齿轮油流入泄漏检查箱。油位过低、油温过高或流量较小都会使刀盘无法旋转。上海吉原公司培训讲稿三.盾尾密封油脂系统盾尾密封油脂系统向盾尾上布置的8根盾尾油脂注入管注入油脂到密封装置,以失油密封形式阻止隧洞内的水、土及压注材料从盾尾进入盾构内。系统由气动油脂泵、集油器、8路支管及8个气动闸阀和8个压力传感器组成。从空气压缩机送来的压缩空气由气动油脂泵的P口进入,然后分两路,一路经气源调节装上海吉原公司培训讲稿置[过滤器、减压阀(带压力表)、油雾器]、手动换向阀到达油脂压力盘油缸,以达到向油脂泵供油的目的。另一路经气控阀、气源调节装置达到油脂泵,靠油脂泵的自动往复运动将油脂泵出。泵上装有低油脂警报开关、压力表和计数式流量传感器。泵出的油脂送到集油器分8路,四路进入一、二道钢刷密封之间的前四个注入孔,另四路进入二、三道钢刷密封之间的后四个注入孔。每一路都可以气控阀单独控制,也可以同时控制。四.主轴承密封油脂系统主轴承设置有三道唇形外密封和两道唇形内密封,外密封前两道采用永久性失脂润滑来阻止土仓内的渣土和泥浆渗入,后一道密封是防止主轴承内的润滑油渗漏。主轴承密封油脂系统只向前一道外密封前提供油脂。由气动油脂泵(原理同盾尾油脂泵)泵出的油脂到达集油分配器,将油脂均匀的分为四路分别送到主轴承上的CA1、CA2、CA3、CA4接口进入外密封的前端,靠密封油脂的外溢来阻止土仓内渣土和泥浆的渗入。五.油脂润滑密封系统该系统比较复杂,在谋某一处以密封为主润滑为辅,另一处可能以润滑为主密封为辅,也许两样兼备。它自动定量地向一级螺旋输送机、二级螺旋输送机、主轴承外密封、主轴承内密封及回转中心接头提供润滑和密封油脂。系统主要由气动油脂泵、过滤器、二级储油箱、油脂分配泵、分支集油及溢了装置、分支油脂分配器等。气动油脂泵与盾尾油脂泵相同。泵出的高压油脂经过滤器过滤后到达二级储油箱,经分配泵加压后的油脂从分配器的各分支出口输出,根据各装置油脂的需量配置了不同的管径和管子数量。两根管以上配有集油器,主分配器处理的油送往以下部位:1.一级螺旋输送机输出轴第一、二道密封之间(F3口),单管输出,起密封作用。2.F4口为手动注脂,润滑一级螺旋机铰接球面。3.一级螺旋机集油器(三管输出),再经分支分配器到输出轴的第一、二道密封之间(F1口)和第二、三道密封之间(F2口)。起密封和润滑作用。4.密封和润滑二级螺旋机第一、二道密封之间(F3口)和铰接球面(F4口)。(单管输出)5.密封和润滑一、二级螺旋输送机连接器球铰(FG1、FG2口)。6.二级螺旋机集油器(三管输出),再经分支分配器到输出轴的第一、二道密封之间(F1口)和第二、三道密封之间(F2口)。起密封和润滑作用。7.主轴承外密封集油器(6管输出),再经分支分配器到达主轴承一、二道外密封之间(FA1—FA6口),密封和润滑主轴承输出端。8.手动润滑主轴承一、二道内密封之间(FI1--FI4口),内密封前一道阻止盾体内大气尘土的侵入,...

1、当您付费下载文档后,您只拥有了使用权限,并不意味着购买了版权,文档只能用于自身使用,不得用于其他商业用途(如 [转卖]进行直接盈利或[编辑后售卖]进行间接盈利)。
2、本站所有内容均由合作方或网友上传,本站不对文档的完整性、权威性及其观点立场正确性做任何保证或承诺!文档内容仅供研究参考,付费前请自行鉴别。
3、如文档内容存在违规,或者侵犯商业秘密、侵犯著作权等,请点击“违规举报”。

碎片内容

盾构机辅助系统原理

墨香书阁+ 关注
实名认证
内容提供者

热爱教学事业,对互联网知识分享很感兴趣

确认删除?
VIP
微信客服
  • 扫码咨询
会员Q群
  • 会员专属群点击这里加入QQ群
客服邮箱
回到顶部