电脑桌面
添加小米粒文库到电脑桌面
安装后可以在桌面快捷访问

住宅核心筒布置VIP免费

住宅核心筒布置_第1页
1/14
住宅核心筒布置_第2页
2/14
住宅核心筒布置_第3页
3/14
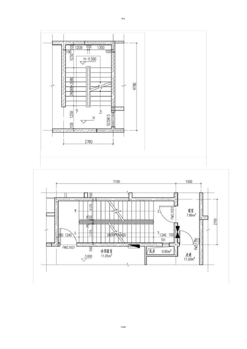
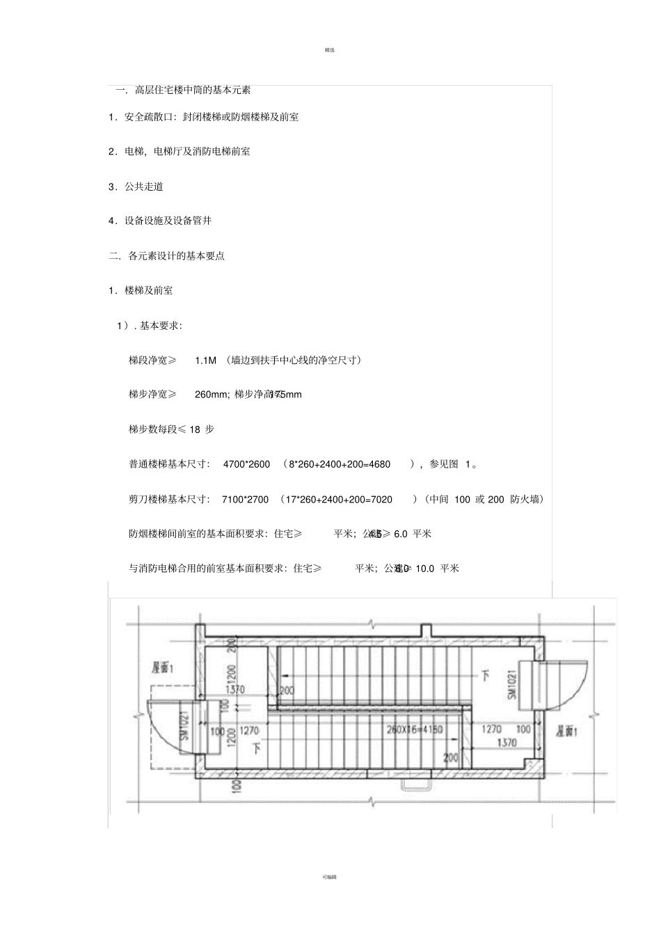
精选可编辑一.高层住宅楼中筒的基本元素1.安全疏散口:封闭楼梯或防烟楼梯及前室2.电梯,电梯厅及消防电梯前室3.公共走道4.设备设施及设备管井二.各元素设计的基本要点1.楼梯及前室1).基本要求:梯段净宽≥1.1M(墙边到扶手中心线的净空尺寸)梯步净宽≥260mm;梯步净高≤175mm梯步数每段≤18步普通楼梯基本尺寸:4700*2600(8*260+2400+200=4680),参见图1。剪刀楼梯基本尺寸:7100*2700(17*260+2400+200=7020)(中间100或200防火墙)防烟楼梯间前室的基本面积要求:住宅≥4.5平米;公建≥6.0平米与消防电梯合用的前室基本面积要求:住宅≥6.0平米;公建≥10.0平米精选可编辑精选可编辑2).设计要点:a.如地下地上共用一个楼梯,应在首层出口处将地下地上楼梯用防火墙及防火门分隔开,并且地下地上的楼梯对外疏散门均应向疏散方向开启,且门开启后相互不能影响疏散宽度。b.楼梯间的门均为乙级防火门,标准层其开门宽度可以是1000mm,但在首层楼梯间对外开启的防火门应满足大于1100mm(等同楼梯间梯段最小宽度)。c.楼梯间及其前室的外窗和其他部分的外窗的距离应满足水平大于1.0米,转角及正对时应大于4.0米的防火要求。d.两个放烟楼梯间与消防电梯不能同时共用一个前室(三合一前室)(高规p128页:“特别要提出的是,有少数设计在剪刀楼梯精选可编辑梯段之间不加任何分隔,也不设防烟楼梯间,还有一种与消防电梯合用的前室,两个楼梯口均开在一个合用前室之内,这种设计都不利于疏散,不能采用,更不能推广。“e.楼梯应出屋顶.f.楼梯段不能设扇步。g.当楼梯梯段井净宽大于500mm时,楼梯栏杆应按临空栏杆设计,其高度应大于1100mm。住宅楼梯间及出入口的设置有如下几个要求:设置开敞楼梯间的条件:11层及11层以下的单元式住宅可不设封闭楼梯间,但开向楼梯间的户门应为乙级防火门,且楼梯间应靠外墙,并应直接天然采光和自然通风。设置封闭楼梯间的条件:(设置的封闭楼梯间应满足下列规定:楼梯间应靠外墙,并应直接天然采光和自然通风;楼梯间应设乙级防火门,并向疏散方向开启;楼梯间的首层紧接主要出口时,可将走道和门厅等包括在楼梯间内,形成扩大的封闭楼梯间,但应采用乙级防火门等防火措施与其他走道和房间隔开。)(1).12层-18层的单元式住宅应封闭楼梯间。(2).11层及11层以下的通廊式住宅应设封闭楼梯间。(3).裙房和除单元式和通廊式住宅外的建筑高度不超过32m的二类建筑应设封闭楼梯间。设置防烟楼梯间的条件:除上述外的一类高层建筑和建筑高度超过32米的二类高层建筑以及塔式住宅楼,均应设防烟楼梯间。设置一个安全出口(疏散楼梯间)的条件:精选可编辑(1).18层及18层以下,每层不超过8户,建筑面积不超过650平米,且设有一座防烟楼梯间和消防电梯的塔式住宅。(2).18层及18层以下每个单元设有一座通向屋顶的疏散楼梯,单元之间的楼梯通过屋顶连通,单元与单元之间设有防火墙,户门为甲级防火门,窗间墙宽度,窗槛墙高度大于1.2m且为不燃烧体墙的单元式住宅。(3).超过18层,每个单元设有一座通向屋顶的疏散楼梯,18层以上部分每层相邻单元楼梯通过阳台或凹廊连通(屋顶可以不连通),18层及18层以下部分单元与单元之间设有防火墙,精选可编辑且户门为甲级防火门,窗间墙宽度,窗槛墙高度大于1.2m且为不燃烧体墙的单元式住宅。精选可编辑精选可编辑2.电梯,电梯厅及消防电梯前室1)基本要求:a.12层以上的住宅楼每幢需设2台以上电梯b.12层以上的住宅楼需设消防电梯(消防电梯应≥800KG/台,且从首层到顶层的运行时间≤60秒)c.电梯的设置数量参考标准:60-90户/台d.7层及7层以上住宅楼的电梯需满足无障碍要求,(电梯开门≥800mm,电梯轿厢进深≥1400mm,开间≥1100mm,一般800KG的电梯均能满足此要求。)参见图9。精选可编辑e.消防电梯与客梯,其管道井及电梯机房均应分隔开(防火墙,消防电梯机房的门应为甲级防火门)f.电梯厅的深度应满足无障碍设计要求≥1800mm。若多台电梯双侧排列,则电梯厅深度应不小于向对最大电梯轿厢深度之和且小于3500mm,参见图9。g.消防电梯前室的面积应:住宅≥4.5平米;公建≥6.0平米与楼梯间合用的消防电梯前...

1、当您付费下载文档后,您只拥有了使用权限,并不意味着购买了版权,文档只能用于自身使用,不得用于其他商业用途(如 [转卖]进行直接盈利或[编辑后售卖]进行间接盈利)。
2、本站所有内容均由合作方或网友上传,本站不对文档的完整性、权威性及其观点立场正确性做任何保证或承诺!文档内容仅供研究参考,付费前请自行鉴别。
3、如文档内容存在违规,或者侵犯商业秘密、侵犯著作权等,请点击“违规举报”。

碎片内容

住宅核心筒布置

您可能关注的文档

确认删除?
VIP
微信客服
  • 扫码咨询
会员Q群
  • 会员专属群点击这里加入QQ群
客服邮箱
回到顶部