电脑桌面
添加小米粒文库到电脑桌面
安装后可以在桌面快捷访问

哈尔滨工程大学结构力学期末考试题VIP免费

哈尔滨工程大学结构力学期末考试题_第1页
1/3
哈尔滨工程大学结构力学期末考试题_第2页
2/3
哈尔滨工程大学结构力学期末考试题_第3页
3/3
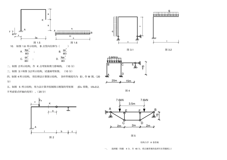
一、选择题(每题 4 分,共 40 分,将正确答案的选项写在答题纸上))1.如图 1.1 所示结构,共有()根零杆。A. 8 根B. 10 根C. 11 根D. 12 根14aFpa图 1.12.如图 1.1 所示结构,杆件 1 的轴力为()。A. pFB. pFC. pF2D. pF23.如图 1.2 所示结构,该体系为图 1.2A. 几何可变体系,有多余约束B. 几何不变体系,有一个多余约束C.几何不变体系,有两个多余约束D. 几何可变体系4.均匀分布竖向荷载作用下,三铰拱的合理拱轴线为()。A. 圆弧线B.抛物线C. 正弦曲线D.三角形5.如图 1.3 所示结构,各杆件的线刚度均为i,采用力矩分配法时,BCS,BC及BCC分别为()。A.i,1/11,-1 B. 4i,2/7,2 C.4i,2/7,-1 B. i,1/11,2 FpFpACBDEF图 1.36.矩阵位移法原始的整体刚度方程体现了()的关系。A.杆端力与杆端位移B. 结点力与结点位移C.杆端力与结点位移D. 结点力与杆端位移7.超静定结构在支座移动或温度改变情况下,内力与()A.杆件 EI 的相对值有关B. 杆件 EI 的绝对值有关C.杆件 EI 的绝对值无关D. 杆件 EI 无关8.如图 1.4 所示结构, B 点支座反力为()(提示:利用刚体体系的虚功原理)A.6kN B. 3kN C.2kN D. 4kN 1m1m2m2m2m2m1m1m2kN4kN2kNB图 1.4 9.如图 1.5 所示结构,支座 A 有给定位移x ,y 。K 点的竖向位移V 为()A.xB. xC. yD. yAKxy3aaaaEIABq图 1.5 图 1.6 10. 如图 1.6 所示结构, B 点竖向位移为()A.8EI34qa;B.8EI4qaC. 8EI4qa;D. 8EI34qa二、如图 2 所示结构,作 K 点弯矩和剪力影响线。 (10 分)三、如图 3.1 和图 3.2 所示结构,试速画弯矩图。 (10 分)四、如图 4 所示结构, 用位移法计算图示结构, 各杆件刚度均为 EI ,作 M 图。(20分)五、如图5 所示结构,用力法计算并绘制图示刚架的弯矩图(EI= 常数, I/A=0.2,不考虑梁式杆轴向变形) 。( 20 分)AKaxFplbc图 2qaalq图 3.1 图 3.2 .4kN/m220m15mACD15mBE图 4 A7.6kN2m3.5m2m1m7.6kNB2mCDEF图 5 结构力学 A 卷答案一、选择题(每题4 分,共 40 分,将正确答案的选项写在答题纸上)1. D 2.C 3.B 4.B 5.A 6.B 7. B 8.A 9. D 10. C 二、如图 2 所示结构,作K 点弯矩和剪力影响线。 (10 分)Ka+-ac/bK 点弯矩影响线(5 分)c/bK1+-1K 点剪力影响线(5 分)三、如图 3.1 和图 3.2 所示结构...

1、当您付费下载文档后,您只拥有了使用权限,并不意味着购买了版权,文档只能用于自身使用,不得用于其他商业用途(如 [转卖]进行直接盈利或[编辑后售卖]进行间接盈利)。
2、本站所有内容均由合作方或网友上传,本站不对文档的完整性、权威性及其观点立场正确性做任何保证或承诺!文档内容仅供研究参考,付费前请自行鉴别。
3、如文档内容存在违规,或者侵犯商业秘密、侵犯著作权等,请点击“违规举报”。

碎片内容

哈尔滨工程大学结构力学期末考试题

确认删除?
VIP
微信客服
  • 扫码咨询
会员Q群
  • 会员专属群点击这里加入QQ群
客服邮箱
回到顶部