电脑桌面
添加小米粒文库到电脑桌面
安装后可以在桌面快捷访问

土木工程与建筑学的区别是什么VIP免费

土木工程与建筑学的区别是什么_第1页
1/13
土木工程与建筑学的区别是什么_第2页
2/13
土木工程与建筑学的区别是什么_第3页
3/13
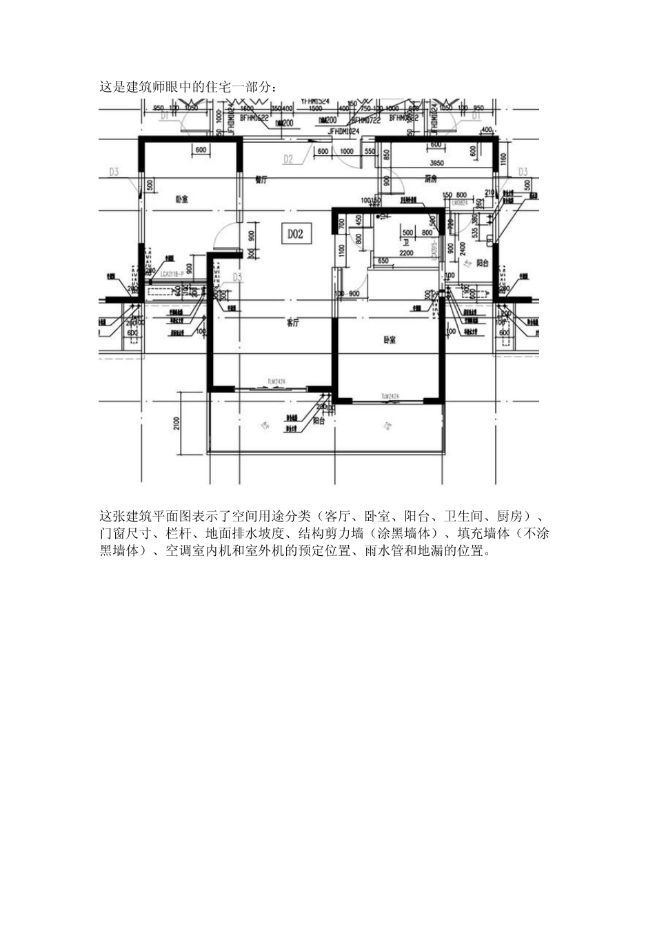
这个问题算得上是老生常谈了。土木工程是个很宽泛的概念,如果与建筑学相比的话,更确切的比较应该是结构工程和建筑学。 很多回答都强调了建筑学侧重于“艺术”、“外形”和“美观”,这是一种很普遍的误解。很多人以为建筑师就像艺术家一样飘逸洒脱,结果去学了建筑学,一下就傻眼了。 想一下你日常生活中的例子,就能明白建筑学的研究对象是什么。 去一家大型综合医院看一下:门诊和急诊为什么这样安排?既能共同利用化验、拿药,又不互相干扰。急性传染病人的就医路线在哪里?是如何跟非传染病区隔离的?护士站设置在什么位置?既能节省空间,服务范围又能覆盖尽量多的病床。 去火车站看一下:检票后的区域和不需买票就能进入的区域是如何隔离的?上车旅客和下车旅客的流线怎么安排?那么多旅客上厕所、喝开水的需求怎么满足?厕所怎么设置的既合理又方便? 去小区看一下:怎么让每栋楼都能享受到通风和日照?不同高度的住宅如何安排,才能既有日照,又不会侵犯隐私?小区的地下车库出入口怎么安排,方便每栋楼的用户出入停车?小区的幼儿园设置在哪里?既不会太吵,也不会不见阳光? 看一下你自己的房子或者宿舍:为什么窗台是这么高?既不会太矮导致不安全,也不会太高导致不方便往外看。为什么楼梯的尺寸是这样的,不会太陡也不会太缓,爬起来不吃力,刚刚好。 看一下你的教学楼:为什么楼梯要比住宅楼的宽?为什么宽度刚刚好能满足下课时的人流?男女厕所怎么设置合理?怎么保证下课的时候女生不至于集中排队上厕所? 去大商场看一下:楼梯和电梯是怎么设置的?电梯旁为什么要有防火卷帘?失火了怎么保证大家能快速的找到楼梯下楼疏散? 这样的例子有很多很多,美观固然重要,但这只是一个方面,而且可能是最不重要的一个方面。 而土木工程,确切的说是结构工程,研究任务则是保证建筑的结实和安全,再直白点,就是在地震、风、温度、恐怖袭击等外部因素作用下不倒塌不破坏。这是一个很艰巨的任务,责任也很重大。一定程度上,这也是门艺术,需要人类最高端的创造力。金字塔、长城、索菲亚大教堂、埃菲尔铁塔、帝国大厦、金门大桥、布鲁克林大桥等等人类文明的标志,同样也是结构工程的伟大成就。 地震了,怎么保证房子不倒塌?地基土很差,怎么样处理地基从而保证房子可以不像比萨斜塔那样?台风来了,怎么保证房子是安全的,不至于像美国飓风那样把房子都吹倒?要做一个电影院或者大礼堂,怎么样做到几十米的空间里没有一根柱...

1、当您付费下载文档后,您只拥有了使用权限,并不意味着购买了版权,文档只能用于自身使用,不得用于其他商业用途(如 [转卖]进行直接盈利或[编辑后售卖]进行间接盈利)。
2、本站所有内容均由合作方或网友上传,本站不对文档的完整性、权威性及其观点立场正确性做任何保证或承诺!文档内容仅供研究参考,付费前请自行鉴别。
3、如文档内容存在违规,或者侵犯商业秘密、侵犯著作权等,请点击“违规举报”。

碎片内容

土木工程与建筑学的区别是什么

您可能关注的文档

确认删除?
VIP
微信客服
  • 扫码咨询
会员Q群
  • 会员专属群点击这里加入QQ群
客服邮箱
回到顶部