电脑桌面
添加小米粒文库到电脑桌面
安装后可以在桌面快捷访问

工程造价试题1VIP免费

工程造价试题1_第1页
1/13
工程造价试题1_第2页
2/13
工程造价试题1_第3页
3/13
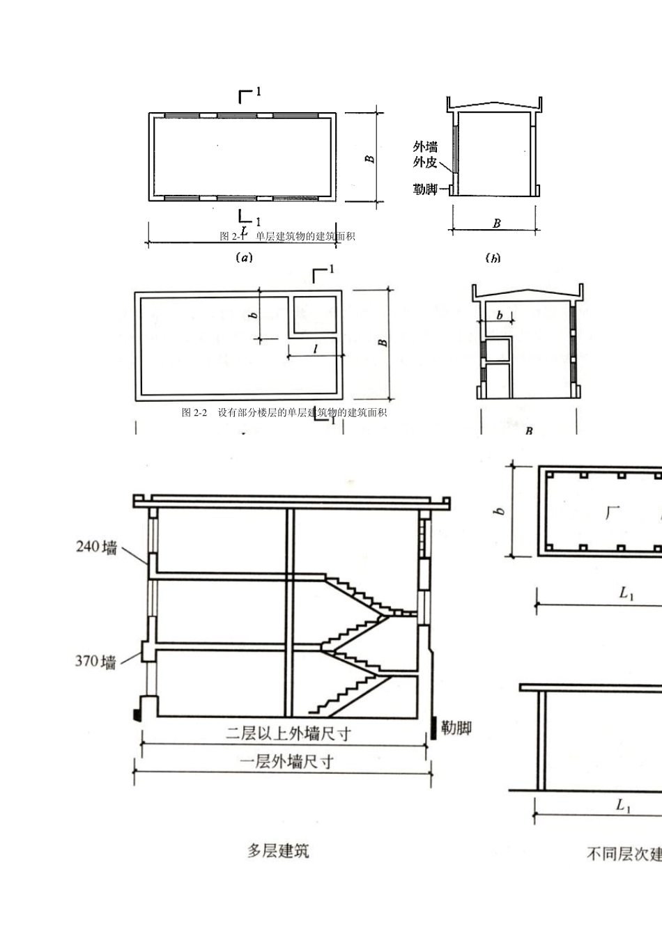
2 章 工程造价构成 【本章的知识体系】 2 《计价表》工程量计算规则及应用 学习目标 1 . 熟悉建筑面积的概念及计算规则; 2 . 熟练掌握《计价表》工程量计算的方法、步骤及规则; 3 . 能应用《计价表》熟练计算建筑分部分项工程造价、装饰分部分项工程造价和施工措施项目造价。 学习重点 1 .建筑面积的计算规则,包括计算建筑面积的范围和不计算建筑面积的范围,其中还要注意有些是计算一半的; 2 .工程量计算的方法和步骤,包括单位工程和分部分项工程的相应计算方法和步骤; 3 .工程量的计算规则,以及消耗量定额的套用,其中包括建筑分部分项工程造价、装饰分部分项工程造价和施工措施项目造价的确定。 2 .1 建筑面积的计算规则 2 .1 .1 建筑面积及作用 1 .建筑面积的组成与分类 建筑物(民用、工业、公共等建筑)建筑面积是衡量和控制建筑规模的一个重要经济技术指标。建筑面积是指建筑物外墙勒脚以上各层水平投影面积之和,建筑面积由使用面积、交通面积、结构面积三部分组成。 使用面积是直接为生产、生活服务的面积,也称为净面积; 交通面积是各层平面之间、本层房间部位之间、房间内外之间联系通行所占的水平净面积; 结构面积是指建筑物中内外墙体、间壁墙、垛、柱等竖向承重和隔断结构系统所占的面积。 2 .建筑面积的作用 (1 )建筑面积是计算土地利用系数和平面利用系数(使用面积系数、结构面积系数、交通面积系数)的依据; (2 )建筑面积是计算单方造价和单方工、料、机耗用量的基础; (3)建筑面积是计算建筑工程相关分部分项工程量与有关工程费用项目的依据。如平整场地工程量、建筑物超高费等均与建筑面积相关。 2.1.2 建筑面积的计算规则 根据中华人民共和国建设部和中华人民共和国国家质量监督检验检疫局联合发布的《建筑工程建筑面积计算规范》(GB/T50353-2005)规定,建筑面积计算规则如下: 1.计算建筑面积的范围 (1)单层建筑物的建筑面积,应按其外墙勒脚以上结构外围水平面积计算。并应符合下列规定: ①单层建筑物高度在 2.20m 及以上者应计算全面积;高度不足 2.20m 者应计算1/2 面积。如图 2-1 所示。 ②利用坡屋顶内空间时,顶板下表面至楼面的净高超过 2.10m 的部位应计算全面积;净高在1.20m 至 2.10m 的部位应计算1/2 面积;净高不足 1.20m 的部位不应计算面积。 (2)单层建筑物内设有局部楼层者,局部楼层的二层及以上楼层,有围...

1、当您付费下载文档后,您只拥有了使用权限,并不意味着购买了版权,文档只能用于自身使用,不得用于其他商业用途(如 [转卖]进行直接盈利或[编辑后售卖]进行间接盈利)。
2、本站所有内容均由合作方或网友上传,本站不对文档的完整性、权威性及其观点立场正确性做任何保证或承诺!文档内容仅供研究参考,付费前请自行鉴别。
3、如文档内容存在违规,或者侵犯商业秘密、侵犯著作权等,请点击“违规举报”。

碎片内容

工程造价试题1

确认删除?
VIP
微信客服
  • 扫码咨询
会员Q群
  • 会员专属群点击这里加入QQ群
客服邮箱
回到顶部