电脑桌面
添加小米粒文库到电脑桌面
安装后可以在桌面快捷访问

主要设备润滑图表VIP免费

主要设备润滑图表_第1页
1/94
主要设备润滑图表_第2页
2/94
主要设备润滑图表_第3页
3/94
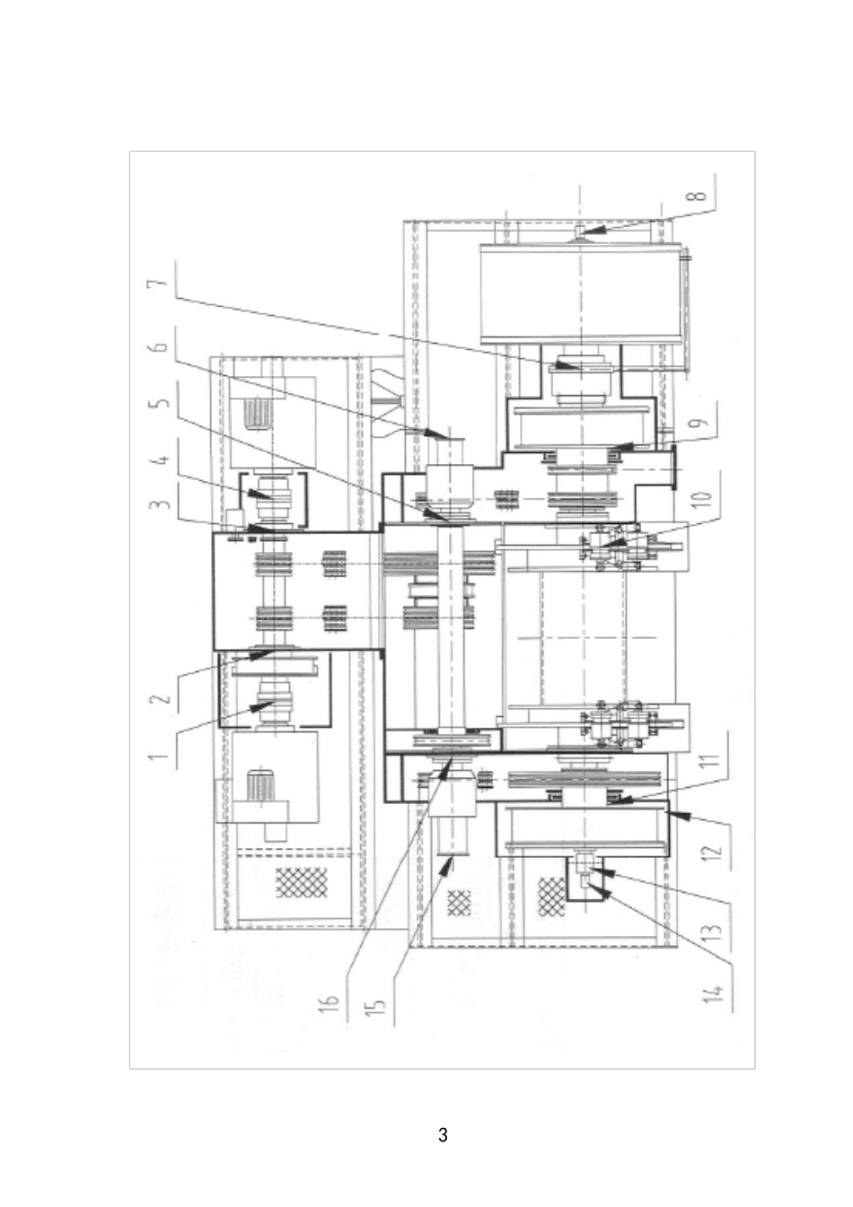
1 润 滑 图 表 图1 JJ450/45-K7 井架润滑图 序号 润滑部位 保养 点数 环境温度 油品名称 油品牌号 保养周期h 注油量 1、2、3、8、9 滑轮轴承 6 -30℃~50℃ 二硫化钼极压锂基脂 3 号 起井架前 适量 4、5、 6、7 辅助滑轮 轴承 8 -30℃~50℃ 通用锂基脂 3 号 150 适量 2 图2 DZ450/10.5-S2 底座 序号 润滑部位 保养 点数 环境温度 油品名称 油品牌号 保养周期h 注油量 1、2、 3、4、 5、6 滑轮轴承 12 -30℃~50℃ 二硫化钼极压锂基脂 3 号 起底座前 适量 3 4 图3 JC70D 绞车润滑图 JC70D 绞车润滑表 序号 润滑部位 保养 点数 环境温度 油品名称 油品牌号 保养周期h 注油量 1 联轴器 1 -30℃~50℃ 通用锂基脂 3 号 12 适量 2 输入轴轴承 1 3 输入轴轴承 1 4 联轴器 1 5 猫头轴轴承 1 6 卸扣猫头轴承 1 150 7 齿式离合器 1 8 水气葫芦、 导气龙头 2 12 9 滚筒轴空套 链轮轴承 1 10 盘刹钳销轴 48 750 11 滚筒轴空套 链轮轴承 1 12 12 滚筒轴轴承 2 13 水气仪表 装置轴承 8 150 14 导气龙头 1 12 15 上扣猫头轴承 1 150 5 * 链条并车油池 1 0℃~50℃ 机械油 L-AN100 按质换油 500 升 6 图4 JC14.5 绞车(大庆130-Ⅱ绞车)润滑图 JC14.5 绞车(大庆130Ⅱ绞车)润滑表 序号 润滑部位 保养点数 环境温度 油品名称 油品牌号 保养周期 h 注油量 1 并车链条油箱 1 0℃~50℃ 机械油 L-AN100 按质换油 加至 油面线 -30℃~0℃ L-AN32 2、15 锚头轴支承轴承 2 -30℃~50℃ 通用 锂基脂 3 号 12 适量 3、11 传动轴支承轴承 2 4、5 传动轴三档链轮支承轴承 2 6 传动轴牙嵌拨圈 1 起下钻时 适量 7、8 传动轴二档链轮轴承 2 12 适量 9、10 锚头轴一档链轮轴承 2 12 猫头轴牙嵌拨圈 1 起下钻时 3、14 传动轴四档链轮轴承 2 12 适量 17 锚头轴双气囊支承轴承 1 7 16、18、38 导气龙头 3 25、26 滚筒轴双链轴承 2 -30℃~50℃ 通用 锂基脂 3 号 12 适量 27、34 滚筒轴支承轴承 2 28 刹车气缸铜套 l 29 刹车气缸活套 1 30、33、37 刹车曲轴支承轴瓦 3 31、32 刹车曲拐轴瓦 2 35、36 滚筒轴气囊链轮轴承 2 39、42 排档操纵机构支承 2 40、41 排档操纵机构曲轴 2 8 图5 JC32、JC45、JC45D 绞...

1、当您付费下载文档后,您只拥有了使用权限,并不意味着购买了版权,文档只能用于自身使用,不得用于其他商业用途(如 [转卖]进行直接盈利或[编辑后售卖]进行间接盈利)。
2、本站所有内容均由合作方或网友上传,本站不对文档的完整性、权威性及其观点立场正确性做任何保证或承诺!文档内容仅供研究参考,付费前请自行鉴别。
3、如文档内容存在违规,或者侵犯商业秘密、侵犯著作权等,请点击“违规举报”。

碎片内容

主要设备润滑图表

确认删除?
VIP
微信客服
  • 扫码咨询
会员Q群
  • 会员专属群点击这里加入QQ群
客服邮箱
回到顶部