最佳年会操作手册(内部绝密 首度公开 仅此一份) 2013—11—22 猛击右边名字关注 赵桃华赵桃华zhao-taohua管理者、追梦者、阅读者,每...
春节景观布置设计方案说 明一.前言春节是中华民族最隆重的传统节日,蛇年的春节即将来临,人流、物流、信息流将再高度集中。这正是面对社会...
2024 年圣诞节、春节园区布置方案一、布展背景:新年钟声中一岁除,春风送暖入冬苏,千门万户瞳瞳目,总把新桃换旧符,新春佳节,必将是一...
春节售楼中心布置方案为烘托现场销售氛围,突出中国传统节日的喜气,销售案场春节布置以喜庆红为主色调,以达到欢乐祥和的节日氛围.一、销售...
第三章施工部署及现场平面布置第一节施工部署一、项目组织机构人员如下图:成立项目经理部(管理层),项目经理部全体成员均由具有较丰富的施...
第九章 施工部署与总平面布置9。1 施工准备:1。技术准备:1)图纸自审与会审:开工前组织施工人员仔细学习图纸和有关标准图集、施工及验收...
施工组织课程设计一、 工程概况Ⅰ。工程建设概况本工程为 XX 市某厂综合楼,位于雨花路,由 I 部和 II 部组成 L 型转角楼.采纳现...
第一节现场概况及部署说明:因本工程规划设计尚未通过,此方案根据现有规划总平面图结合现场勘察编制,仅作参考用途,待正式施工图纸审查通过...
目 录施工现场总平面布置方案 2第一节施工现场平面布置原则及依据 1 第二节施工现场临时设施平面布置 1 第三节主要机械布置 3 第四...
简单四步,教你如何绘制好施工现场总平面布置图施工总平面布置图是拟建项目施工场地的总布置图.它根据施工方案和施工进度的要求,对施工现...
施工现场总平面布置图安档表 4工程名称:嘉隆广场四期绘制人:冯耀庭: 学号:09501130340塔吊办公、生活区配电箱水源建 2F 12F 筑 17...
施工现场总平面布置与管理要保证工程能安全、优质、高速地完成,关键在于合理严密地进行总平面布置和科学地进行总平面的管理。第一节 场地...
施工现场总平面布置与管理要保证工程能安全、优质、高速地完成,关键在于合理严密地进行总平面布置和科学地进行总平面的管理.第一节 场地...
施工现场总平面布置图工程名称:建馨苑经济适用房一期 63#楼塔吊办公室配电箱 职工宿舍水源建筑物钢 筋 加 工 区搅拌机砖 石 堆 ...
第 二 章 施 工 现 场 平 面 布 置 和 临 时 设 施 、临 时 道 路 布 置第 一 节 施 工 平 面 布 置一 、 ...
施工现场平面布置图及临时设施方案根据《施工总平面图》规划生产和办公临时用地,办公区、生活区在现场附近搭设。 1、施工区平面布置1。1 ...
附表五 施工总平面图一、临时设置布局说明二、安排计划说明结合施工现场实际情况,对施工现场平面及临时设施进行合理布局,实施封闭式管理...
施工现场平面布置和临时设施布置第一节施工现场平面布置原则施工现场布置根据建设单位提供的施工场地总平面图、建设方对施工场地布置的要求...
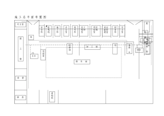
施 工 总 平 面 布 置 图 守卫室职工宿食 堂厨 房值班室安全科发电机施工科办公室技术科守卫室厕质检科财务科项目经理室项目副经...
第二章 施工现场平面布置和临时设施、临时道路布置图一、施工现场平面布置装饰工程施工在可能的情况下将做对外界全封闭施工,进场后及时与...

