电脑桌面
添加小米粒文库到电脑桌面
安装后可以在桌面快捷访问

建筑装饰装修工程水电安装VIP免费

建筑装饰装修工程水电安装_第1页
1/50
建筑装饰装修工程水电安装_第2页
2/50
建筑装饰装修工程水电安装_第3页
3/50
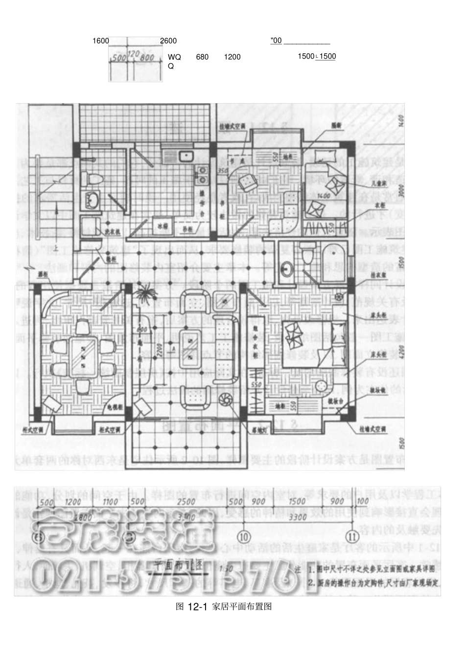
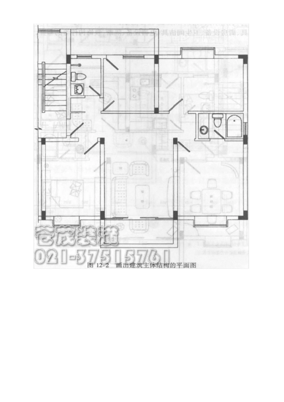
建筑装饰装修工程水电安装3、 施工现场的木工棚应作封闭处理,并能有效降低噪声。4、 因施工需要场地噪声超过标准限制,或因工艺等技术原因需连续施工,必须报建设部门批准,并在环保部门备案,并按规定对周围居民发放扰民费。10.3.3废水管理1、 开工前应到环保部门进行排污申报登记。2、 现场施工产生的污水经二次沉淀处理后排入市政污水管网,不能经沉淀处理净化的污水则集中外运处理。10.3.4限制光污染建筑装修图概述:1- 图纸目录2- 装修施工工艺说明3- 平面布置图4- 楼地面装修平■面图5- 天花平面图6- 墙柱装修立面图7- 装修细部结构节点详图1- 平面布置图平面布置图通常是设计过程中首先触及的内容,空间的划分、功能的分区是否合理关系到使用效果和精神感受。26001600WQQ6801200"00 ___________ 1500 L 1500图 12-1 家居平面布置图平■面布置图表达内容有: 1、建筑王体结构2、 各功能空间的家具的形状和位置。3、 厨房、卫生间的橱柜、操作台、洗手台、浴缸、大便器等形状和位置。4、 家电的形状、位置。5、 隔断、绿化、装饰构件、装饰小品。6、 标注建筑主体结构的开问和进深等尺寸、主要装修尺寸。7、 装修要求等文字说明。平■面布置图的画法步骤:1、 选比例、定图幅。2、 画出建筑主体结构平■面图。3、 画出厨房设备、家具、卫生洁具、电器设备、隔断、装饰构件等的布置。4、 标注尺寸、剖面符号、详图索引符号、图例名称、文字说明。5、 画出地面的拼花造型图案、绿化等。6、 描粗整理图线。2■楼地面装修图楼地面装修图:地面的造型、材料名称和工艺要求。作用:1、 施工依据2、 地面材料采购的参考图样。表达各功能空间的地面的铺装形式,注明所选用材料的名称、规格;有特殊要求的还要注明工艺做法和详图尺寸标注方面,主要标注地面材料拼花造型尺寸、地面的标高。9 地竿 5 早小竺 ?地面装修图的画法步骤1、选比例、定图幅; 2、画出建筑主体结构平■面图和现场制作的固定家具、隔断、装饰构件; 3、 画出厨房设备、家具、卫生洁具、电器设备、隔断、装饰构件等的布置; 4、 标注尺寸、剖面符号、详图索引符号、图例名称、文字说明;5、画出地面的拼花造型图案、绿化等; 6、描粗整理图线; 3- 天花平面图天花的功能作用:1- 装饰2- 照明3- 音响4- 空调5- 防火天花装修的形式:1- 悬 : 吊式2- 直接式。天花平面图通常采用“镜像”投影作图天花平面布置图表达的内容1、 建筑...

1、当您付费下载文档后,您只拥有了使用权限,并不意味着购买了版权,文档只能用于自身使用,不得用于其他商业用途(如 [转卖]进行直接盈利或[编辑后售卖]进行间接盈利)。
2、本站所有内容均由合作方或网友上传,本站不对文档的完整性、权威性及其观点立场正确性做任何保证或承诺!文档内容仅供研究参考,付费前请自行鉴别。
3、如文档内容存在违规,或者侵犯商业秘密、侵犯著作权等,请点击“违规举报”。

碎片内容

建筑装饰装修工程水电安装

您可能关注的文档

确认删除?
VIP
微信客服
  • 扫码咨询
会员Q群
  • 会员专属群点击这里加入QQ群
客服邮箱
回到顶部