电脑桌面
添加小米粒文库到电脑桌面
安装后可以在桌面快捷访问

深基坑上下临时人行梯安全通道方案VIP免费

深基坑上下临时人行梯安全通道方案_第1页
1/14
深基坑上下临时人行梯安全通道方案_第2页
2/14
深基坑上下临时人行梯安全通道方案_第3页
3/14
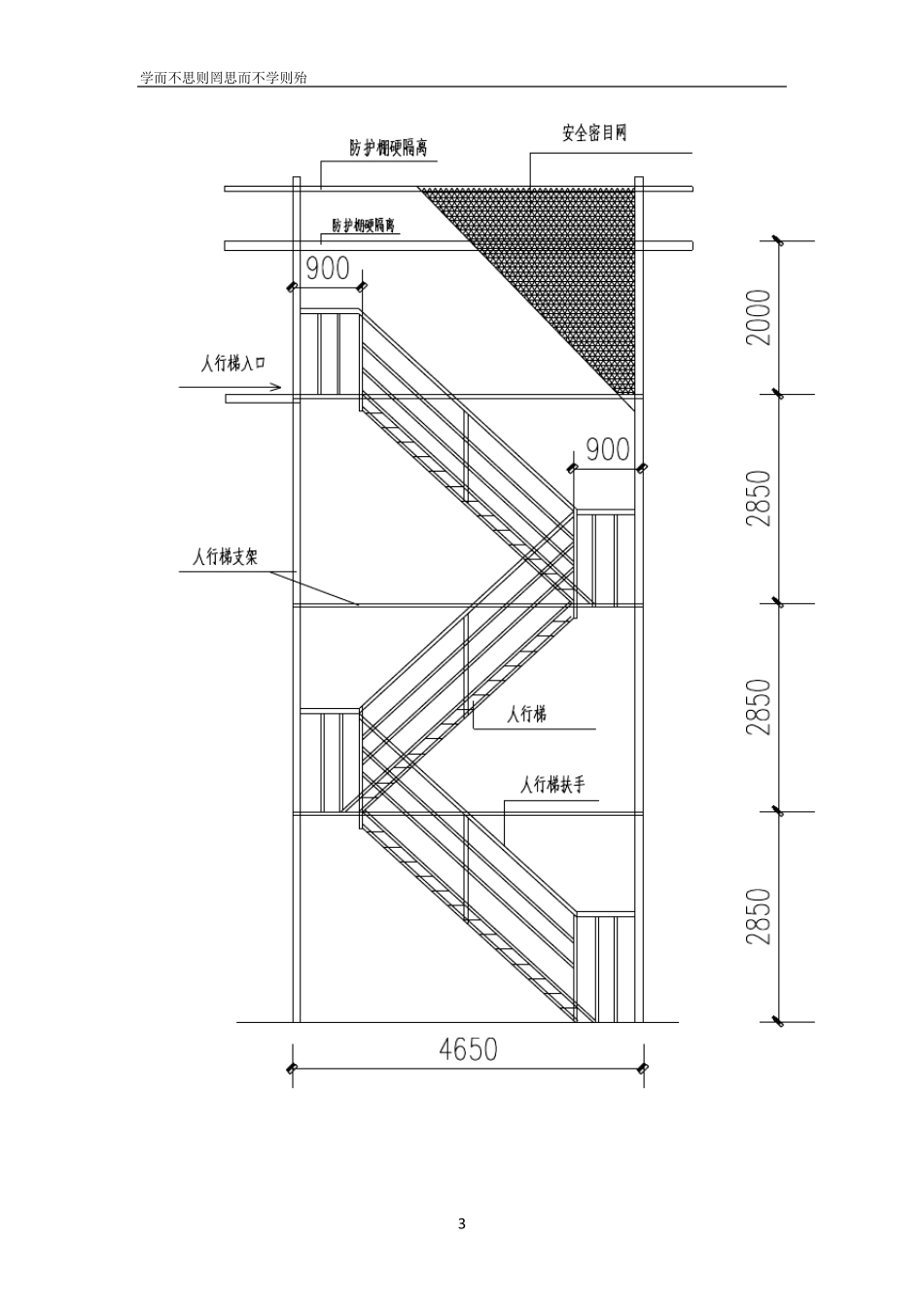
学而不思则罔思而不学则殆 1 深基坑上下临时人行梯安全通道方案 一、 编制依据 1 、建筑施工安全检查标准 JGJ59-2011 2、 建筑施工高处作业安全技术规范 JGJ80-1991 3、 工程建设标准强制性条文(施工安全部分) 4、固定式钢梯及平台安全要求 GB4053.1-2009 5、本工程图纸及施工组织设计。 6、国家及 xx市有关法律法规和现行强制性标准、规范的规定 二、工程概况 本工程为 xxxx地块办公商业项目,由 xxxx房地产置业有限公司开发建设。位于 xx市 xx新区 xx路与 xx路交汇处的东北部附近。建设用地总面积为 12698.8m 。总建筑面积为 64004.63m。地块东南侧由1#、2#楼两栋高层办公建筑组成,其中 2#楼 19 层,1#楼 20 层,南北楼采用连廊连接。地块西北侧由 3#、4#楼 4 层商业建筑。建筑设两层地下室,地下室面积 18369.1 平方米,地下室底板标高为-9.7 米,属于深基坑施工,为提高本项目施工安全技术水平,实现建筑施工现场安全防护设施的规范化、标准化和定型化,促进本项目安全管理,结合本工程管理实际,特编制深基坑上下通道临时楼梯方案。 三、上下人梯施工方案 1)人行梯的布置 为预防施工中发生人员伤亡事故,防止人、物坠 落 ,本工程地下 学而不思则罔思而不学则殆 2 室施工期间在靠近xx 路大门口一侧和东南角办公楼南侧基坑边设置两个基坑上下施工人行梯通道,位置见平面图。(附) 2)上下人梯设计原则 上下人梯的设计,必需满足施工人员上下通行要求,并且稳固,保证人员通行安全,不影响的基坑施工。具体尺寸详见《上下人梯设计平面及剖面图》 学而不思则罔思而不学则殆 3 学而不思则罔思而不学则殆 4 3)人行梯施工流程 4)上下人梯竖向布置 人行梯顶标高为-1.15 与第一道支撑梁平, 上基坑层后安全通道高出地面为2 米,下二层为-6.85.米,底层底标高为-9.7 米与基础底板连接,层高为2.85m 共3 层。 5)上下人行梯施工 上下人梯单侧宽1.1m,成“之”字型向基坑底布置,标准层高2.85m,坡比为1:1,每步楼梯高度20cm。梯层间设休息平台(平台尺寸2.1 m×0.9m),两侧设扶手(高0.9m)。外侧设5cm *5cm 方管防护,外挂安全目网。 6)人行梯骨架施工 上下人梯整体固定在基础底板上,整体支架宽度2.1 米,长人行梯设计 定位 支架平台锚固 人梯安装 安全防护安装 质量检查 学而不思则罔思而不学则殆 5 度4.65 米,四个外 角用100*100 钢柱固定在基础底板的钢筋中...

1、当您付费下载文档后,您只拥有了使用权限,并不意味着购买了版权,文档只能用于自身使用,不得用于其他商业用途(如 [转卖]进行直接盈利或[编辑后售卖]进行间接盈利)。
2、本站所有内容均由合作方或网友上传,本站不对文档的完整性、权威性及其观点立场正确性做任何保证或承诺!文档内容仅供研究参考,付费前请自行鉴别。
3、如文档内容存在违规,或者侵犯商业秘密、侵犯著作权等,请点击“违规举报”。

碎片内容

深基坑上下临时人行梯安全通道方案

确认删除?
VIP
微信客服
  • 扫码咨询
会员Q群
  • 会员专属群点击这里加入QQ群
客服邮箱
回到顶部