电脑桌面
添加小米粒文库到电脑桌面
安装后可以在桌面快捷访问

外墙装修吊篮施工方案VIP免费

外墙装修吊篮施工方案_第1页
1/6
外墙装修吊篮施工方案_第2页
2/6
外墙装修吊篮施工方案_第3页
3/6
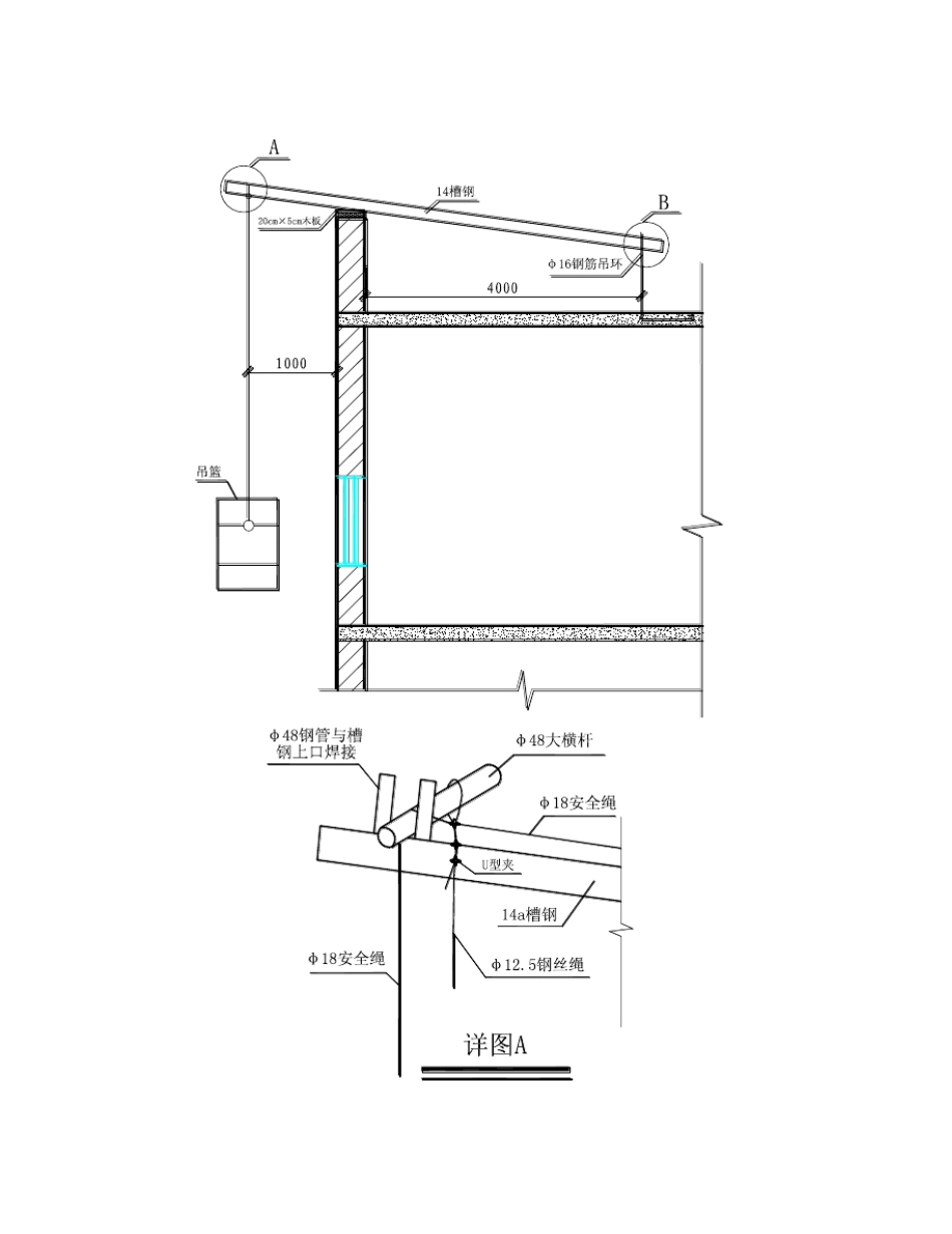
外墙装饰吊篮施工方案 一 、 工 程 概 况 : 本 工 程 为 某 小 区 住 宅 楼 工 程 , 建 筑 面 积 为 8632 ㎡ , 长 107 米 、 宽 11.5 米 、 高18.45 米 。 外 墙 外 保 温 、 涂 料 装 修 均 采 用 吊 篮 进 行 施 工 。 二 、 吊 篮 施 工 方 案 的 选 择 吊 篮 脚 手 架 由 租 赁 站 提 供 , 吊 篮 均 采 用 组 合 式 定 型 吊 篮 , 单 组 吊 篮 长 度 为3米 及 2 米 两 种 , 宽 度 0.8 米 , 两 侧 分 别 配 备 两 组 护 墙 轮 , 起 吊 设 备 为 天 津 产 津 久 牌手 扳 葫 芦 , 并 配 备 防 坠 装 置 (保 安 器 )。 吊 蓝 脚 手 架 安 装 完 毕 后 , 由 项 目 自 检 合 格 后 ,报 安 全 检 查 科 验 收 合 格 后 方 可 使 用 。 屋 面 四 周 均 有 女 儿 墙 , 故 挑 杆 下 墙 体 垫 长800m m ~ 1000m m , 宽 200 ㎜ , 厚 50m m 木 板 。 三 、 吊 篮 脚 手 架 的 搭 设 ( 必 须由 专业架 子工 搭 设 ) 1、 屋 面 挑 杆 的 做法, 挑 杆 为 140 ㎜ ×6 ㎜ 槽钢, 距槽钢前端20 ㎝处分 别 用 2根长 30 ㎝的 钢管( φ48 壁厚 3.5mm)焊做20 ㎝宽 槽口, 距槽钢后 端20 ㎝处, 焊1 根长 30 ㎝的 钢管( φ48 壁厚 3.5mm)与大横杆 连接。 挑 杆 伸出女 儿 墙 1 米 , 挑杆 设 置 为 外 高 里低, 尾部用 一 根横杆 穿 入 预 埋 环 内 , 槽钢尾部将 其 尾部背 住 (也 就是 背 杆 ), 然 后 用 钢管将 每 个 吊 架 上 的 挑 杆 连成 一 个 整 体 , 挑 杆 端头 均 用 木 板 铺 垫 。 2、 屋 面 吊 环 采 用 φ16 钢筋 制 作 , 其 基 本 形 状 为 倒 U 型 , 吊 环 出屋 面 板 长 度 为650mm~ 700mm, 上 口宽 度 为 150mm, 吊 环 锚 入 现 浇 砼 屋 面 板 内 50cm。 3、 连接: 用 钢丝 绳 穿 入 手 扳 葫 芦 , 挑 梁 自 钢丝 绳 多 绕 不 少 于 3 圈 , 并 用 3 个绳 卡 扣 牢 , 绳 卡 方 向 正 确 , 手 扳 葫 芦 挂 钩 挂 在 吊 环 ( 吊 篮 )上 ...

1、当您付费下载文档后,您只拥有了使用权限,并不意味着购买了版权,文档只能用于自身使用,不得用于其他商业用途(如 [转卖]进行直接盈利或[编辑后售卖]进行间接盈利)。
2、本站所有内容均由合作方或网友上传,本站不对文档的完整性、权威性及其观点立场正确性做任何保证或承诺!文档内容仅供研究参考,付费前请自行鉴别。
3、如文档内容存在违规,或者侵犯商业秘密、侵犯著作权等,请点击“违规举报”。

碎片内容

外墙装修吊篮施工方案

您可能关注的文档

确认删除?
VIP
微信客服
  • 扫码咨询
会员Q群
  • 会员专属群点击这里加入QQ群
客服邮箱
回到顶部