电脑桌面
添加小米粒文库到电脑桌面
安装后可以在桌面快捷访问

支撑体系施工技术VIP专享VIP免费

支撑体系施工技术_第1页
1/15
支撑体系施工技术_第2页
2/15
支撑体系施工技术_第3页
3/15
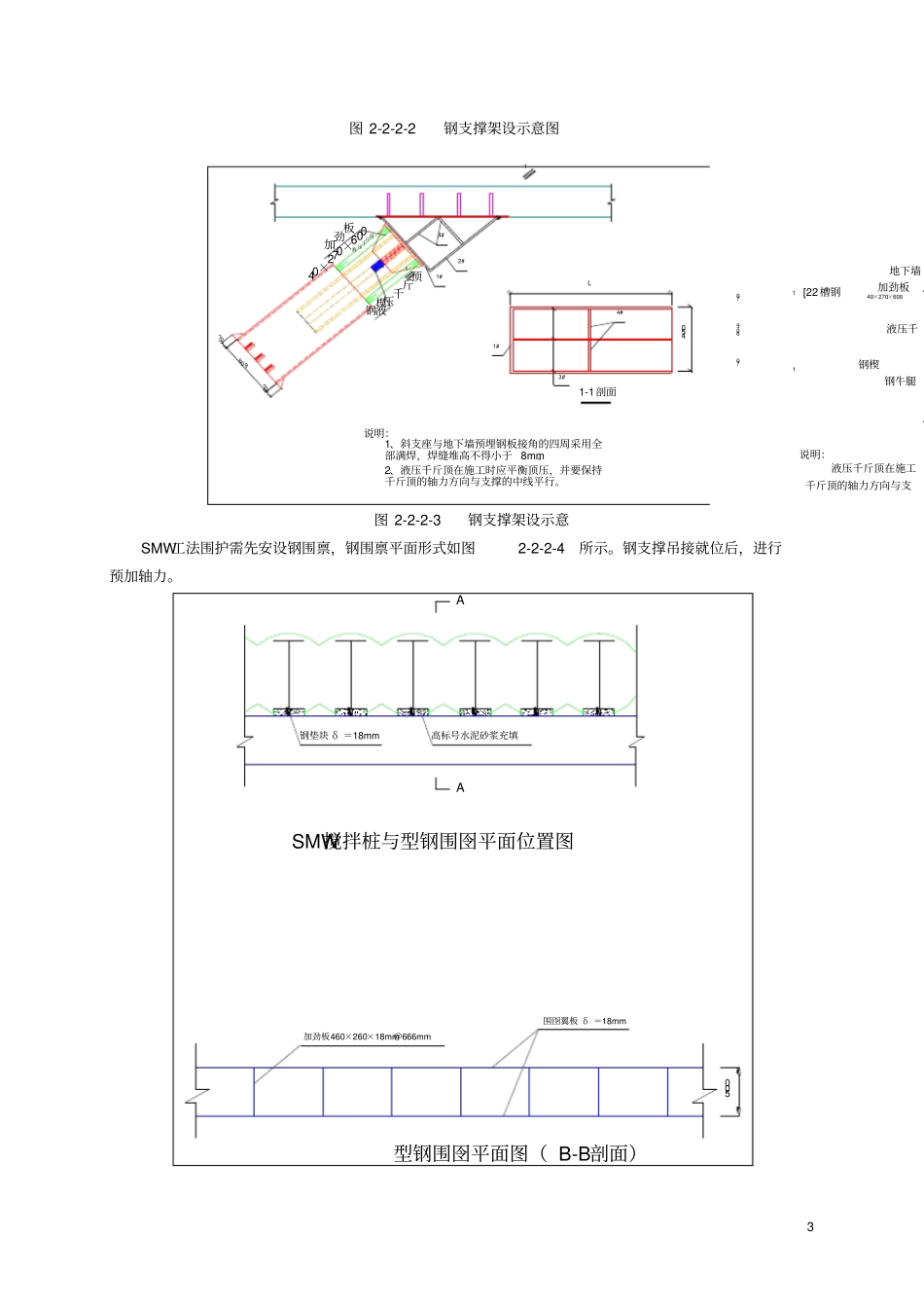
1 3-2-5 支撑体系施工技术1 前言1.1 基坑开挖支撑体系概述钢管支撑架设是基坑开挖过程中一个及其重要的环节,它对维护基坑稳定、防止地下连续墙、SMW搅拌桩、钻孔桩、挖孔桩等围护结构位移变形有着极其重要的作用;钢支撑架设与基坑土方开挖是深基坑施工密不可分的两道关键工序,支撑架设极具时间性和协调性,支撑架设的时间、位置及预加力的大小直接关系到深基坑稳定的成败,支撑架设必须严格满足设计工况的要求。钢支撑一般为 Φ 609mm钢管支撑。对于软土地区,为保证内支撑稳定,设置格构柱、联系梁及立柱桩与钢支撑一起构成内支撑体系。联系梁及格构柱采用型钢或槽钢焊接,立柱桩为Φ 800 钻孔灌注桩。钢立柱插入立柱桩,立柱桩及联系杆与钢支撑间应有可靠连接,以保证内支撑的平面稳定。立柱间隔空设置剪刀撑,竖向设置一组(一组为X型状),材料为 L100X100X10 角钢,每根钢支撑应有型钢抱箍与联系梁连接。1.2 适用范围适用于软土及硬岩明挖法基坑支撑体系施工。2 支撑体系施工2.1 施工工艺流程图钢支撑施工工艺流程见图2-1 。2-1 钢支撑施工流程图2.2 钢支撑施工工艺2.2.1施工准备(1)支撑材料准备根据基坑围护结构实际结构尺寸,按照计划用量备足各种长度的Φ 609 钢支撑管、活络头及钢测量定位基坑围护结构平面找平钢围囹、支撑安装支撑拼装施加预应力结构施工支撑拆除焊接牛腿(支撑)焊接钢垫板(钢围囹)施工监测基坑开挖2 垫箱、不同规格的斜垫箱、施加支撑预应力的油泵装置(带有观测预应力值的仪表)、制作钢系杆的槽钢;钢垫块、钢楔块、紧固螺栓、铁板、钢围囹等支撑材料,分类堆放在料场。各种材料必须经质量检验合格方可按施工进度分批进场,确保进场支撑材料均达到设计要求和施工进度要求。(2)确定支撑安装位置根据设计图纸和实地测定的定位桩号在两侧圈梁上用钢尺测量每道支撑的安装位置,经复核无误后用红漆作出标记。(3)支撑材料拼接准备根据土方开挖进度提前在拼装场按支撑编号及设计长度进行拼装备用。施工斜撑前准备好支座(钢垫箱)同时下料准备好钢牛腿料,一旦工作面出来能及时投入安装。2.2.2支撑架设方案钢支撑主要由三大部分组成:一端固定端、中间段和活络端。支撑架设采用基坑外拼装,吊机现场吊接拼装,如图2-2-2-1 ~3 所示。图 2-2-2-1 钢支撑架设示意时应平衡顶压,并要保持撑的中线平行。埋钢板接角的四周采用全小于8mm。1-1剖面3#L4#450液压千斤顶在施工时应平衡顶压,并要保...

1、当您付费下载文档后,您只拥有了使用权限,并不意味着购买了版权,文档只能用于自身使用,不得用于其他商业用途(如 [转卖]进行直接盈利或[编辑后售卖]进行间接盈利)。
2、本站所有内容均由合作方或网友上传,本站不对文档的完整性、权威性及其观点立场正确性做任何保证或承诺!文档内容仅供研究参考,付费前请自行鉴别。
3、如文档内容存在违规,或者侵犯商业秘密、侵犯著作权等,请点击“违规举报”。

碎片内容

支撑体系施工技术

确认删除?
VIP
微信客服
  • 扫码咨询
会员Q群
  • 会员专属群点击这里加入QQ群
客服邮箱
回到顶部