电脑桌面
添加小米粒文库到电脑桌面
安装后可以在桌面快捷访问

装修施工图资料VIP免费

装修施工图资料_第1页
1/27
装修施工图资料_第2页
2/27
装修施工图资料_第3页
3/27
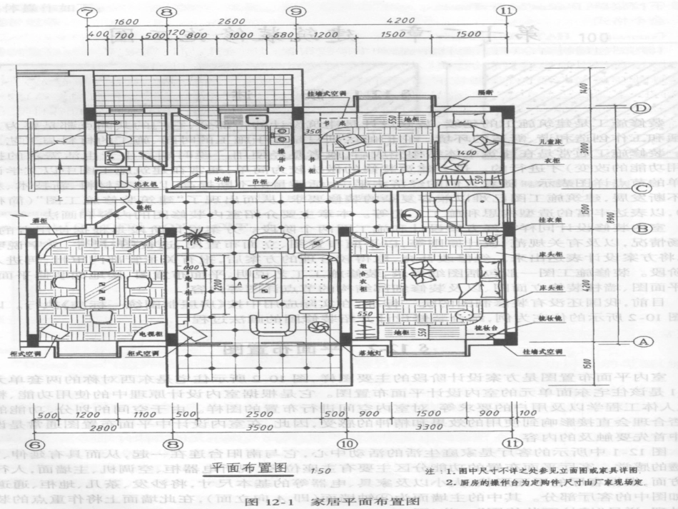
1第十二章建筑装修图§12-1概述1-图纸目录2-装修施工工艺说明3-平面布置图4-楼地面装修平面图5-天花平面图6-墙柱装修立面图7-装修细部结构节点详图房屋制图统一标准装修施工图装修制图标准2平面布置图通常是设计过程中首先触及的内容,空间的划分、功能的分区是否合理关系到使用效果和精神感受。平面布置图通常是设计过程中首先触及的内容,空间的划分、功能的分区是否合理关系到使用效果和精神感受。§12-2平面布置图345平面布置图表达内容有:1、建筑主体结构2、各功能空间的家具的形状和位置3、厨房、卫生间的橱柜、操作台、洗手台、浴缸、大便器等形状和位置4、家电的形状、位置5、隔断、绿化、装饰构件、装饰小品6、标注建筑主体结构的开间和进深等尺寸、主要装修尺寸7、装修要求等文字说明6平面布置图的画法步骤:1、选比例、定图幅2、画出建筑主体结构平面图3、画出厨房设备、家具、卫生洁具、电器设备、隔断、装饰构件等的布置4、标注尺寸、剖面符号、详图索引符号、图例名称、文字说明5、画出地面的拼花造型图案、绿化等6、描粗整理图线7§12-3楼地面装修图楼地面装修图-------地面的造型、材料名称和工艺要求。1、施工依据2、地面材料采购的参考图样。作用:表达各功能空间的地面的铺装形式,注明所选用材料的名称、规格;有特殊要求的还要注明工艺做法和详图尺寸标注方面,主要标注地面材料拼花造型尺寸、地面的标高。891、选比例、定图幅;2、画出建筑主体结构平面图和现场制作的固定家具、隔断、装饰构件;3、画出厨房设备、家具、卫生洁具、电器设备、隔断、装饰构件等的布置;4、标注尺寸、剖面符号、详图索引符号、图例名称、文字说明;5、画出地面的拼花造型图案、绿化等;6、描粗整理图线;地面装修图的画法步骤地面装修图的画法步骤10§12-4天花平面图天花的功能作用1、装饰2、照明3、音响4、空调5、防火天花装修天花平面图通常采用“镜像”投影作图悬吊式直接式111、建筑主体结构一般可以不表示(虚线表示门窗位置);2、天花造型、灯饰、空调风口、排气扇、消防设施的轮廓线,条块饰面材料的排列方向线;3、建筑主体结构的主要轴线、轴号,主要尺寸;4、天花造型及各类设施的定形定位尺寸、标高;5、天花的各类设施、各部位的饰面材料、涂料规格、名称、工艺说明;6、节点详图索引或剖面、断面等符号。天花平面布置图表达的内容12131、选比例、定图幅2、画出建筑主体结构平面图3、画出厨房设备、家具、卫生洁具、电器设备、隔断、装饰构件等的布置4、标注尺寸、剖面符号、详图索引符号、图例名称、文字说明5、画出地面的拼花造型图案、绿化等6、描粗整理图线平面布置图的画法步骤141516§12-5墙柱面装修图墙柱面装修图主要表示建筑主体结构中铅垂立面的装修方法。墙柱面装修图的主要内容有:1、墙柱面造型的轮廓线、壁灯、装饰件等;2、吊顶天花及吊顶以上的主体结构;3、墙柱面饰面材料、涂料的名称、规格、颜色、工艺说明等4、尺寸标注:壁饰、装饰线等造型定形尺寸、定位尺寸;楼地面标高、吊顶天花标高等;5、详图索引、剖面、断面等符号标注;6、立面图两端墙柱体的定位轴线、编号。17181、选比例、定图幅,画出地面、楼板及墙面两端的定位轴线等;2、画出墙面的主要造型轮廓线;3、画出墙面次要轮廓线、尺寸标注、剖面符号、详图索引、文字说明4、描粗整理图线墙面装修图画法步骤建筑主体结构的梁、板、墙用粗实线;墙面主要造型轮廓线用中实线;次要的轮廓线如装饰线、浮雕图案等用细实线表示。1920§12-6节点装修详图节点装修详图指的是装修细部的局部放大图、剖面图、断面图等。节点详图画法步骤:1、选比例、定图幅,画出地面、楼板及墙面两端的定位轴线等;2、画出墙面的主要造型轮廓线;3、画出墙面次要轮廓线、尺寸标注、剖面符号、详图索引、文字说明4、描粗整理图线建筑主体结构的梁、板、墙用粗实线;墙面主要造型轮廓线用中实线;次要的轮廓线如装饰线、浮雕图案等用细实线表示。21222324252627

1、当您付费下载文档后,您只拥有了使用权限,并不意味着购买了版权,文档只能用于自身使用,不得用于其他商业用途(如 [转卖]进行直接盈利或[编辑后售卖]进行间接盈利)。
2、本站所有内容均由合作方或网友上传,本站不对文档的完整性、权威性及其观点立场正确性做任何保证或承诺!文档内容仅供研究参考,付费前请自行鉴别。
3、如文档内容存在违规,或者侵犯商业秘密、侵犯著作权等,请点击“违规举报”。

碎片内容

装修施工图资料

您可能关注的文档

确认删除?
VIP
微信客服
  • 扫码咨询
会员Q群
  • 会员专属群点击这里加入QQ群
客服邮箱
回到顶部