电脑桌面
添加小米粒文库到电脑桌面
安装后可以在桌面快捷访问

工程项目管理流程图VIP免费

工程项目管理流程图_第1页
1/20
工程项目管理流程图_第2页
2/20
工程项目管理流程图_第3页
3/20
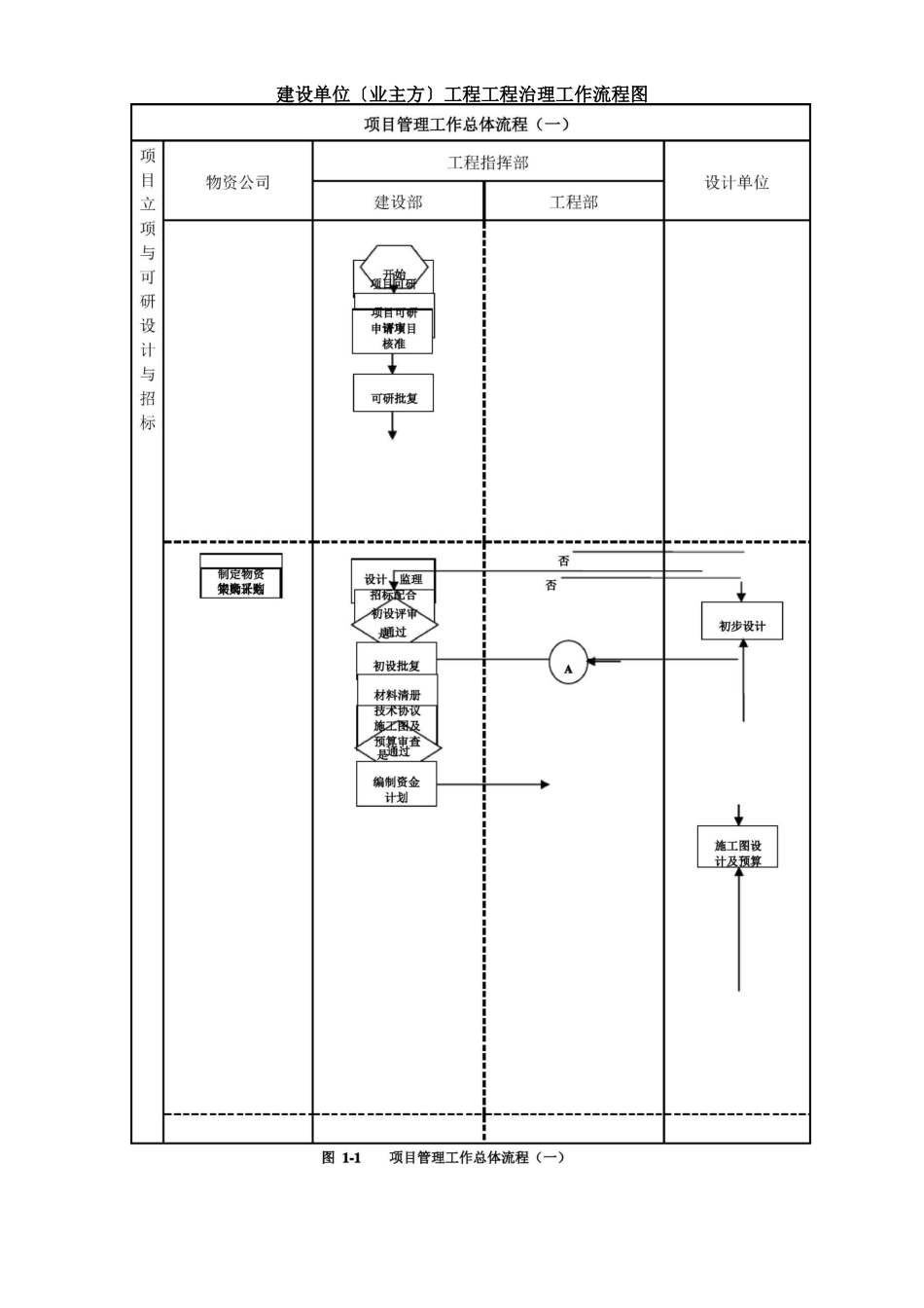
建设单位〔业主方〕工程工程治理工作流程图工程治理工作总体流程〔二〕建 设 施竣验 收评 价物资公司工程指挥部监理单位施工单位建设部工程部111否1 11 11 11初设赢清册与施工图材料编清册对达工补充物资 采购1程进度方案 __条件_1—! <—/是一 、 、满足/4土建〔根底施工〕1合 同 治 理 进 度 治 理 平 安 治 理 质 量 治 理 造 价 治 理 技 术 治 理 档案治理安装〔杆塔组立〕调试〔架线附件〕1 1■i竣工验收 r 是\!否 । ।!111通过 启动投运工程结算 资料移交工程结算审计1 11 11 1 1►1 1竣工决算 资产移交111 11 11 11 11 11 11 11 11 11 1评价考核结束图 1-2 工程治理工作总体流程〔二〕施工协调治理流程图开始令下达:工后启开工作监理单位施工单位配合协调解决问审批复工申请结束提出复工申请审核工程开工报审表 提出相关需要施工单 位解决的施工问题组织编写工程开 工报审表.组织工程开工 负责落实解决: 响工程施工的 : 关事项不 确认整改完工程工程指挥部建设部工程部审批工程开工报审表~Tt -rr -r-JXl 足[人 助 yh召开工程例会,解决 相关施工出现的问题图 1-3 施工协调治理流程工程建设月报上报流程图工程指挥部监理单位施工单位建设部工程部汇总物资、施工、监 理工程建设情况,报 有关部门汇总物资、施工、监 理月报,编制?电网 建设月报?,每月 5审查施工月报,并 编制监理月报,每 月 27 日前报工程部日前报 1・程指怦部〈开始〕1 f编制月报〔包括各个 专业本月工作情况, 存在的困难和问题 以及相应对策,下月 进度方案〕,每月 23日前报监理单位图 1-4 工程建设月报上报流程图 1-5 档案信息治理流程档案信息治理流程图监理单位施工单位工程指挥部建设部工程部审查工程竣工档案审核相关文档审核工程竣工档案工程竣工档案移交所有相关文档案 做好影像文档的 按蛾嫩文件废料确认工程档案治理目 标收档案范围责要求确认工程竣工档案 移交接受工程竣工档案 移交经施工单位审核后 上报验竣工资料~~开始 提出档案治理的 目标方案及要求工程竣工档案移交 至公艘案室工程平安治理工作总体流程〔一〕项平安监察部工程指挥部参建单位图 2-1 工程平安治理工作总体流程〔一〕工程平安治理工作总体流程〔二〕项 目平安监察部工程指挥部参建单位建设部工程部图 2-2 工程平安治理工作总体流程〔二〕工程质量治理工作总体流程〔一〕工 ...

1、当您付费下载文档后,您只拥有了使用权限,并不意味着购买了版权,文档只能用于自身使用,不得用于其他商业用途(如 [转卖]进行直接盈利或[编辑后售卖]进行间接盈利)。
2、本站所有内容均由合作方或网友上传,本站不对文档的完整性、权威性及其观点立场正确性做任何保证或承诺!文档内容仅供研究参考,付费前请自行鉴别。
3、如文档内容存在违规,或者侵犯商业秘密、侵犯著作权等,请点击“违规举报”。

碎片内容

工程项目管理流程图

您可能关注的文档

精品文库+ 关注
实名认证
内容提供者

该用户很懒,什么也没介绍

确认删除?
VIP
微信客服
  • 扫码咨询
会员Q群
  • 会员专属群点击这里加入QQ群
客服邮箱
回到顶部