电脑桌面
添加小米粒文库到电脑桌面
安装后可以在桌面快捷访问

双层通风幕墙VIP免费

双层通风幕墙_第1页
1/22
双层通风幕墙_第2页
2/22
双层通风幕墙_第3页
3/22
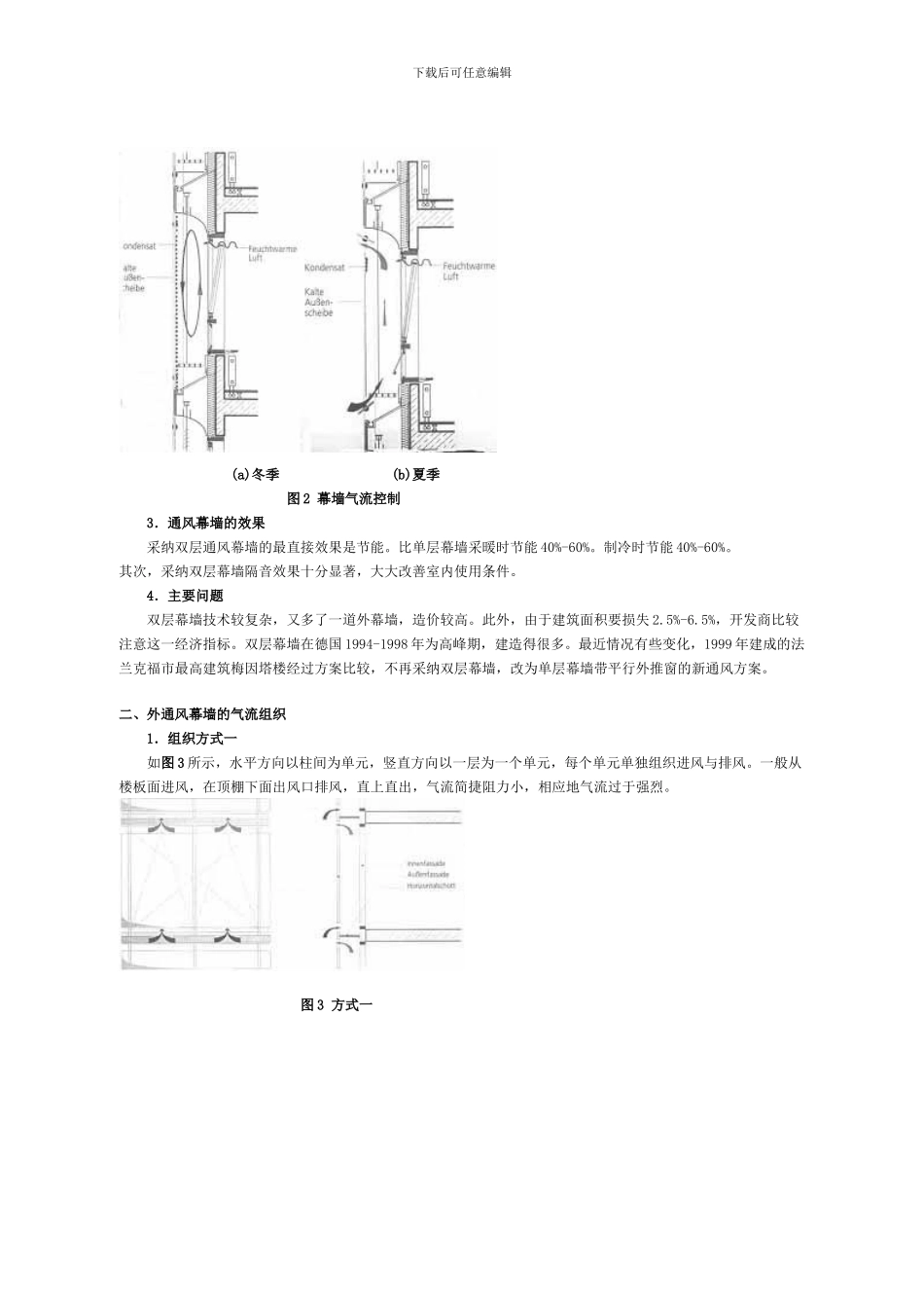
下载后可任意编辑双 层 通 风 幕 墙中国建筑装饰协会铝制品委员会专家组成员 中国建筑科学讨论院讨论员 赵西安 笔者 2001 年 11 月考察了欧洲一些通风幕墙工程,本文对通风幕墙的技术和它的应用作一些介绍。 一、概 述 双层通风幕墙 20 世纪 90 年代在欧洲出现,并逐渐得到应用,尤其在德国,应用更为广泛,它对提高幕墙的保温、隔热、隔声功能起很大的作用。目前国内也在设计建造双层通风幕墙。 1.双层通风幕墙的组成 双层通风幕墙不同于传统的单层幕墙,它由内、外两道幕墙组成。内幕墙一般采纳明框幕墙或活动窗,或开有检修门,便于维护、清洁;外幕墙可采纳有框幕墙或点支玻璃幕墙。内外幕墙之间形成一个相对封闭的空间,空气可以从下部进风口进入这一空间,又从上部排风口离开这一空间,这一空间常常处于空气流动状态,称之为热通道,热量在这空间内流动。因此双层通风幕墙又称热通道幕墙或呼吸式幕墙。由于这种幕墙的基本特征是:双层幕墙和空气流动、交换,所以本文称之为双层通风幕墙。 2.双层通风幕墙的分类 (1)封闭式内通风幕墙 封闭式内通风幕墙从室内的下通道吸入空气,在热通道内上升至上部排风口,从吊顶内的风管排出。这一循环在室内进行,外幕墙完全封闭(图 1a)。 图 1 (a)封闭式通风幕墙 (b)开敞式通风幕墙 由于进风口是室内空气,热通道中空气温度与室内基本相同,这就大大节约了取温和制冷的能源消耗。这种形式的幕墙对取暖地区更为有利。由于内封闭通风幕墙的循环要靠机械系统,对设备有较高的要求。 封闭式通风幕墙的外幕墙密闭,通常采纳中空玻璃,名框幕墙的铝型材应采纳断热铝型材。内幕墙则采纳单层玻璃幕墙或单层铝门窗。 内外幕墙之间通道宽常为 150mm-300mm。也有一些工程为检修、清洗方便,宽度可取为 500mm-600mm。为提高节能效果,通道内设电动百页和电动卷帘。 作封闭式通风幕墙的一个例子--美国纽约西方化工中心大厦(1980)。外幕墙中空玻璃,内幕墙单层玻璃。空气从地板下的风道进入,上升至楼板下的风道排走。通道内装有光感控制的电动百页。 (2)开敝式外通风幕墙 与内通风幕墙相反,开敝式外通风幕墙是封闭的,采纳中空玻璃;外幕墙采纳单层玻璃,设有进风口和排风口,利用室外进入,经过热通道带走热量,从上部排风口排出,减少太阳辐射热的影响,节约能源。它无须专用机械设备,完全靠自然通风,维护和运行费用低(图 1b)。是目前应用最广泛的形式。开...

1、当您付费下载文档后,您只拥有了使用权限,并不意味着购买了版权,文档只能用于自身使用,不得用于其他商业用途(如 [转卖]进行直接盈利或[编辑后售卖]进行间接盈利)。
2、本站所有内容均由合作方或网友上传,本站不对文档的完整性、权威性及其观点立场正确性做任何保证或承诺!文档内容仅供研究参考,付费前请自行鉴别。
3、如文档内容存在违规,或者侵犯商业秘密、侵犯著作权等,请点击“违规举报”。

碎片内容

双层通风幕墙

您可能关注的文档

确认删除?
VIP
微信客服
  • 扫码咨询
会员Q群
  • 会员专属群点击这里加入QQ群
客服邮箱
回到顶部