电脑桌面
添加小米粒文库到电脑桌面
安装后可以在桌面快捷访问

脚手架专项施工方案-免费滴VIP免费

脚手架专项施工方案-免费滴_第1页
1/32
脚手架专项施工方案-免费滴_第2页
2/32
脚手架专项施工方案-免费滴_第3页
3/32
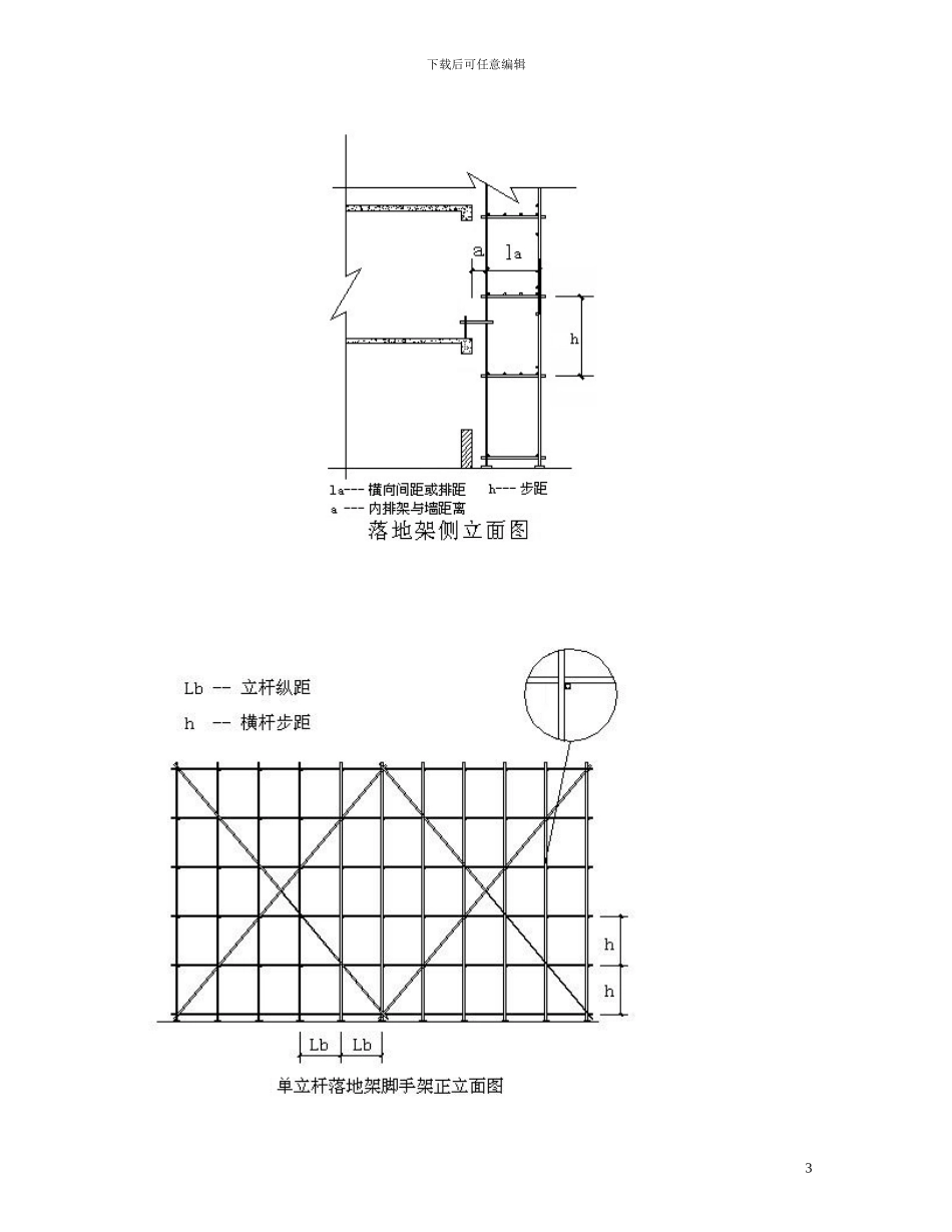
下载后可任意编辑脚手架专项施工方案 第一节编制依据 《建筑施工计算手册》江正荣著 中国建筑工业出版社; 《建筑施工手册》第四版 中国建筑工业出版社、《钢结构设计法律规范》GB50017-2024 中国建筑工业出版社; 《建筑结构荷载法律规范》GB50009-2001中国建筑工业出版社; 《建筑施工脚手架有用手册(含垂直运输设施)》中国建筑工业出版社; 《建筑施工扣件式钢管脚手架安全技术法律规范》JGJ130-2001 中国建筑工业出版社; 《混凝土结构设计法律规范》GB50010-2024中国建筑工业出版社; 《建筑地基基础设计法律规范》GB50007-2024中国建筑工业出版社; 《建筑施工安全检查标准》JGJ59-99中国建筑工业出版社。 第二节 工程概况 该工程位于河北石家庄,属于框架结构,地上6层,地下0层,建筑总高度26.0米,建筑总面积10000.0平方米,标准层层高4.2米。1.脚手架参数双排脚手架搭设高度为 24.0 米,立杆采纳单立管;搭设尺寸为:立杆的纵距为 1.60米,立杆的横距为1.20米,大小横杆的步距为1.80 米;内排架距离墙长度为0.30米;小横杆在上,搭接在大横杆上的小横杆根数为 2 根;脚手架沿墙纵向长度为 120 米;采纳的钢管类型为 Φ48×3.5; 横杆与立杆连接方式为单扣件;取扣件抗滑承载力系数为 0.80;1下载后可任意编辑连墙件采纳两步三跨,竖向间距 3.60 米,水平间距4.80 米,采纳扣件连接;连墙件连接方式为单扣件;2.活荷载参数《工现场设施安全计算手册》表4-6,施工均布活荷载标准值:3.000 kN/m2;脚手架用途:结构脚手架;同时施工层数:2 层;3.风荷载参数根据《建筑结构荷载法律规范》附表D.4,本工程地处河北省石家庄市,基本风压为0.35 kN/m2; 风荷载高度变化系数μz为0.84,风荷载体型系数μs为0.65;脚手架计算中不考虑风荷载作用;4.静荷载参《工现场设施安全计算手册》表4-3,4-4,4-5,4-6有每米立杆承受的结构自重标准值(kN/m2):0.1278;脚手板自重标准值(kN/m2):0.350;栏杆挡脚板自重标准值(kN/m2):0.140;安全设施与安全网(kN/m2):0.005;脚手板铺设层数:4;脚手板类别:木脚手板;栏杆挡板类别:栏杆、木脚手板挡板;每米脚手架钢管自重标准值(kN/m2):0.038;5.地基参数地基土类型:素填土;地基承载力标准值(kN/m2):500.00;立杆基础底面面积(m2):0.09;地面广截力调整系数:0.40第三节脚手架计算书2下载后可任意编辑 3下载后可任意编辑一、小横杆的计算:小横杆根据简支梁进行强度和挠度计...

1、当您付费下载文档后,您只拥有了使用权限,并不意味着购买了版权,文档只能用于自身使用,不得用于其他商业用途(如 [转卖]进行直接盈利或[编辑后售卖]进行间接盈利)。
2、本站所有内容均由合作方或网友上传,本站不对文档的完整性、权威性及其观点立场正确性做任何保证或承诺!文档内容仅供研究参考,付费前请自行鉴别。
3、如文档内容存在违规,或者侵犯商业秘密、侵犯著作权等,请点击“违规举报”。

碎片内容

脚手架专项施工方案-免费滴

雏圣文化+ 关注
实名认证
内容提供者

欢迎光临,大量办公文档供您挑选。

确认删除?
VIP
微信客服
  • 扫码咨询
会员Q群
  • 会员专属群点击这里加入QQ群
客服邮箱
回到顶部