电脑桌面
添加小米粒文库到电脑桌面
安装后可以在桌面快捷访问

人体工程学尺寸附图

人体工程学尺寸附图_第1页
1/7
人体工程学尺寸附图_第2页
2/7
人体工程学尺寸附图_第3页
3/7
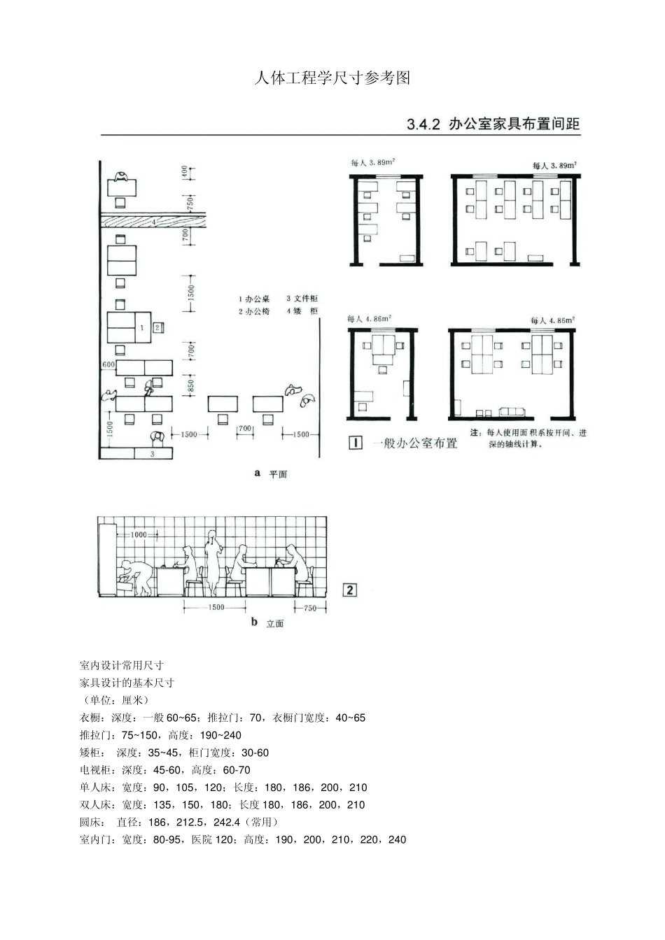
人体工程学尺寸参考图 室内设计常用尺寸 家具设计的基本尺寸 (单位:厘米) 衣橱:深度:一般 60~65;推拉门:70,衣橱门宽度:40~65 推拉门:75~150,高度:190~240 矮柜: 深度:35~45,柜门宽度:30-60 电视柜:深度:45-60,高度:60-70 单人床:宽度:90,105,120;长度:180,186,200,210 双人床:宽度:135,150,180;长度180,186,200,210 圆床: 直径:186,212.5,242.4(常用) 室内门:宽度:80-95,医院 120;高度:190,200,210,220,240 厕所、厨房门:宽度:80,90;高度:190,200,210 窗帘盒:高度:12-18;深度:单层布 12;双层布 16-18(实际尺寸) 沙发:单人式:长度:80-95,深度:85-90;坐垫高:35-42;背高:70-90 双人式:长度:126-150;深度:80-90 三人式:长度:175-196;深度:80-90 四人式:长度:232-252;深度 80-90 茶几:小型,长方形:长度 60-75,宽度 45-60,高度 38-50(38 最佳) 中型,长方形:长度 120-135;宽度 38-50 或者 60-75 正方形: 长度 75-90,高度 43-50 大型,长方形:长度 150-180,宽度 60-80,高度 33-42(33 最佳) 圆形:直径 75,90,105,120;高度:33-42 方形:宽度 90,105,120,135,150;高度 33-42 书桌:固定式:深度 45-70(60 最佳),高度 75 活动式:深度 65-80,高度 75-78 书桌下缘离地至少 58;长度:最少 90(150-180 最佳) 餐桌:高度 75-78(一般),西式高度 68-72,一般方桌宽度 120,90,75; 长方桌宽度 80,90,105,120;长度 150,165,180,210,240 圆桌:直径 90,120,135,150,180 书架:深度 25-40(每一格),长度:60-120;下大上小型下方深度 35-45,高度 80-90 活动未及顶高柜:深度 45,高度 180-200 木隔间墙厚:6-10;内角材排距:长度(45-60)*90 室内常用尺寸: 1、墙面尺寸 (1)踢脚板高;80—200mm。 (2)墙裙高:800—1500mm。 (3)挂镜线高:1600—1800(画中心距地面高度)mm。 2.餐厅 (1) 餐桌高:750—790mm。 (2) 餐椅高;450—500mm。 (3) 圆桌直径:二人 500mm.二人 800mm,四人 900mm,五人 1100mm,六人 1100-1250mm,八人 1300mm,十人 l500mm,十二人 1800mm。 (4) 方餐桌尺寸:二人 700×850(mm),四人 1350×850(mm),八人 2250×850(mm), (5) 餐桌转盘直径;700—800mm。 餐桌间距:(其中座椅占...

1、当您付费下载文档后,您只拥有了使用权限,并不意味着购买了版权,文档只能用于自身使用,不得用于其他商业用途(如 [转卖]进行直接盈利或[编辑后售卖]进行间接盈利)。
2、本站所有内容均由合作方或网友上传,本站不对文档的完整性、权威性及其观点立场正确性做任何保证或承诺!文档内容仅供研究参考,付费前请自行鉴别。
3、如文档内容存在违规,或者侵犯商业秘密、侵犯著作权等,请点击“违规举报”。

碎片内容

人体工程学尺寸附图

您可能关注的文档

小辰+ 关注
实名认证
内容提供者

出售各种文档和资料

确认删除?
VIP
微信客服
  • 扫码咨询
会员Q群
  • 会员专属群点击这里加入QQ群
客服邮箱
回到顶部