电脑桌面
添加小米粒文库到电脑桌面
安装后可以在桌面快捷访问

化工管道布置图

化工管道布置图_第1页
1/31
化工管道布置图_第2页
2/31
化工管道布置图_第3页
3/31
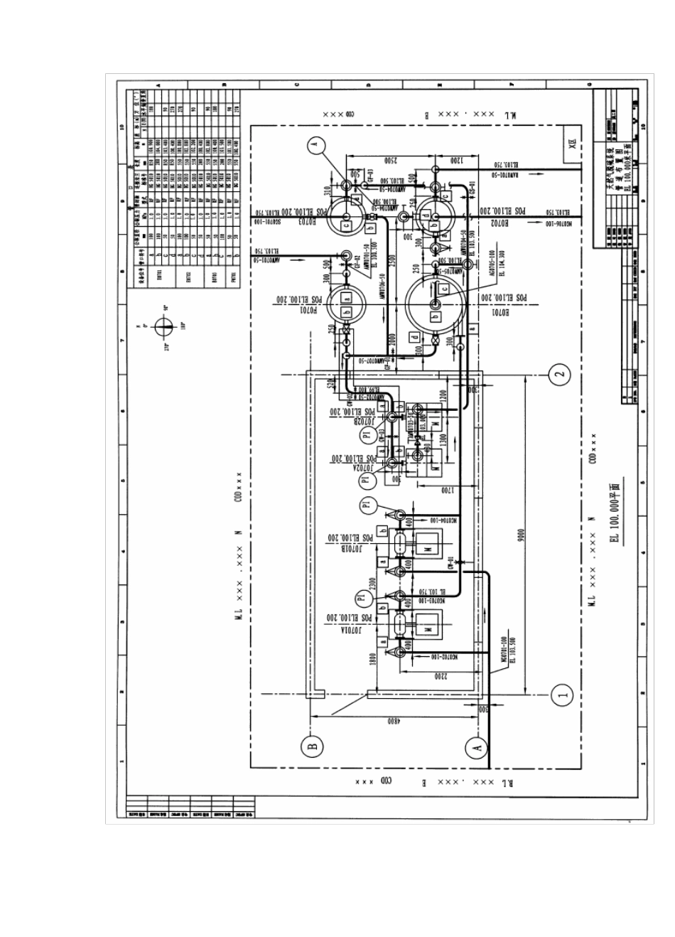
第 十 章 化 工 管 道 布 置 图 管 道 的 布 置 和 设 计 是 以 管 道 仪 表 流 程 图 、 设 备 布 置 图 及 有 关 土 建 、 仪 表 、 电 气 、 机 泵等 方 面 的 图 纸 和 资 料 为 依 据 的 。 设 计 首 先 应 满 足 工 艺 要 求 , 使 管 道 便 于 安 装 、 操 作 及 维 修 ,另 外 应 合 理 、 整 齐 和 美 观 。 根 据HG/T 20549-1998《 化 工 装 置 管 道 布 置 设 计 规 定 》( 国 际 通用 设 计 体 制 和 方 法 ) 的 要 求 , 化 工 装 置 管 道 布 置 设 计 的 图 样 包 括 : 管 道 布 置 图 、 管 道 轴 测图 、 管 口 方 位 图 、 管 架 图 与 管 件 图 , 本 章 将 分 别 介 绍 这 五 种 图 样 。 10.1 管 道 布 置 图 10.1.1 管 道 布 置 图 的 作 用 和 内 容 管 道 布 置 图 (配 管 图 ), 主 要 用 于 表 达 车 间 或 装 置 内 管 道 的 空 间 位 置 、 尺 寸 规 格 , 以 及与 机 器 、 设 备 的 连 接 关 系 。 管 道 布 置 图 是 管 道 安 装 施 工 的 重 要 依 据 。 图 10-1 为 天 然 气 脱 硫 系 统 管 道 布 置 图 。 从 图 中 可 以 看 出, 管 道 布 置 图 一般包 括 以 下内容 。 ⑴ 一组视图 视图 按正投影法 绘制 , 包 括 平面 图 和 剖视图 , 用 以 表 达 整 个车 间 ( 装 置 )建 筑物和 设 备 的 基本 结构以 及 管 道 、 阀、 管 件 、 仪 表 控制 点等 的 布 置 安 装 情况。 ⑵ 尺 寸 和 标注 包 括 管 道 、 管 件 、 阀门、 仪 表 控制 点的 定 位 尺 寸 和 其他必要 的 相关 标注和 说明等 。 ⑶ 管 口 表 ⑷ 安 装 方 位 标 ⑸ 标题栏及 修 改栏 10.1.2 绘制 管 道 布 置 图 应 遵循的 规 定 管 道 布 置 图 的 设 计 要 遵循HG/T 20549-1998( 国 际 通 用 设 计 体 制 和 方 法 )《 化 工 装 置 管道 布 置 设 计 规 定 》。 具体 到管 道 布 置 图 的 绘制 应 遵循下列规 定 : ⑴ 图 线宽度( HG 20549.1—1998...

1、当您付费下载文档后,您只拥有了使用权限,并不意味着购买了版权,文档只能用于自身使用,不得用于其他商业用途(如 [转卖]进行直接盈利或[编辑后售卖]进行间接盈利)。
2、本站所有内容均由合作方或网友上传,本站不对文档的完整性、权威性及其观点立场正确性做任何保证或承诺!文档内容仅供研究参考,付费前请自行鉴别。
3、如文档内容存在违规,或者侵犯商业秘密、侵犯著作权等,请点击“违规举报”。

碎片内容

化工管道布置图

您可能关注的文档

确认删除?
VIP
微信客服
  • 扫码咨询
会员Q群
  • 会员专属群点击这里加入QQ群
客服邮箱
回到顶部