电脑桌面
添加小米粒文库到电脑桌面
安装后可以在桌面快捷访问

焦炉临时大棚安装施工方案

焦炉临时大棚安装施工方案_第1页
1/8
焦炉临时大棚安装施工方案_第2页
2/8
焦炉临时大棚安装施工方案_第3页
3/8
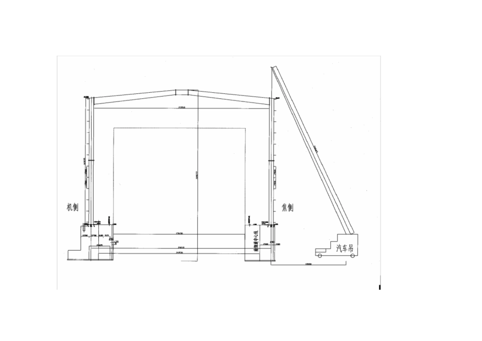
一、工程概况本工程2#焦炉防雨大棚安装工程,焦炉防雨大棚门形钢架共计16 榀,屋面檩条为C 型钢,屋面为单层彩钢板。门形钢架柱顶标高为 18.64 米,屋面坡度为 1:10。钢柱在标高 8.705 米处为节点板焊接连接。钢柱为H600*200*11*17 焊接 H型钢,其中 9 榀屋面梁为变截面 900(600)*200*6*8 焊接 H型钢,7 榀为 H400*200*8*13,柱间支撑在 1-2 、8-9、15-16 间安装,机、焦侧对称安装,其余柱间支撑焊接 2*L75*5 横向拉杆。防雨大棚总重约为98 吨。工程安装难点是焦炉大棚钢柱单体较长,单体吊装,机侧有推焦平台和烟道障碍;焦侧熄焦道与南分烟道障碍,使得吊装半径增大。二、 施工准备 1 、劳动力配备:2、施工机具:序号机械设备名称规格、型号单位数量预计使用时间1 汽车吊50t 台1 2 台班2 汽车吊25t 台1 4 台班3 电焊机(交流)BXI-500 台4 6 台班4 气割设备套2 5 手拉葫芦3 吨个4 6 手拉葫芦5 吨个2 7 棕绳4”米200 3、施工前,技术人员应认真做好施工图纸交底和技术交底工作,工种人数工种人数气焊工2 起重工1 电焊工4 力工2 电工1 合计10 对存在的问题和疑点及时与项目部管理人员沟通解决。4、认真检查吊装机具的安全性能,对吊车大小钩头,钢丝绳、安全带及夹具进行检查,保证施工过程中的安全使用。三、施工方法1、施工步骤预埋件安装 -----钢柱吊装 -----钢柱安装 -----柱间支撑及拉杆安装----1-9榀屋架安装 -----10-16榀屋架安装 -----屋面檩条安装-----机焦侧檩条安装 -----屋面彩钢板安装 -----机焦侧壁彩钢板安装。2、结构安装吊车及吊具的选择使用 25 吨汽车吊在焦侧吊装,焦侧钢柱吊装回转半径为10.00米,杆长为 31.5 米,额定起重量为4.40 吨,每根钢柱重约2.0 吨;使用 50 吨汽车吊在机侧吊装,机侧钢柱吊装回转半径为7 米,杆长31.5 米,额定起重量为5.1 吨;使用 50 吨汽车吊在机侧吊装,屋架吊装回转半径为22 米,杆长为 40 米,额定起重量为 2.4 吨,每榀屋架重约 2.1 吨,两台汽车吊同时作业,满足吊装要求。在吊装过程中必须使用棕绳固定空中的屋架结构,防止屋架受风力或吊装转动发生旋转碰到安装好的大棚柱子。3、钢丝绳选择:取钢丝绳的抗拉强度为1520Mpa时,为保持稳定采用单绳吊装, 两钢丝绳长度分别为4m。根据公式: [s] ≤P/Kd——钢丝绳直径mm;K——钢丝绳的安全系数,取5;P——钢丝绳破断拉力[S] ——钢丝绳所受的荷...

1、当您付费下载文档后,您只拥有了使用权限,并不意味着购买了版权,文档只能用于自身使用,不得用于其他商业用途(如 [转卖]进行直接盈利或[编辑后售卖]进行间接盈利)。
2、本站所有内容均由合作方或网友上传,本站不对文档的完整性、权威性及其观点立场正确性做任何保证或承诺!文档内容仅供研究参考,付费前请自行鉴别。
3、如文档内容存在违规,或者侵犯商业秘密、侵犯著作权等,请点击“违规举报”。

碎片内容

焦炉临时大棚安装施工方案

确认删除?
VIP
微信客服
  • 扫码咨询
会员Q群
  • 会员专属群点击这里加入QQ群
客服邮箱
回到顶部