电脑桌面
添加小米粒文库到电脑桌面
安装后可以在桌面快捷访问

检修厂新办公大楼电缆布设方案(初始参考)样本

检修厂新办公大楼电缆布设方案(初始参考)样本_第1页
1/5
检修厂新办公大楼电缆布设方案(初始参考)样本_第2页
2/5
检修厂新办公大楼电缆布设方案(初始参考)样本_第3页
3/5
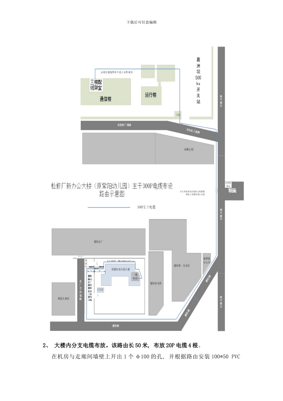
下载后可任意编辑检修厂新办公大楼( 原紫阳幼儿园) 电缆布设方案一、工程概况施工区域: 葛洲坝 500kv 开关站、 江南路部分段、 紫阳路部分段、 原紫阳幼儿园、 内口河路部分段, 原紫阳防腐基地。因长江电力检修厂办公楼搬迁, 需对新址( 原紫阳幼儿园大楼) 进行电话线路建立, 具体施工内容如下。二、施工内容1、主干电缆布放。该段路由全长 1540 米, 共布放 300P 电缆 1 根。1.1 自葛洲坝 500KV 开关站通信楼三楼配线架室布放一根 300P 通信电缆, 沿开关站内 8#廊道经开关站上坡路并入江南路, 在右岸检查站对面处, 由 8 号廊道经预埋的线管放入江南路的线缆沟内, 该段路由全长 600m; 1.2 电缆沿江南路线缆沟进行布放, 行至与紫阳路交叉口时转入紫阳路线缆沟, 直至梦园大酒店旁水厂路的线缆沟内, 该段路由全长 700m。葛洲坝右岸检查站对面至葛洲坝分公司段电缆沟, 因被人行道路面砖覆盖, 需掀开线缆井上的地面砖进行施工, 共计 8㎡。葛洲坝分公司至原紫阳幼儿园后门处, 共需掀 25 块盖板进行施工。1.3 沿水厂路线缆沟放至原紫阳幼儿园后门处, 将电缆由新修筑的线缆沟放入原幼儿园大楼缆沟内, 沿大楼后侧缆沟布放, 直至大楼东侧的机房墙下, 在墙上开 1 个 φ100 的孔, 将电缆沿孔洞布放至 1 楼机房该段路由全长 240m。在机房内安装 900P 交接箱 1 台。下载后可任意编辑2、 大楼内分支电缆布放。该路由长 50 米, 布放 20P 电缆 4 根。在机房与走廊间墙壁上开出 1 个 φ100 的孔, 并根据路由安装 100*50 PVC下载后可任意编辑线槽, 共计 50 米, 并安装 4 个 20P 分线盒, 分线盒处的楼层间开出 φ50 的孔, 从交接箱布放 4 根 20P 电缆经由 PVC 线槽布放至 4 个楼层的分线盒内, 共需布放20P 电缆 100 米; 3、幼儿园大楼机房至水务公司新办公区分支电缆布放。该路由长 440 米, 布放 100P 电缆 1 根。由幼儿园一楼机房交接箱中布放一根 100P 电缆, 按幼儿园内布放的 300P 电缆路由布放至紫阳路与水厂路交汇处, 经过此处一线缆过街通路, 将电缆沿梦园大酒店外墙原有线缆路由穿墙进入一楼天花板内, 再将电缆布放至梦圆大酒店弱电竖井中, 经过竖井直至 6 楼机房, 在机房内安装一台 100P 分线盒。下载后可任意编辑4、 幼儿园大楼机房至原紫阳防腐基地分支电缆布放。该路由共长 1400 米, 布放 100P 电缆一根。由原紫阳幼儿...

1、当您付费下载文档后,您只拥有了使用权限,并不意味着购买了版权,文档只能用于自身使用,不得用于其他商业用途(如 [转卖]进行直接盈利或[编辑后售卖]进行间接盈利)。
2、本站所有内容均由合作方或网友上传,本站不对文档的完整性、权威性及其观点立场正确性做任何保证或承诺!文档内容仅供研究参考,付费前请自行鉴别。
3、如文档内容存在违规,或者侵犯商业秘密、侵犯著作权等,请点击“违规举报”。

碎片内容

检修厂新办公大楼电缆布设方案(初始参考)样本

范哲铺+ 关注
实名认证
内容提供者

想你所想,急你所急,你需要的都在店铺里可以找到。

确认删除?
VIP
微信客服
  • 扫码咨询
会员Q群
  • 会员专属群点击这里加入QQ群
客服邮箱
回到顶部