电脑桌面
添加小米粒文库到电脑桌面
安装后可以在桌面快捷访问

管线探测技术交底

管线探测技术交底_第1页
1/3
管线探测技术交底_第2页
2/3
管线探测技术交底_第3页
3/3
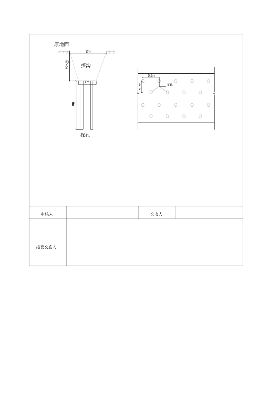
西安市轨道交通工程施工质量验收技术资料统一用表施工质量验收技术资料通用表CJ2-5 编 号施工技术交底记录合同号D4-TJ-0地铁里程YDK26+~YDK27+工程名称西安地铁四号线TJSG-14 标行政中心站交底日期施工单位中铁三局集团有限公司分项工程名称围护结构交底提要人工开挖地下管线探沟技术要求及安全注意事项交底内容:一、 工程概况 :行政中心站位于张家堡广场内,是与西安地铁2 号线十字换乘车站,地下管线有绿化给水管道、污水管道、二号线既有车站的电缆、电线等。二、 施工方案 :1、施工准备测量准备:在探沟开挖前,测量组按照地下围护桩的位置在施工现场进行放线,确定开挖位置。根据业主提供的管线布置图初步确定管线位置。机具准备:铁锹、洛阳铲等。人员准备 : 根据现场施工条件,考虑准备安排管线专职安全员1 人,工人10 人。2、探沟开挖的目的:本次探沟开挖的目的主要是了解、确定设计图纸上的管线的具体分布位置,进一步调查施工场地范围内有无新增管线或者其他地下物,为后期施工做准备。3、探沟开挖具体技术要求:探沟采用分段放坡开挖,探沟宽度2m,基底宽度1m,开挖深度为原地表以下,下一步可采用洛阳铲挖至 6 米。(详细见附图)因场区局部现状地表以下存在原有建筑物基础、及硬化地面,故先采用小型机械击碎后清除。开挖时必须小心,用铁锨轻轻挖掘,不得用镐。发现土质发生变化时应改用木钎将覆盖物清除干净,以保证不损坏地下管线。在开挖过程中,发现地下管线要及时报告现场工程师(必要时报业主及监理),在现场工程师的监视下轻轻扩宽范围,探明管线的种类、规格、根数、走向和深度并作记录。同时要采取清理周边大块石渣土块,用细土拖住管线底部(不得使其悬空),上用木板封盖,插上彩旗作标记,专人负责监护等重点防护措施。将发现的地下管线全部清理暴露出地面,不留死角,探明管线路径、埋深。现场施工人员需认真检查,不能漏挖、错挖。在挖出的电缆旁立警示牌,并用砖、砂等暂时覆盖保护并及时上报业主相关部门进行确认,确定保护方案进行保护,并请及时迁改。现场管线安全员负责记录当天的工作部位、工作内容、缆线状况,下班前对当天的探沟开挖及探测的实际情况及时进行汇报。探沟开挖完毕后将所挖探出的管线的种类、规格、走向及深度等绘出管线埋设分布图,上报业主和监理,并及时请相关部门进行确认验收,制定迁改方案。4、施工安全注意事项:1、开挖前,每天开挖前在检查沟槽四周与上部环境的同时,...

1、当您付费下载文档后,您只拥有了使用权限,并不意味着购买了版权,文档只能用于自身使用,不得用于其他商业用途(如 [转卖]进行直接盈利或[编辑后售卖]进行间接盈利)。
2、本站所有内容均由合作方或网友上传,本站不对文档的完整性、权威性及其观点立场正确性做任何保证或承诺!文档内容仅供研究参考,付费前请自行鉴别。
3、如文档内容存在违规,或者侵犯商业秘密、侵犯著作权等,请点击“违规举报”。

碎片内容

管线探测技术交底

确认删除?
VIP
微信客服
  • 扫码咨询
会员Q群
  • 会员专属群点击这里加入QQ群
客服邮箱
回到顶部