电脑桌面
添加小米粒文库到电脑桌面
安装后可以在桌面快捷访问

建筑层高面积计算

建筑层高面积计算_第1页
1/9
建筑层高面积计算_第2页
2/9
建筑层高面积计算_第3页
3/9
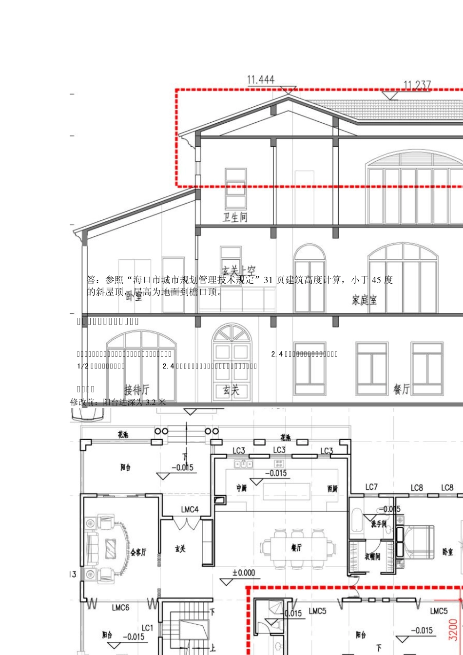
一、关于建筑层高确定 规则:居住类建筑(包括公寓、排屋、别墅等)层高一般不得大于3.3 米,大于3.3 米的,按该层水平投影面积的2 倍计算建筑面积。 关于坡屋顶层高界定的应对方法 修改前:顶层层高超过3 .3 米 修改后:于顶层加楼板,使顶层层高控制在 3 .3 米 答:参照“海口市城市规划管理技术规定”3 1 页建筑高度计算,小于 4 5 度的斜屋顶,层高为地面到檐口顶。 二、关于阳台面积计算确定 规则:建筑物阳台、露台(带雨棚或景观亭)进深不大于2.4 米的部分,按其水平投影面积的1/2 计算建筑面积;超出2.4 米的部分,按其水平投影全面积计算建筑面积。 应对方法 修改前:阳台进深为 3 .2 米 修改后:阳台进深缩减为2 .4 米 答:阳台超过进深不大于2.4米,超出2.4米的部分,按其水平投影全面积计算建筑面积。应控制阳台进深不应大于2.4米。 但图中所圈部分应标注为室外平台,不应标注为阳台。 三、关于露台面积计算确定 规则:建筑物阳台、露台(带雨棚或景观亭)进深不大于2.4 米的部分,按其水平投影面积的1/2 计算建筑面积;超出2.4 米的部分,按其水平投影全面积计算建筑面积。 应对方法 1(针对大屋面露台)、室内开向露台的门改为窗,如图。注:此法在深圳地区可行,请确认是否满足海南相关规范 答:参照“海口市城市规划管理技术规定”3 0 页,(二)不计算建筑面积的范围,9 、 无顶盖的花架等建筑小品不计算。此处仅为花架,不计算建筑面积。 另,露台(带雨棚或景观亭),露台是要有雨棚和顶的。此“露台”标注有误,应为屋面。屋面不计算建筑面积。 2(针对小露台)、控制露台的进深在 2.4米内,如图。 答,此处进深超出 2 .4 米的部分,按其水平投影全面积计算建筑面积。进深应控制在 2 .4 米。 四、关于山地地下室面积计算问题 甲方提供的以下相关规范出现冲突,望确定计算标准。 ( 1) ( 2) 海口市城市规划管理技术规定之附录二计算规则——计算建筑面积的范围 4、地下室、半地下室、地下车间、仓库、商店、地下指挥部等及相应出入口的建筑面积,按其上口外墙(不包括采光井、防潮层及其保护墙)外围的水平面积计算。 5、用深基础做地下架空层加以利用,层高超过2.2米,按架空层外围的水平面积的一半计算建筑面积。 6、坡地建筑物利用吊脚做架空层加以利用且层高超过2.2米的,按围护结构外围水平面积计算建筑面积。 ( 3) 海口市城市规划管理技术规定...

1、当您付费下载文档后,您只拥有了使用权限,并不意味着购买了版权,文档只能用于自身使用,不得用于其他商业用途(如 [转卖]进行直接盈利或[编辑后售卖]进行间接盈利)。
2、本站所有内容均由合作方或网友上传,本站不对文档的完整性、权威性及其观点立场正确性做任何保证或承诺!文档内容仅供研究参考,付费前请自行鉴别。
3、如文档内容存在违规,或者侵犯商业秘密、侵犯著作权等,请点击“违规举报”。

碎片内容

建筑层高面积计算

小辰5+ 关注
实名认证
内容提供者

出售各种资料和文档

相关文档

确认删除?
VIP
微信客服
  • 扫码咨询
会员Q群
  • 会员专属群点击这里加入QQ群
客服邮箱
回到顶部