电脑桌面
添加小米粒文库到电脑桌面
安装后可以在桌面快捷访问

建筑工程定额预算阶段练习三及答案VIP专享

建筑工程定额预算阶段练习三及答案_第1页
1/7
建筑工程定额预算阶段练习三及答案_第2页
2/7
建筑工程定额预算阶段练习三及答案_第3页
3/7
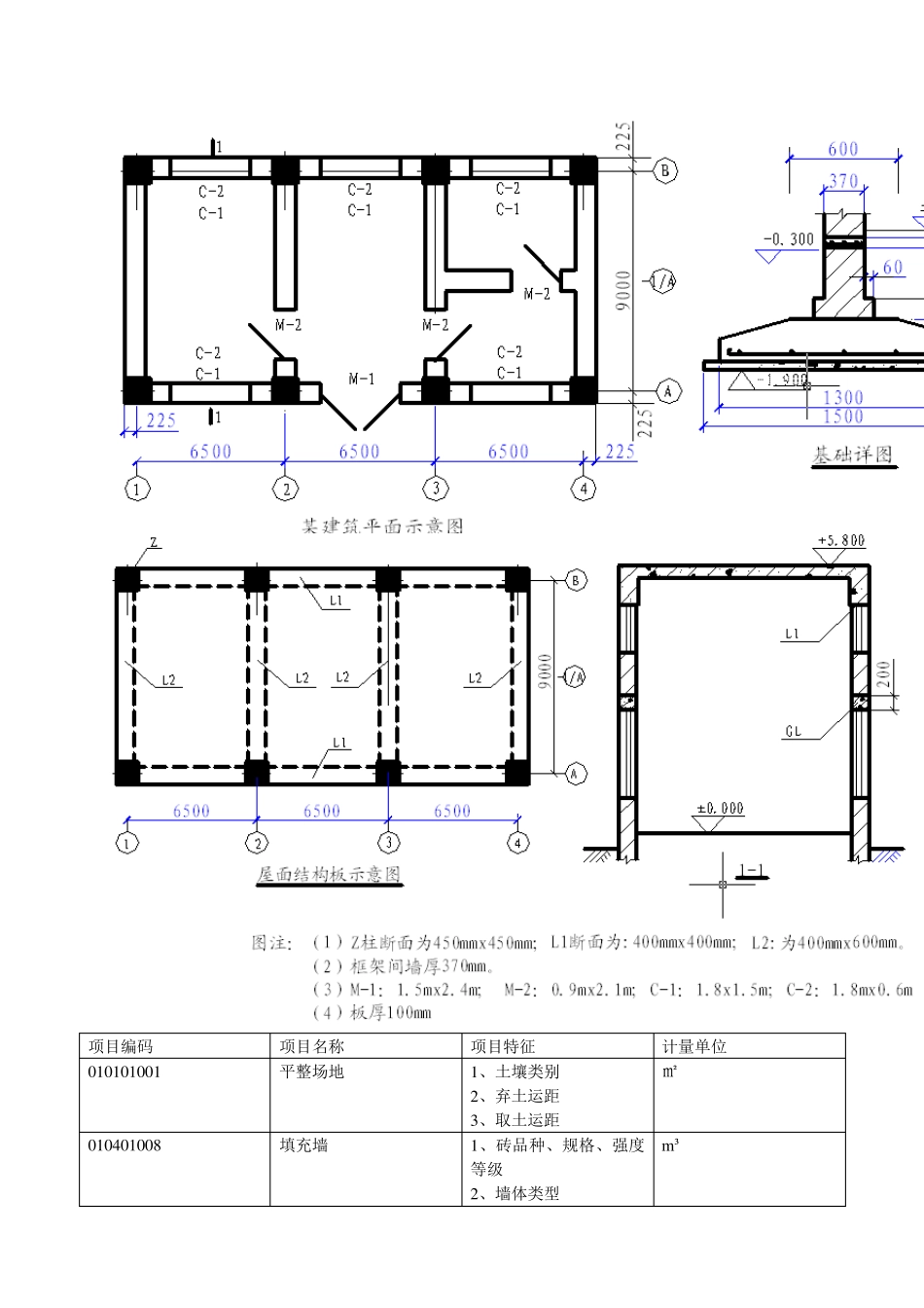
华东理工大学网络教育学院 建筑工程定额预算课程阶段练习三(第五章) 一、判断题 1、招标工程量清单应由具有编制能力的投标人或受其委托,具有相应资质的工程造价咨询人或招标代理人编制。 2、工程量清单由分部分项工程量清单、措施项目清单、其他项目清单组成。 3、项目特征是指构成分部分项工程项目、措施项目自身价值的本质特征,应按计价规范的项目特征并结合拟建工程项目的实际予以描述。 4、清单计量时,构造柱的马牙槎可以不计算。 5、定额计算工程量应考虑施工方案和施工损耗,工程量清单计算工程量时,不考虑施工方案和施工损耗,以工程实体的净工程量进行计算。 6、根据建设工程工程量清单计价规范,木质门即可以以樘计量,按设计图示数量计算,也可以以平方米计量,按设计图示洞口尺寸以面积计算。 7、根据建设工程工程量清单计价规范,有梁板的柱高,应自柱基上表面(或楼板上表面)至上一层楼板下表面之间的高度计算。 8、根据建设工程工程量清单计价规范,当基础与墙身使用不同材料时,位于设计室内地面高度≤±300mm 时,以不同材料为界线,高度>±300mm 时,以设计室内地面为分界线。 9、根据建设工程工程量清单计价规范,“平整场地”工程量按设计图示尺寸以建筑物首层面积计算。 10、措施项目是指为完成工程项目施工,发生于该工程施工准备和施工过程中的技术、生活、安全、环境保护等方面的项目。 11、暂估价是指在工程量清单中提供的用于支付必然发生但暂时不能确定价格的材料、工程设备的单价以及专业工程的金额。 12、综合单价是指完成一个规定清单项目所需的人工费、材料和工程设备费、施工机具使用费和企业管理费、利润以及一定范围内的风险费用。 13、招标人仅要求对分包的专业工程进行总承包管理和协调时,总承包服务费可以参照按分包的专业工程估算造价的 1%计算。 14、在公布招标控制价时,可以只公布招标控制价的总价。 15、招标工程量清单编制的准确性和完整性由投标人负责。 二、单项选择题 1. 工程量清单的编制者是( ) A 建设主管部门 B 招标人或工程造价咨询人 C 投标人 D 承包人 2. 从性质上说,工程量清单是( )的组成部分。 A 招标文件 B 施工设计图纸 C 投标文件 D 可行性研究报告 3. 按《计价规范》规定,各子项工程量乘以对应的综合单价经累计得到( )费用。 A 分部分项工程费 B 单位工程 C 单项工程 D 工程项目 4. 按《计价规范》规定,关...

1、当您付费下载文档后,您只拥有了使用权限,并不意味着购买了版权,文档只能用于自身使用,不得用于其他商业用途(如 [转卖]进行直接盈利或[编辑后售卖]进行间接盈利)。
2、本站所有内容均由合作方或网友上传,本站不对文档的完整性、权威性及其观点立场正确性做任何保证或承诺!文档内容仅供研究参考,付费前请自行鉴别。
3、如文档内容存在违规,或者侵犯商业秘密、侵犯著作权等,请点击“违规举报”。

碎片内容

建筑工程定额预算阶段练习三及答案

确认删除?
VIP
微信客服
  • 扫码咨询
会员Q群
  • 会员专属群点击这里加入QQ群
客服邮箱
回到顶部