电脑桌面
添加小米粒文库到电脑桌面
安装后可以在桌面快捷访问

开关插座房间布置表

开关插座房间布置表_第1页
1/11
开关插座房间布置表_第2页
2/11
开关插座房间布置表_第3页
3/11
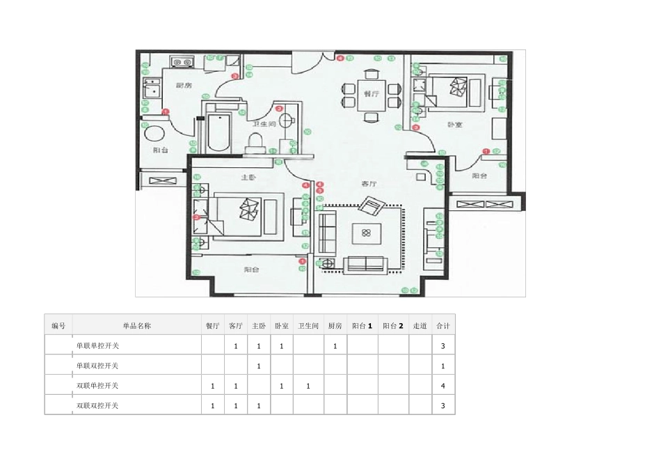
开关插座房间布置表 房间名称 插座 开关 位置 数量 位置 卧室 床头两边各1 个(电话/床头灯) 2 门边、门头(双控或双回路控制吸顶灯) 电视 2 装饰效果灯开关 空调(三孔带开关) 1 电脑(三孔带开关) 1 预留 1~2 客厅 电视 2 吊灯双回路控制 空调(三孔带开关) 1 玄关灯双控 沙发两侧各1 2 装饰效果灯开关 预留 1~2 卫生间 热水器(三孔带开关) 1 镜前灯 洗衣机(三孔带开关) 1 排风扇(最好在马桶边) 镜边(吹风机) 1 吸顶灯或浴霸 马桶边(电话) 1 预留 1~2 厨房 排烟机(三孔带开关) 1 吸顶灯 炉灶下(以防以后换为电器灶) 1 操作台灯 水槽下(可以装小厨宝-“小型容积壁挂式电热水器”/垃圾粉碎器) 1 水台边 1 操作台(用于小电器/带开关) 2~3 微波炉(三孔带开关) 1 消毒柜(三孔带开关) 1 预留 1 餐厅 电冰箱(三孔带开关) 1 吊灯双回路控制 餐桌边 1~2 装饰效果灯 预留 1~2 阳台 预留 1~2 吸顶灯 玄关 预留 1 与客厅开关处做双控 书房 电脑(三孔带开关) 1 吊灯 空调(三孔带开关) 1 电脑一电视(音视频共享) 书桌边(台灯) 1 电视或有线一电脑(音视频共享) 预留 1~2 有线 客厅一各卧室一餐厅一主卫一书房 电话 客厅一各卧室一餐厅一主卫一书房一厨房 网络 客厅一各卧室一餐厅一主卫一书房一厨房 整体音响 客厅一各卧室一餐厅一主卫一书房一厨房-观景阳台 AV 共享 客厅-各卧室-餐厅-书房 弱电集中布线﹝卫星电视线路预留) 二室两厅/开关插座布局图及说明 编号 单品名称 餐厅 客厅 主卧 卧室 卫生间 厨房 阳台 1 阳台 2 走道 合计 单联单控开关 1 1 1 1 3 单联双控开关 1 1 双联单控开关 1 1 1 1 4 双联双控开关 1 1 1 3 三联单控开关 0 三联双控开关 0 10A 三极插座 1 1 1 10A 三极插座带开关 1 1 1 2 10A 两位两极插座 3 4 3 1 11 10A 二、三极插座 4 8 7 6 1 5 1 2 1 35 10A 二、三极插座带开关 0 16A 三极插座(带开关) 1 1 1 1 4 单联电视插座 1 1 1 1 4 单联电话插座 1 1 1 1 4 单联信息插座 0 电话 + 信息插座 1 1 2 合计 7 17 17 14 5 8 1 3 2 74 多位开关: 几个开关并列,各自控制各自的灯。往往也称:双联、三联,或一开、四开等。 双控开关: 二个开关在不同位置可...

1、当您付费下载文档后,您只拥有了使用权限,并不意味着购买了版权,文档只能用于自身使用,不得用于其他商业用途(如 [转卖]进行直接盈利或[编辑后售卖]进行间接盈利)。
2、本站所有内容均由合作方或网友上传,本站不对文档的完整性、权威性及其观点立场正确性做任何保证或承诺!文档内容仅供研究参考,付费前请自行鉴别。
3、如文档内容存在违规,或者侵犯商业秘密、侵犯著作权等,请点击“违规举报”。

碎片内容

开关插座房间布置表

您可能关注的文档

确认删除?
VIP
微信客服
  • 扫码咨询
会员Q群
  • 会员专属群点击这里加入QQ群
客服邮箱
回到顶部