电脑桌面
添加小米粒文库到电脑桌面
安装后可以在桌面快捷访问

最实用的2013农村建设计方案图

最实用的2013农村建设计方案图_第1页
1/56
最实用的2013农村建设计方案图_第2页
2/56
最实用的2013农村建设计方案图_第3页
3/56
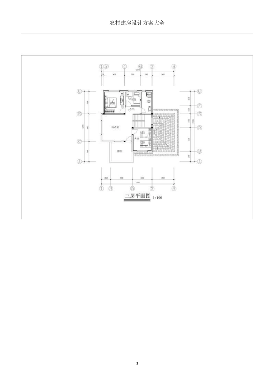
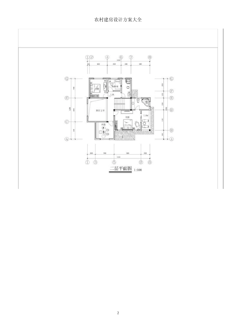
农村建房设计方案大全 1 一、独栋别墅户型 农村的暴发户,链子很粗的新贵,可以考虑这样的户型。大气! 户型一 提高幸福指数的关键 农村建房设计方案大全 2 农村建房设计方案大全 3 农村建房设计方案大全 4 农村建房设计方案大全 5 农村建房设计方案大全 6 农村建房设计方案大全 7 农村建房设计方案大全 8 农村建房设计方案大全 9 农村建房设计方案大全 1 0 户型二 一座豪宅旺三代((*^__^*) 嘻嘻……,这么像房产公司的广告?!) 农村建房设计方案大全 1 1 农村建房设计方案大全 1 2 农村建房设计方案大全 1 3 农村建房设计方案大全 1 4 农村建房设计方案大全 1 5 农村建房设计方案大全 1 6 二、家族户型 家中人丁兴旺的,可以考虑这种联排户型。要是前面有口池塘,凉风习习,池塘的知了叽叽喳喳叫着, 能够给后代一个不错的童年想象。 农村建房设计方案大全 1 7 三、让城里人留口水的户型(独栋别墅型 ) 不用说了,在城市里花50万买一百平米,在农村可以建一座这样的别墅,再买一台车, 那就是真正的优质生活。鸟语花香,莺飞燕舞,卧听风雨声,蟀嗡入梦来,怀抱娇妻,多美 农村建房设计方案大全 1 8 的意境啊! 当然这个户型的外立面还是有可改善的地方,比如采用圆拱窗比矩形窗好看一点。 四、实用经济型 农村建房设计方案大全 1 9 不用说,这样的户型实在经济,农村的施工人员看一眼图纸就能鼓捣出来,不用请专门的施工人员, 呵呵。摘菜东篱下,悠然问犬吠,这时一种怡然的生活态度! 这种平屋顶造价不高,比较简单,不过不是很好看,一般的做法会在上面做女儿墙,围起来。 农村建房设计方案大全 2 0 农村建房设计方案大全 2 1 农村建房设计方案大全 2 2 农村建房设计方案大全 2 3 农村建房设计方案大全 2 4 农村建房设计方案大全 2 5 五、精选小成本户型 下面的图片,第一张为效果图,第二、第三张为一层、二层平面图,如果有第四张,那就是第三层平面图。 户型一 方案适合联排建筑 , 是经济型农村住宅的典范,建筑面积 142.9 平方米,占地面积 129 平方米。 本方案造价约为 12万 元。 建筑立面丰富,层次错落有致,给人一种优雅、大气的感觉。 农村建房设计方案大全 2 6 农村建房设计方案大全 2 7 农村建房设计方案大全 2 8 户型二 典型的徽派建筑,建筑美观、大方。 本方案适合联排建筑 , 建筑面积 191.5 平方米,...

1、当您付费下载文档后,您只拥有了使用权限,并不意味着购买了版权,文档只能用于自身使用,不得用于其他商业用途(如 [转卖]进行直接盈利或[编辑后售卖]进行间接盈利)。
2、本站所有内容均由合作方或网友上传,本站不对文档的完整性、权威性及其观点立场正确性做任何保证或承诺!文档内容仅供研究参考,付费前请自行鉴别。
3、如文档内容存在违规,或者侵犯商业秘密、侵犯著作权等,请点击“违规举报”。

碎片内容

最实用的2013农村建设计方案图

您可能关注的文档

确认删除?
VIP
微信客服
  • 扫码咨询
会员Q群
  • 会员专属群点击这里加入QQ群
客服邮箱
回到顶部