电脑桌面
添加小米粒文库到电脑桌面
安装后可以在桌面快捷访问

金属饰面板安装施工工艺设计标准

金属饰面板安装施工工艺设计标准_第1页
1/14
金属饰面板安装施工工艺设计标准_第2页
2/14
金属饰面板安装施工工艺设计标准_第3页
3/14
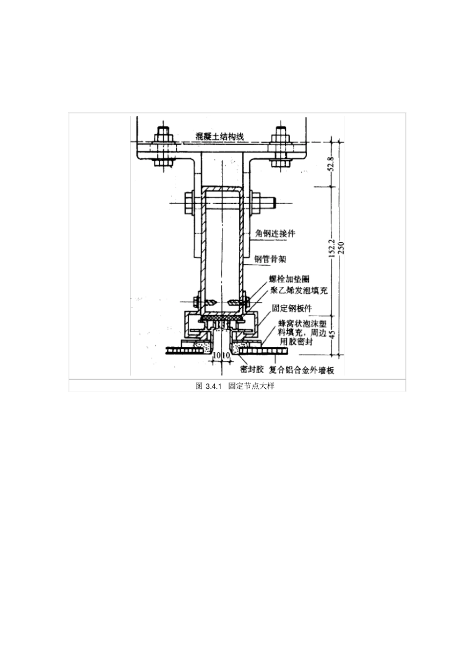
WORD 完美格式..整理分享 .. SGBZ-0345 金属饰面板安装施工工艺标准依据标准:《建筑工程施工质量验收统一标准》GB50300-2001 《建筑装饰装修工程施工质量验收规范》GB50210-2001 1、范围本工艺标准适用于工业与民用建筑工程的内外墙面、屋面、顶棚等各种金属饰面板安装工程。亦可与玻璃幕墙或大玻璃窗配套应用,以及在建筑物四周的转角部位、玻璃幕墙的伸缩缝、水平部位的压顶等配套应用。目前生产金属饰面板的厂家较多,各厂的节点构造及安装方法存在一定差异,安装时应仔细了解。本工艺标准仅叙述了其中一种的作法。2、施工准备2.1 材料要求:2.1.1 彩色涂层钢板: 原板多为热轧钢板和镀锌钢板。为提高钢板的防腐蚀性能和表面性能,须涂覆有机、无机或复合涂层,其中以有机涂层钢板发展较快,常用的有机涂层为聚氯乙烯,此外还有聚丙烯酸酯、环氧树脂、 醇酸树脂等。 涂层与钢板的结合方法有薄膜层压法和涂料涂覆法。彩色涂层钢板的主要用途可作屋面板和墙板等。上钢三厂生产的塑料复合钢板,长度为 1800mm 、2000mm ,宽度为 450mm 、 500mm 、1000mm ,厚度有 0.35 ~2.0mm等多种。具有耐腐蚀、耐磨、绝缘等性能。塑料与钢板的剥离强度≥20N/cm。2.1.2 铝合金板:用于装饰工程的铝合金板,其品种和规格较多。从表面处理方法分,有阳极氧化处理及喷涂处理。从常用的色彩分:有银白色、古铜色、金色等。从几何尺寸分:有条形板和方形板。条形板的宽度多为80~ 100mm ,厚度多为0.5~1.5mm ,长度 6m 左右。方形板包括正方形、长方形等。用于高层建筑的外墙板,单块面积一般较大,刚度和耐久性要求高,因而板要适当厚一些,甚至要加设肋条。从装饰效果分:有铝合金花纹板、铝质浅花纹板、铝及铝合金波纹板、铝及铝合金压型板等。2.1.3 骨架材料:是由横竖杆件拼成,主要材质为铝合金型材或型钢等。因型钢较便宜,强度高,安装方便,所以多数工程采用角钢或槽钢。但骨架应预先进行防腐处理,严禁黑铁进楼。2.1.4 固定骨架的连接件:主要是膨胀螺栓、铁垫板、垫圈、螺帽及与骨架固定的各种设计和安装所需要的连接件,其质量必须符合要求。2.2 主要机具:2.2.1 裁割、加工、组装金属板等所需的工作台、切割机、成型机、弯边机具、砂轮机、连接金属板的手提电钻、混凝土墙打眼电钻、钢板尺 (1m 长)、长卷尺、 盒尺、 锤子、 各种形状圆、扁)的钢凿子、铅丝、弹线用的粉线包、墨斗、小白线、手提砂轮、钳子、...

1、当您付费下载文档后,您只拥有了使用权限,并不意味着购买了版权,文档只能用于自身使用,不得用于其他商业用途(如 [转卖]进行直接盈利或[编辑后售卖]进行间接盈利)。
2、本站所有内容均由合作方或网友上传,本站不对文档的完整性、权威性及其观点立场正确性做任何保证或承诺!文档内容仅供研究参考,付费前请自行鉴别。
3、如文档内容存在违规,或者侵犯商业秘密、侵犯著作权等,请点击“违规举报”。

碎片内容

金属饰面板安装施工工艺设计标准

您可能关注的文档

文库响当当+ 关注
实名认证
内容提供者

该用户很懒,什么也没介绍

确认删除?
VIP
微信客服
  • 扫码咨询
会员Q群
  • 会员专属群点击这里加入QQ群
客服邮箱
回到顶部