电脑桌面
添加小米粒文库到电脑桌面
安装后可以在桌面快捷访问

变形缝模板体系VIP免费

变形缝模板体系_第1页
1/10
变形缝模板体系_第2页
2/10
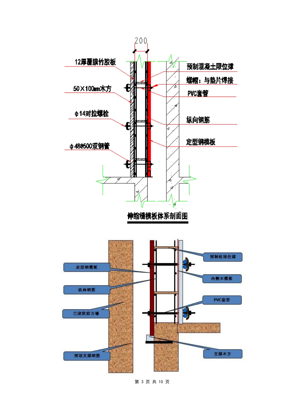
变形缝模板体系_第3页
3/10
江苏中南建筑产业集团有限责任公司变形缝模板体系做法编制单位:江苏中南建筑产业集团有限责任公司江苏中南建筑产业集团有限责任公司公司规定编号:QB-001变形缝模板体系第1页;共6页变形缝模板体系做法1编制目的变形缝处模板支设难度较大,拆除模板难度更大,易造成模板遗留在变形缝内;填充挤塑板和采用废旧模板制作成箱壳的做法无法保证剪力墙的平整度、垂直度以及砼密实度的质量。特编制此做法以提高变形缝位置模板支撑体系整体刚度,确保混凝土成型质量,并达到降本增效功能。第1页共10页2适用范围适用于本公司各项目部所施工工程中变形缝模板体系做法3工艺流程4工艺概述1)模板的制作:变形缝处墙体内模采用普通木模板或钢模,外模采用定型钢模板。钢模面板采用3mm厚钢板;纵横向龙骨采用50*2方钢,间距500mm;木模采用φ14对拉螺栓,纵横向间距500mm,钢模采用φ16对拉螺栓;模板两侧焊接20cm长φ48钢管,沿墙高方向间距500mm;顶部设2φ18吊钩。2)模板的加固:采用单向紧固螺杆,根据对拉螺栓孔的位置,将外模(即钢模)螺母与钢模板焊接成为一体,在固定模板时先将内、外侧模板上的螺栓孔对正,然后将螺杆拧入钢模上的螺母,最后加固内侧模板,以此形成普通模板与定型模板相结合的模板体系。第2页共10页第3页共10页图一5操作要点1)墙体钢筋保护层限位措施:采用同墙厚的预制混凝土限位撑块放置在两侧水平钢筋上,起到良好的限位功能。2)对拉螺栓加固:为确保螺杆在作业面一侧保持水平顺利穿入并紧固,重点关注钢板、螺母的焊接质量、下层顶板砼收面标高及模板两侧螺栓孔位置是否在同一条轴线上。如下图所示:图二3)大模板的拆卸及吊装第4页共10页图三4)外墙模板安装时底部支撑第5页共10页外墙外模底部加固利用平台外侧预埋φ25钢筋作为外模支撑点,预埋钢筋伸入混凝土中不应小于200mm,预埋钢筋间距不大于1500mm,具体根据外模尺寸设置预埋钢筋规格、间距,确保稳固、牢靠。5)墙板加固注意事项外板墙模板校正完毕后,必须与平台整体排架进行连接,确保外板墙与排架整体连接稳固,连接点不少于平台排架水平杆步距。6)变形缝混凝土成型效果现场实景照片第6页共10页第7页共10页第8页共10页图四第9页共10页图五6注意事项1)制做模板时,将内侧木模板与外侧钢模板相互对照制作;在钢模板的纵横向龙骨交点上成Φ16(Φ18)圆孔,间距500*500mm,并保证两侧对拉螺栓孔在一条轴线上,并在钢模板对拉螺栓孔处焊接4mm厚圆孔钢板,钢板上焊接Φ14(Φ16)螺帽,以便从内侧木模板一侧穿入螺杆进行固定。2)在大模板外边缘竖向方钢上焊接20cm长直径48mm钢管,通过钢管扣件与内支撑架连接成一个整体,切实保证模板定位准确、校正方便、固定牢靠。3)变形缝模板应使用86式钢大模,根据工程实际尺寸进行制作。第10页共10页

1、当您付费下载文档后,您只拥有了使用权限,并不意味着购买了版权,文档只能用于自身使用,不得用于其他商业用途(如 [转卖]进行直接盈利或[编辑后售卖]进行间接盈利)。
2、本站所有内容均由合作方或网友上传,本站不对文档的完整性、权威性及其观点立场正确性做任何保证或承诺!文档内容仅供研究参考,付费前请自行鉴别。
3、如文档内容存在违规,或者侵犯商业秘密、侵犯著作权等,请点击“违规举报”。

碎片内容

变形缝模板体系

您可能关注的文档

确认删除?
VIP
微信客服
  • 扫码咨询
会员Q群
  • 会员专属群点击这里加入QQ群
客服邮箱
回到顶部