电脑桌面
添加小米粒文库到电脑桌面
安装后可以在桌面快捷访问

大空间吊顶内钢骨架转换支撑施工工法

大空间吊顶内钢骨架转换支撑施工工法_第1页
1/8
大空间吊顶内钢骨架转换支撑施工工法_第2页
2/8
大空间吊顶内钢骨架转换支撑施工工法_第3页
3/8
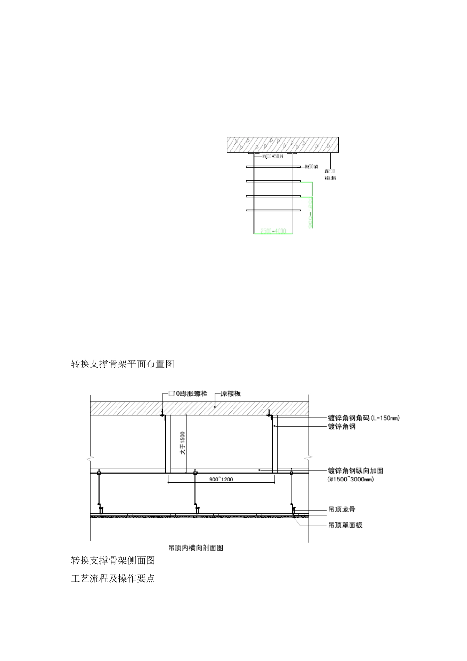
大空间吊顶转换支撑施工工法工法特点1 解决了大空间吊杆长度大于 1.5 米时其"长细比"过大大,而导致受到水平向力或轴向压力时容易失衡的问题。2 吊顶内的灯具、管线等静态轻量设备(如:吊顶内管线等可以固定,但空调风管不可以)可以直接固定到此转换支撑系统结构上,无需单独设吊装支架,节约材料。3 常规吊顶反支撑的做法容易被吊顶内较大的设备管路等阻挡,支撑只能倾斜一定角度安装,但容易导致龙骨受力不均匀,在吊顶完成后影响平整度,本吊顶转换支撑在同一空间内是一个整体系统,有效与吊顶内设备结合避免冲突,形成的网格受力均匀,给轻钢龙骨吊顶的安装提供了一个良好的基层结构。范围用于顶面是天机板以及吊顶内空间大于 2.5 米以上的吊顶(例如:一层贵宾室以)。工艺原理根据吊顶龙骨的安装规律,采用槽钢及角钢骨架焊接的方式,在适当标高形成可以供龙骨生根的钢骨架网,将吊顶龙骨的生根点由原结构转换至设计标高处。转换支撑钢结构网格的设计尺寸可以根据实际吊顶龙骨的排布确定,一般横向角钢用于安装吊筋,间距在 900~1200mm,纵向方管支撑只起到系统稳定作用间距在2500~4000mm 之间,竖向角钢间距 1000~1500mm,竖向角钢通过角钢角码、膨胀螺栓与结构顶或圈梁连接。转换支撑骨架平面布置图转换支撑骨架侧面图工艺流程及操作要点工艺流程转换支撑设计→钢骨架加工→活动脚手架搭设→测量放线→与原结构生根连接→钢骨架网格焊接→防锈处理→吊顶施工操作要点脚手架搭设此工艺适用于大空间结构建筑,因此施工前需要搭设活动脚手架,按照规范搭设脚手架后,顶层应铺木板,以便测量放线等工作面的展开。测量放线1 首先严格审核原始依据包括各类设计图纸,现场测量起始点位,数据等的正确性,坚持测量作业与图纸数据步步有校核。一切定位放线工作要经自检,实测时要当场做好原始记录,测后要及时做好记号,并要保护好。2 现场测量放线实施的首要工作是熟悉施工现场并对原建筑的施工现场进行测量,并弹出基准线,并逐步核实图纸尺寸数据,发现误差及时调整修正施工图纸。3 放线结束后应及时组织建设单位和监理方技术人员进行复查, 达到要求后方可作为指导施工的依据,并绘制吊顶排版图。4 根据吊顶排版图和龙骨的安装工艺,布置龙骨安装方向和排版,以此为依据,结合原结构顶可利用固定点的位置,进一步对钢骨架转换支撑进行排版设计并编制方案。钢骨架焊接安装1 根据现场编制焊接方案下料,并按照尺寸分类堆放。2 ...

1、当您付费下载文档后,您只拥有了使用权限,并不意味着购买了版权,文档只能用于自身使用,不得用于其他商业用途(如 [转卖]进行直接盈利或[编辑后售卖]进行间接盈利)。
2、本站所有内容均由合作方或网友上传,本站不对文档的完整性、权威性及其观点立场正确性做任何保证或承诺!文档内容仅供研究参考,付费前请自行鉴别。
3、如文档内容存在违规,或者侵犯商业秘密、侵犯著作权等,请点击“违规举报”。

碎片内容

大空间吊顶内钢骨架转换支撑施工工法

您可能关注的文档

爱的疯狂+ 关注
实名认证
内容提供者

该用户很懒,什么也没介绍

确认删除?
VIP
微信客服
  • 扫码咨询
会员Q群
  • 会员专属群点击这里加入QQ群
客服邮箱
回到顶部