电脑桌面
添加小米粒文库到电脑桌面
安装后可以在桌面快捷访问

500立方水池完整设计资料

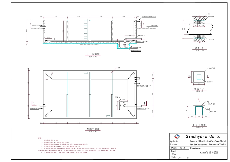
500立方水池完整设计资料_第1页
1/13
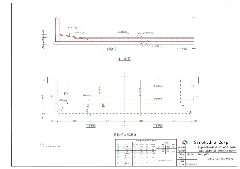
500立方水池完整设计资料_第2页
2/13
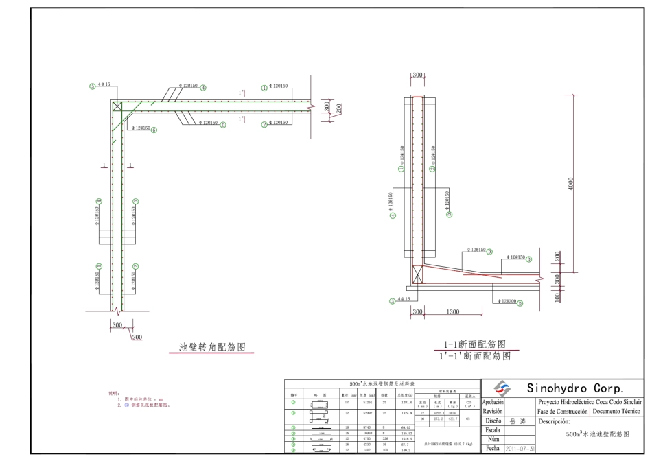
500立方水池完整设计资料_第3页
3/13
500 立方水池结构计算 1. 设计计算参考的规范规程 CECS138-2002 给水排水工程钢筋混凝土水池结构设计规程 GB50010-2002混凝土结构设计规范 GB50007-2002 建筑地基基础设计规范 2. 水池荷载及几何尺寸 该水池设计蓄水量500 立方,净宽8.2 米,净长16.4 米,净深3.8 米。 水池内部设3 堵导流隔墙。导流墙高3.8 米,长4.1 米,厚30cm。 水池顶部宽度方向,设3 根B□100×6 的方管用做联系杆。 该水池设计采用钢筋混凝土结构。 水池底板埋深为 2.5 米。水池壁外侧覆土重度为 18KN/m³。 3. 结构计算 水池的结构计算采用 structural 2011 结构计算软件对其进行电算。 水池底板结构简化为弹性地基板。水池四周覆土2.5 米厚。计算分为两种荷载情况进行计算,一种为水池满水状态。另一种为水池的无蓄水状态。 导流墙部分只起对水的导流作用,不参与结构受力,所以在结构计算时不加载导流墙结构部分。 3.1 水池无蓄水状态结构计算。 水池在无蓄水状态时的荷载情况为只承担水池周围回填土的土压力和自重,设计计算土的重度为18KN/m³ 。 3.1.1 受力分布及YY 方向的弯矩分布图 水池在该荷载情况下最大弯矩为 20KNm/m。最大弯矩所在位置见上图。 3.1.2 XX 方向弯矩分布图。 XX 方向最大弯矩为 24.78KNm/m。最大弯矩所在位置见上图 3.1.3 无蓄水状态下YY 方向剪力分布图。 YY 方向最大剪力为 26KN/m 最大剪力所在位置见上图所示。 3.1.4 无蓄水状态下XX 方向剪力分布图。 XX 方向最大剪力为 56KN/m ,最大剪力所在位置见上图。 3.1.5 水池在无蓄水状态时 XX 向轴向力分布图 3.2 水池在满水状态下结构计算 水池在满水状态时除承担水池外侧土压力的荷载外,同时还要承担水池内的水压力的荷载。考虑到导流墙设计为砌体结构,在满水状态时对水池的约束力不够大。所以在进行水池的满水状态结构计算时不考虑导流墙对水池结构的影响。 3.2.1 水池在满水状态时经电算后YY方向的弯矩分布图 水池在满水状态时,最大弯矩为 45KNm/m ,最大弯矩所在位置如上图所示。 3.2.2 水池在满水状态时经电算后 XX 方向的弯矩分布图。 水池在满水状态时XX 方向的最大弯矩为 60 KNm/m 最大弯矩所在位置如上图所示。 3.2.3 水池在满水状态时YY 向的剪力分布图 水池在满水状态时最大剪力为 94KN/m,所在位置如上图所示。 3.2.4 水池在满水状态时XX 方向剪力分布图 XX 方向上最大剪力...

1、当您付费下载文档后,您只拥有了使用权限,并不意味着购买了版权,文档只能用于自身使用,不得用于其他商业用途(如 [转卖]进行直接盈利或[编辑后售卖]进行间接盈利)。
2、本站所有内容均由合作方或网友上传,本站不对文档的完整性、权威性及其观点立场正确性做任何保证或承诺!文档内容仅供研究参考,付费前请自行鉴别。
3、如文档内容存在违规,或者侵犯商业秘密、侵犯著作权等,请点击“违规举报”。

碎片内容

500立方水池完整设计资料

您可能关注的文档

确认删除?
VIP
微信客服
  • 扫码咨询
会员Q群
  • 会员专属群点击这里加入QQ群
客服邮箱
回到顶部