电脑桌面
添加小米粒文库到电脑桌面
安装后可以在桌面快捷访问

一幅总平面图的绘画过程

一幅总平面图的绘画过程_第1页
1/12
一幅总平面图的绘画过程_第2页
2/12
一幅总平面图的绘画过程_第3页
3/12
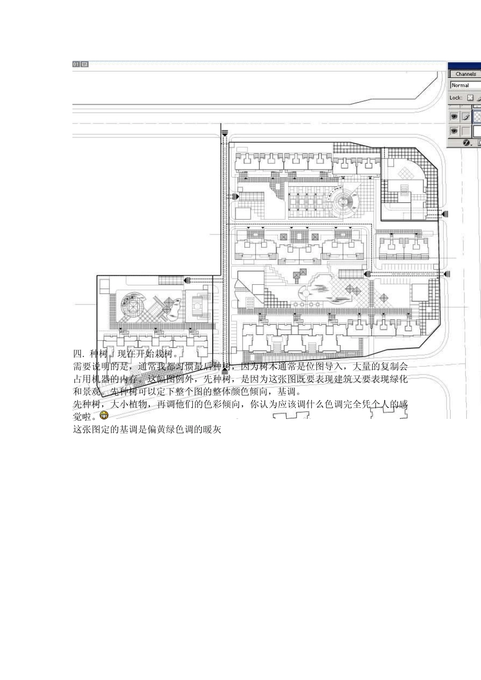
这最早是发在公司内部网的论坛上的一个教程,现在稍作修改发了上来,目的是抛砖引玉,希望大家多多指点,多多讨论。 总平面图是投标中的第一张表现图,作用与性质不用偶说了吧,它的重要性大家都知道!应该认真点画。 一. 在ps 中打开文件! 从 cad 中导入的是位图文件,但是一般情况下这只是一幅彩色稿。 无论是bmp 还是tif 文件,我一般习惯用转换格式的方式改变为黑白格式, 这样转换可以保持精度,其他的转换方式多多少少都会有点损失。:) 1.先转换为 gray 模式。 2.在gray 模式中调整对比度,调到最大。 3.再转换回 RGB 模式。 好了,一幅黑白稿出现了! 二. 分离图线。有些人可能喜欢不分。我习惯分离图线层,因为这样好处有如下: 1.所有的物体可以在图线下面来做,一些没有必要做的物体可以少做或不做。节省了很多时间。 2.物体之间的互相遮档可以产生一些独特的效果! 3.图线可以遮挡一些物体因选取不准而产生的错位和模糊,使边缘看起来很整齐,使图看起来很美。 具体步骤是以 colour range 选取方式选中白色,删除。现在图线是单独的一层了。把这层命名为图线层。 三. 分离成功。为了观察方便可以在图线后增加一层填充为白色,当然也可直接填充绿色变草地层,白色的好处是画超级大平面图的时候会比较容易了解自己的进度 从现在开始,我每个新增加的图层都会命名。原因: 1 .个人习惯。 2 . 可以有效防止产生大量无用的废层和无物体层(即空层)。 3 . 方便别人,将来别人修改你的图能够很轻松地找到每个物体 四. 种树。现在开始栽树。 需要说明的是,通常我都习惯最后种树,因为树木通常是位图导入,大量的复制会占用机器的内存。这幅图例外,先种树,是因为这张图既要表现建筑又要表现绿化和景观。先种树可以定下整个图的整体颜色倾向,基调。 先种树,大小植物,再调他们的色彩倾向,你认为应该调什么色调完全凭个人的感觉啦。 这张图定的基调是偏黄绿色调的暖灰 五. 接着做道路和铺装。 选取区域的时候可以用各种选择工具,不要拘泥于一种工具。 填色后调颜色,要和树木色彩协调。 注意道路的颜色一定不要用纯灰色的,尽量做成冷灰或暖灰,我这里做成偏黄绿色色调! 六. 做基础设施和地面小装饰,如停车场,沟,支架,彩色钢板等,然后调色,和整体色彩要协调。 七. 做主体建筑和山包。 建筑:主体建筑的色彩一很重要,调的时候一定要谨慎,不要和主体色彩有强烈的对比。...

1、当您付费下载文档后,您只拥有了使用权限,并不意味着购买了版权,文档只能用于自身使用,不得用于其他商业用途(如 [转卖]进行直接盈利或[编辑后售卖]进行间接盈利)。
2、本站所有内容均由合作方或网友上传,本站不对文档的完整性、权威性及其观点立场正确性做任何保证或承诺!文档内容仅供研究参考,付费前请自行鉴别。
3、如文档内容存在违规,或者侵犯商业秘密、侵犯著作权等,请点击“违规举报”。

碎片内容

一幅总平面图的绘画过程

您可能关注的文档

确认删除?
VIP
微信客服
  • 扫码咨询
会员Q群
  • 会员专属群点击这里加入QQ群
客服邮箱
回到顶部