电脑桌面
添加小米粒文库到电脑桌面
安装后可以在桌面快捷访问

汽机基础及基座施工方案(包含预埋组件安装施工)VIP免费

汽机基础及基座施工方案(包含预埋组件安装施工)_第1页
1/94
汽机基础及基座施工方案(包含预埋组件安装施工)_第2页
2/94
汽机基础及基座施工方案(包含预埋组件安装施工)_第3页
3/94
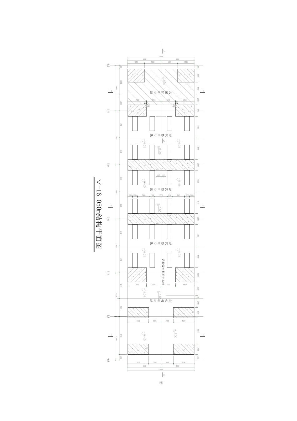
1汽机基础及基座施工方案(包含预埋组件安装施工)1.1工程概况:1.1.1根据招标文件描述,汽轮发电机基础位于MX厂房A、B跨之间,T.3~T.9轴线之间,基础上安装汽轮机、发电机、低压缸、励磁机等大型设备;汽机筏基总长度为67.8m,总宽度为16.0m。1.1.2汽轮发电机基础框架柱共12个,截面尺寸分别为3200mm×4000mm、2740mm×4500mm、2500mm×5000mm、3500mm×4500mm、2630mm×16000mm(墙板),筏基分别与循环水泵坑、凝结水泵坑底板连接。汽轮发电机筏板基础底标高为-21.550m,顶标高为-18.00m和-16.05,高度为3.550m和5.500m,为大体积混凝土。1.1.3汽轮发电机基座为钢筋混凝土框架结构,自-16.050m至8.450m,总高度为24.506m,分为-7.50m、±0.00m和8.45m三层。1.1.4汽轮发电机运转层结构为钢筋混凝土结构,顶标高8.45m,平面尺寸16.00m×67.80m,运转层结构横向有6道混凝土大梁,纵向有2道混凝土大梁,台板大梁最大高度4.2m,台板大梁最小高度2.75m。1.1.5运转结构复杂,钢筋直径大且配筋复杂,预埋件、预埋套管、预埋螺栓、电缆预埋套管、预埋锚固板等结构预埋多、复杂,要求精度高,与钢筋冲突部位多,对钢筋绑扎和预埋件的精度影响大。T.3T.5T.4T.6T.7T.8T.9TC汽轮发电机组中心线发电机中心线凝汽器中心线凝汽器中心线凝汽器中心线高压缸中心线-16.050m结构平面图T.3T.5T.4T.6T.7T.8T.9TC汽轮发电机组中心线发电机中心线凝汽器中心线凝汽器中心线凝汽器中心线高压缸中心线-7.500m结构平面图T.3T.5T.4T.6T.7T.8T.9TC汽轮发电机组中心线发电机中心线凝汽器中心线凝汽器中心线凝汽器中心线高压缸中心线±0.000m结构平面图T.3T.5T.4T.6T.7T.8T.9TC汽轮发电机组中心线发电机中心线凝汽器中心线凝汽器中心线凝汽器中心线高压缸中心线8.450m结构平面图B-B剖面图C-C剖面图D-D剖面图1.2施工准备:。1.2.1人员准备:汽机基座施工各阶段施工人员已按编制的劳动力计划落实。1.2.2机械准备:汽机基座施工中需要的各种施工机械(塔吊、半挂、全站仪、经纬仪、水准仪、测温仪、汽车泵、布料机、地泵、搅拌车、装载机、自卸汽车、振动棒等)已就位。1.2.3材料准备:根据施工措施确定使用原材料名称、规格、数量。用于工程中的非周转性材料按照各技术规格书进行采购。并根据现场施工进度到现场,材料进场应进行质量验证,并对原材料进行试验合格后方可用于工程施工。混凝土保温养护所需的塑料薄膜、保温麻袋、棉被等按计划全部进场,并堆放在施工现场;测温导线安装完毕,测温仪正常使用。1.3汽机基座施工关注的重点:1.3.1重要性:汽轮发电机基础是常规岛最重要和最大的一个动力设备基础,其施工质量将直接关系到机组的安全运行。1.3.2汽轮发电机筏板基础混凝土方量大、混凝土厚度5.5m,并存在异型区域,因此混凝土保温、养护,温度控制及防止开裂将是施工中的重点环节。1.3.3汽轮发电机筏板基础混凝土浇筑方量大(约5665m³)、面积大(1085㎡),混凝土浇筑机械布置及筏基混凝土分层浇筑覆盖速度,将直接影响是否出现混凝土冷缝,是混凝土浇筑的重中之重。1.3.4筏基底板上有框架柱、墙板及设备基础支墩插筋,确保插筋规格、数量、位置的准确及加固将影响上部结构施工,将特别关注。1.3.5筏基底板上有大量预埋件,预埋件由钢结构施工队集中加工,分批验收,QC1现场100%监督检查,检查合格后报QC2验收,一起验收合格后及时报广核工程师验收,保证预埋件加工质量。1.3.6运转层框架梁板截面高度大(4.2m),因此梁板底支撑架稳定性将直接影响施工安全。1.3.7运转层平台预埋螺栓、预埋套管、厂供埋件数量多,且精度要求高,为确保预埋螺栓、预埋套管、厂供埋件定位尺寸准确,减少偏差,所有地脚螺栓使用独立固定支架固定。1.3.8汽轮发电机台板混凝土方量较大,属于大体积混凝土,摊铺面积大,浇筑过程不得中断,不得产生施工冷缝,对混凝土浇筑要求较高。1.3.9由于运转层平台钢筋与预埋螺栓、预埋套管、埋件可能出现冲突,所以在钢筋绑扎前,一定要对该部分的预埋螺栓、预埋套管、埋件尺寸进行测量校核,对照预埋螺栓、预埋套管、埋件的位置和尺寸绑扎钢筋,避免出现钢筋与预埋螺栓、预埋...

1、当您付费下载文档后,您只拥有了使用权限,并不意味着购买了版权,文档只能用于自身使用,不得用于其他商业用途(如 [转卖]进行直接盈利或[编辑后售卖]进行间接盈利)。
2、本站所有内容均由合作方或网友上传,本站不对文档的完整性、权威性及其观点立场正确性做任何保证或承诺!文档内容仅供研究参考,付费前请自行鉴别。
3、如文档内容存在违规,或者侵犯商业秘密、侵犯著作权等,请点击“违规举报”。

碎片内容

汽机基础及基座施工方案(包含预埋组件安装施工)

确认删除?
VIP
微信客服
  • 扫码咨询
会员Q群
  • 会员专属群点击这里加入QQ群
客服邮箱
回到顶部