电脑桌面
添加小米粒文库到电脑桌面
安装后可以在桌面快捷访问

普通型钢悬挑脚手架技术交底资料VIP免费

普通型钢悬挑脚手架技术交底资料_第1页
1/3
普通型钢悬挑脚手架技术交底资料_第2页
2/3
普通型钢悬挑脚手架技术交底资料_第3页
3/3
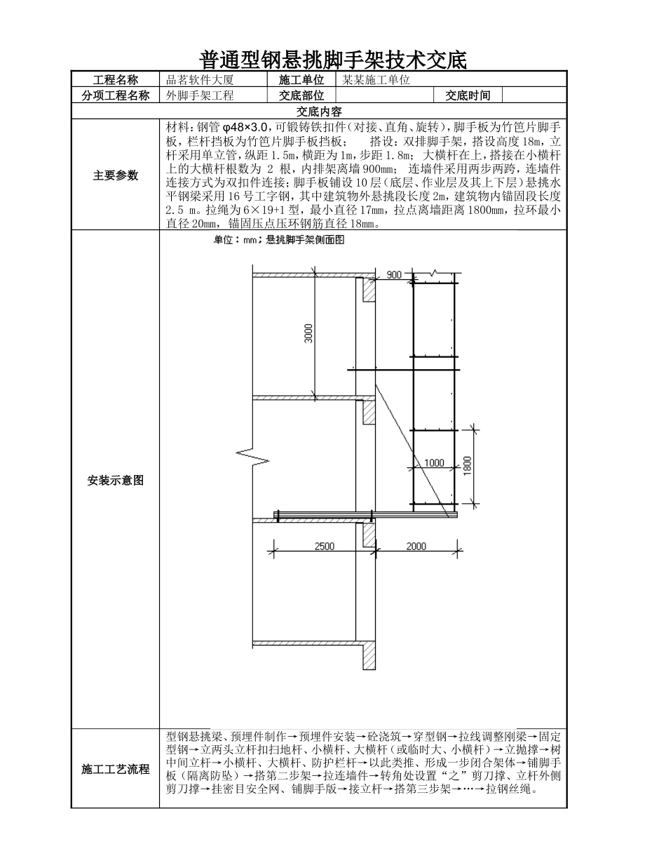
普通型钢悬挑脚手架技术交底工程名称品茗软件大厦施工单位某某施工单位分项工程名称外脚手架工程交底部位交底时间交底内容主要参数材料:钢管φ48×3.0,可锻铸铁扣件(对接、直角、旋转),脚手板为竹笆片脚手板,栏杆挡板为竹笆片脚手板挡板;搭设:双排脚手架,搭设高度18m,立杆采用单立管,纵距1.5m,横距为1m,步距1.8m;大横杆在上,搭接在小横杆上的大横杆根数为2根,内排架离墙900mm;连墙件采用两步两跨,连墙件连接方式为双扣件连接;脚手板铺设10层(底层、作业层及其上下层)悬挑水平钢梁采用16号工字钢,其中建筑物外悬挑段长度2m,建筑物内锚固段长度2.5m。拉绳为6×19+1型,最小直径17mm,拉点离墙距离1800mm,拉环最小直径20mm,锚固压点压环钢筋直径18mm。安装示意图施工工艺流程型钢悬挑梁、预埋件制作→预埋件安装→砼浇筑→穿型钢→拉线调整刚梁→固定型钢→立两头立杆扣扫地杆、小横杆、大横杆(或临时大、小横杆)→立抛撑→树中间立杆→小横杆、大横杆、防护栏杆→以此类推、形成一步闭合架体→铺脚手板(隔离防坠)→搭第二步架→拉连墙件→转角处设置“之”剪刀撑、立杆外侧剪刀撑→挂密目安全网、铺脚手版→接立杆→搭第三步架→…→拉钢丝绳。质量要求脚手架搭设的技术要求与允许偏差序号项目一般质量要求1构架尺寸(立杆纵距、立杆横距、步距)误差±20mm2立杆的垂直偏差架高≤25m±50mm>25m±100mm3纵向水平杆的水平偏差±20mm4横向水平杆的水平偏差±10mm5节点处相交杆件的轴线距节点中心距离≤150mm6相邻立杆接头位置相互错开,设在不同的步距内,相邻接头的高度差应>500mm7上下相邻纵向水平杆接头位置相互错开,设在不同的立杆纵距内,相邻接头的水平距离应>500mm,接头距立杆应小于立杆纵距的1/38杆件搭接1)搭接部位应跨过与其相接的纵向水平杆或立杆,并与其连接(绑扎)固定2)搭接长度和连接要求应符合以下要求:类别杆别搭接长度连接要求扣件式钢管脚手架立杆>1m连接扣件数量依承载要求确定,且不少于2个纵向水平杆不少于2个连接扣件9节点连接扣件式钢管脚手架拧紧扣件螺栓,其拧紧力矩应不小于40N.m,且不大于65N.m其它脚手架按相应的连接要求质量保证措施安全保证措施1、脚手架搭设人员必须是经过国家现行标准<<特种作业人员安全技术考核管理规则>>考核合格的专业架子工。搭设脚手架人员必须戴安全帽、安全带,穿防滑鞋。2、脚手架搭设时应按下列阶段进行质量检查,发现问题应及时校正。1)基础完工后及脚手架搭设前;2)操作层施加荷载前;3)每搭设完10m高度后;4)达到设计高度后。3、使用阶段1)操作层上的施工荷载应符合设计要求,不得超载;2)不得将模板支撑、缆风绳、泵送混凝土管等固定在脚手架上,严禁任意悬挂起重设备;3)六级及六级以上大风和雾、雨天应停止脚手架作业,雨后上架操作应有防滑措施。3)在脚手架使用期间,严禁任意拆除下列杆件:主节点处的纵、横向水平杆,纵、横向扫地杆;4)连墙杆撑;要拆除上述任一杆件均应采取安全措施,并报主管部门批准。严禁在脚手架基础及其邻近进行挖掘作业,否则应采取安全措施,并报主管部门批准。5)在脚手架上进行电、气焊作业时,必须有防火措施和专人看守;6)工地临时用电线路的架设及脚手架接地、避雷措施等应按国家现行标准执行。4、脚手架的拆除1)接收到项目部脚手架架体拆除任务书后方可进行拆除作业工作。2)拆除现场设警戒区域,挂醒目的警戒标志。警戒区域内严禁非操作人员通行或在脚手架下方继续施工,监护人员履行职责,配备良好的通讯装置。3)仔细检查吊运机械包括夹具是否安全可靠,吊运机械不允许搭设在脚手架上,另立设置。4)拆除人员进入岗位以后,先进行检查,加固松动部位,清除步层内留的材料、物件及垃圾块,所有清理物安全输送至地面,严禁高处抛掷。5)按搭设的反程序进行拆除,即安全网—竖脚手板—垫铺脚手板—防护栏杆—搁栅—剪刀撑杆—连墙杆—大横杆—小横杆—立杆—底排的大横杆、搁栅、平杆、斜撑杆。(即先搭后拆,后搭先拆的顺序进行拆除。)6)不允许分立面拆除或上、下二步同时拆除,认真做到一步一清、一杆一清。7)所有连墙杆、...

1、当您付费下载文档后,您只拥有了使用权限,并不意味着购买了版权,文档只能用于自身使用,不得用于其他商业用途(如 [转卖]进行直接盈利或[编辑后售卖]进行间接盈利)。
2、本站所有内容均由合作方或网友上传,本站不对文档的完整性、权威性及其观点立场正确性做任何保证或承诺!文档内容仅供研究参考,付费前请自行鉴别。
3、如文档内容存在违规,或者侵犯商业秘密、侵犯著作权等,请点击“违规举报”。

碎片内容

普通型钢悬挑脚手架技术交底资料

确认删除?
VIP
微信客服
  • 扫码咨询
会员Q群
  • 会员专属群点击这里加入QQ群
客服邮箱
回到顶部