电脑桌面
添加小米粒文库到电脑桌面
安装后可以在桌面快捷访问

智能多媒体服务器使用手册

智能多媒体服务器使用手册_第1页
1/9
智能多媒体服务器使用手册_第2页
2/9
智能多媒体服务器使用手册_第3页
3/9
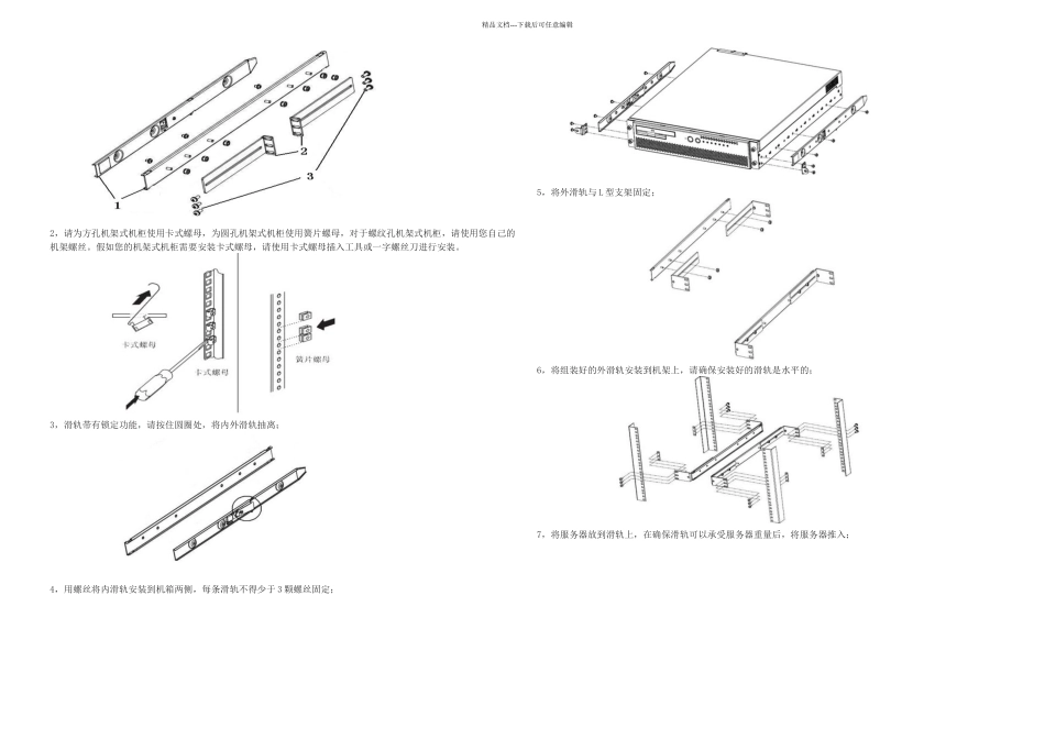
精品文档---下载后可任意编辑致用户的一封信 2声明 1 注意事项 1 开箱检查 1 随机配件 1 确认配置 1 产品基本说明 Error: Reference source not found 指示灯 2 按钮 2 接口 2 光盘驱动器说明 2 机架安装 2 滑轨的安装方法 2 托盘的安装方法 4 驱动光盘使用说明 4 驱动光盘使用方法 I 4 驱动光盘使用方法 II Error: Reference source not found 安装操作系统时的驱动加载 5 Windows 下的磁盘驱动加载 5 Linux 下的磁盘驱动加载 6 Sues 9/10 的驱动加载 7 常见故障及注意事项 8 尊敬的用户:衷心感谢您选用了智能多媒体服务器!本手册介绍了智能多媒体服务器的系统的设置、安装和使用过程,有助于您更详细地了解和便捷地使用此系列产品。请将我方产品的包装物交废品收购站回收利用,以利于污染预防,造福人类。杭州海康威视系统技术有限公司拥有本手册的版权。本手册中的内容如有变动恕不另行通知。假如您对本手册有疑问或建议请向杭州海康威视系统技术有限公司垂询。杭州海康威视系统技术有限公司2024 年 3 月声明在您正式使用智能多媒体服务器之前,请先阅读以下声明。只有您阅读了以下声明并且同意以下条款后,方可正式开始使用此系列产品;假如您对以下条款有任何疑问,请您和您的供货商联系或直接与我们联系。如您未向我们就以下条款提出疑问并开始使用智能多媒体服务器,则是默认您已经同意了以下的条款。1 .我们提醒用户特别注意:在任何时候,除了我们提示您可以修改的参数以外,您不要修改智能多媒体服务器主板 BIOS 或 SCSI/SAS 控制器 BIOS 中的任何其他参数。2.在您使用的智能多媒体服务器出现任何硬件故障时,或您希望对硬件进行任何升级时,请您将您机器的详细硬件配置反应给我们的技术服务中心;您不要自行拆卸服务器机箱及机箱内任何硬件设备。3.智能多媒体服务器的内存、CPU、风扇、CPU 散热片、硬盘托架、CPU 支架、硬盘、网卡都是特别规格的,请您不要将它们和任何其他型号机器的相应设备混用。4.用户在智能多媒体服务器上碰到的任何软件问题,我们希望用户首先和相应软件的提供商联系,由他和我们联系,以方便我们沟通、共同解决用户碰到的问题。假如您有任何使用疑难问题,请联系我们的客户服务中心。6 、我们特别提醒您:在使用过程中,注意对您的数据进行必要的备份。7、本手册中涉及的各软、硬件产品的标识,名称版权归相应公司拥有。注意事项...

1、当您付费下载文档后,您只拥有了使用权限,并不意味着购买了版权,文档只能用于自身使用,不得用于其他商业用途(如 [转卖]进行直接盈利或[编辑后售卖]进行间接盈利)。
2、本站所有内容均由合作方或网友上传,本站不对文档的完整性、权威性及其观点立场正确性做任何保证或承诺!文档内容仅供研究参考,付费前请自行鉴别。
3、如文档内容存在违规,或者侵犯商业秘密、侵犯著作权等,请点击“违规举报”。

碎片内容

智能多媒体服务器使用手册

MY shop+ 关注
实名认证
内容提供者

欢迎挑选适合自己的材料。

确认删除?
VIP
微信客服
  • 扫码咨询
会员Q群
  • 会员专属群点击这里加入QQ群
客服邮箱
回到顶部