电脑桌面
添加小米粒文库到电脑桌面
安装后可以在桌面快捷访问

2025年江苏省安装造价员案例试题带图VIP专享

2025年江苏省安装造价员案例试题带图_第1页
1/22
2025年江苏省安装造价员案例试题带图_第2页
2/22
2025年江苏省安装造价员案例试题带图_第3页
3/22
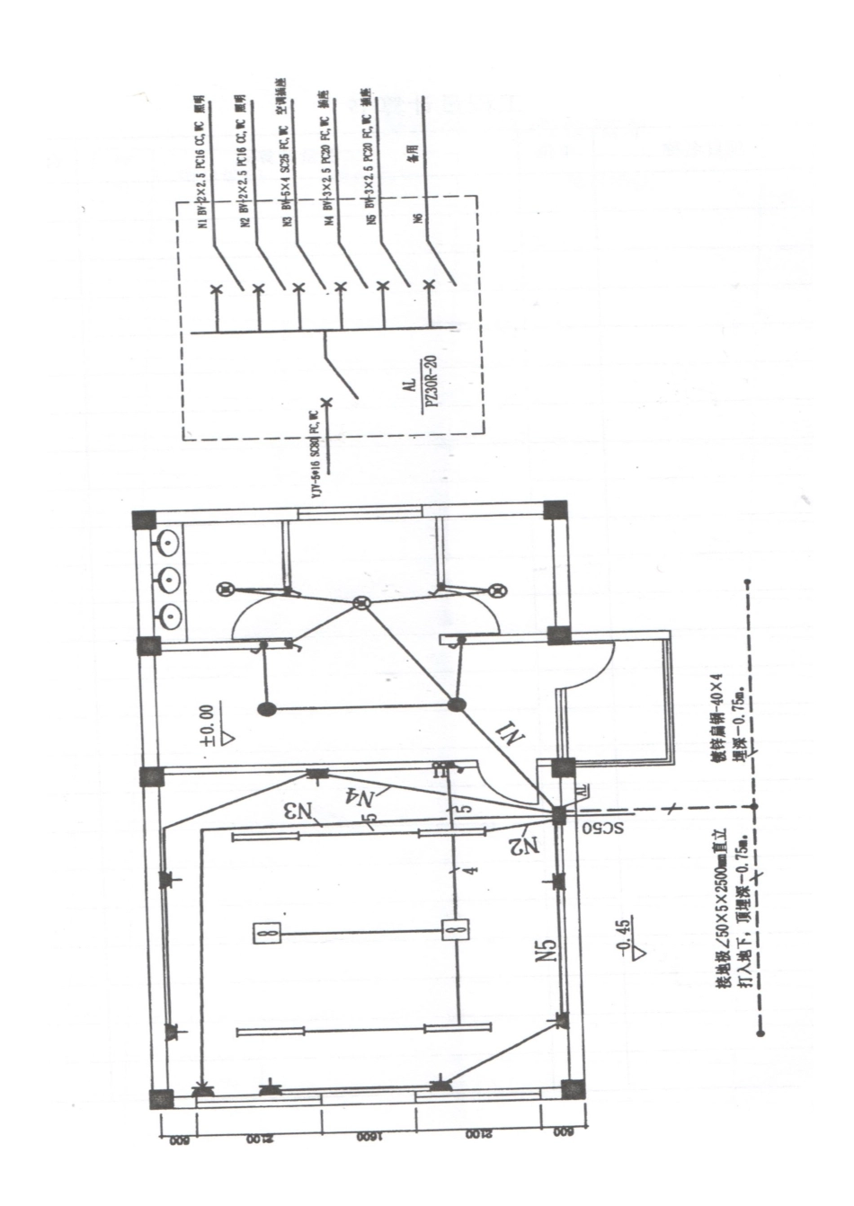
江苏省工程造价编审专业人员考试安装造价案例分析试卷题号一二三四五六总分计分人核分人得分注意:本卷为案例分析题,电气初级做 1、3 题,给排水初级做 2、4 题,总分为 100 分。中级做第 1、4、5 题或第 2、3、5 题,总分为 120 分。高级做第 1、4、6 题或第2、3、6 题,总分为 120 分。规定分析合理,结论对的。一.(本题 60 分)请根据给定的电气工程施工图,计算工程量并编制分部分项工程量清单。(一)设计阐明1、该建筑物为单层砖混构造,建筑物净高 3.6m,顶板为现浇,建筑物室内外高差 0.45m。2、电源采用三相四线制、电缆埋地穿管入户, 室外部分管道埋深 0.8m;配线线路所有采用穿管暗敷,照明插座线路采用 BV2.5mm2 穿 PVC 刚性阻燃电工管,2 根穿PC16,3~5 根穿 PC20;柜机空调插座采用 BV5×4 mm2穿 SC25。3、入户处做反复接地, 配电箱 AL 下设断接卡子一处,接地母线采用-40×4 镀锌扁钢,室外埋深 0.75m,坚土;接地极采用镀锌角钢∠50×50×5×2500mm,直立打入地下,顶埋深 0.75m。接地电阻不得不小于 1 欧姆。4、配电箱 AL 型号为 PZ30R/20,厂家成品供应,箱内无端子板;配电箱尺寸为350(高)×250(宽)×120(深),底边安装高度距地 1.6m。5、其他安装高度:开关 A86K11-10N 、A86K21-10N、调速开关 A86KT250 安装高度 1.3m; 插座 A86Z223-10N、A86Z14-25 安装高度 0.3m; 荧光灯YG2-2 2×40W、防水防尘灯1×60W、圆球吸顶灯Φ300 1×40W、吊扇Φ1400 吸顶安装。(二)答题规定1、进配电箱 AL 的管线,仅计算配管部分(出外墙 1.5m)。2、尺寸在图纸中按比例量取(1∶100)。3、电气配管进入地坪或顶板的深度均按 100mm 计算。 4、不考虑挖填土工。报考等级得分评 卷人工程量计算书序号项目名称单位工程量计算式合计12SC80MI 1.5+分部分项工程量清单序号项目编码项目名称项目特征计量单位工程数量二.(本题 60 分)请根据给定的给排水工程施工图,计算工程量并编制分部分项工程量清单。(一)设计阐明1、图中标高和管长以“m”,其他都以“mm”计。得分评 卷人2、给水管采用镀锌钢管,丝扣连接;排水管采用 UPVC 塑料排水管,胶水粘接。3、给水管穿楼板应设钢套管,套管公称直径比给水管公称直径大二号,套管长度每处按 300mm 计。4、室内给排水管道安装完毕且在隐蔽前,给水管需消毒冲洗并做水压试验,试验压力 1.0MPa;排水管需做灌水试...

1、当您付费下载文档后,您只拥有了使用权限,并不意味着购买了版权,文档只能用于自身使用,不得用于其他商业用途(如 [转卖]进行直接盈利或[编辑后售卖]进行间接盈利)。
2、本站所有内容均由合作方或网友上传,本站不对文档的完整性、权威性及其观点立场正确性做任何保证或承诺!文档内容仅供研究参考,付费前请自行鉴别。
3、如文档内容存在违规,或者侵犯商业秘密、侵犯著作权等,请点击“违规举报”。

碎片内容

2025年江苏省安装造价员案例试题带图

您可能关注的文档

确认删除?
VIP
微信客服
  • 扫码咨询
会员Q群
  • 会员专属群点击这里加入QQ群
客服邮箱
回到顶部