电脑桌面
添加小米粒文库到电脑桌面
安装后可以在桌面快捷访问

板筋的计算规则

板筋的计算规则_第1页
1/21
板筋的计算规则_第2页
2/21
板筋的计算规则_第3页
3/21
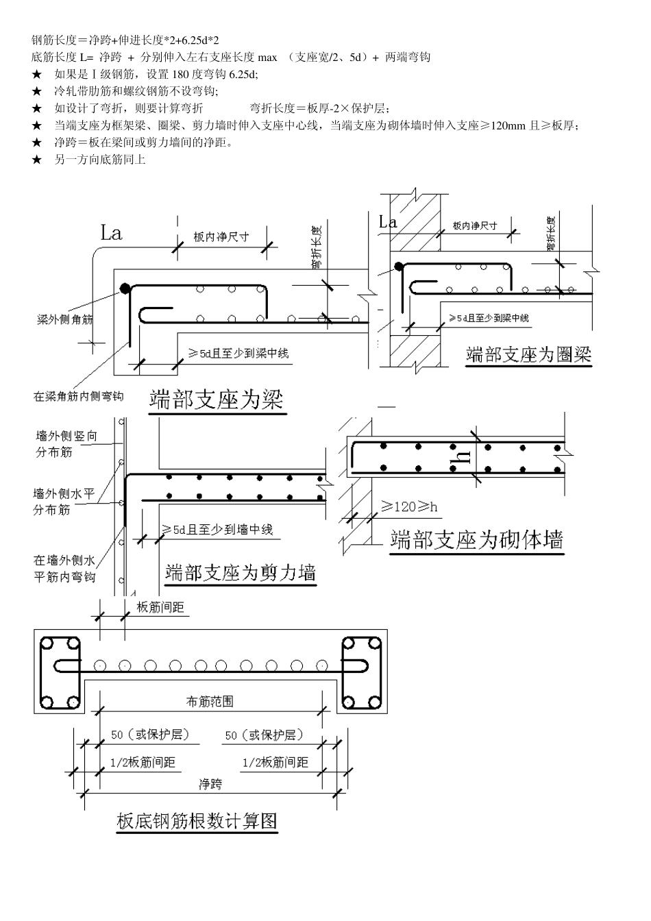
建筑 板的平法标注 板底筋长度 钢筋长度=净跨+伸进长度*2+6.25d*2 底筋长度L= 净跨 + 分别伸入左右支座长度max (支座宽/2、5d)+ 两端弯钩 ★ 如果是Ⅰ级钢筋,设置180 度弯钩6.25d; ★ 冷轧带肋筋和螺纹钢筋不设弯钩; ★ 如设计了弯折,则要计算弯折 弯折长度=板厚-2×保护层; ★ 当端支座为框架梁、圈梁、剪力墙时伸入支座中心线,当端支座为砌体墙时伸入支座≥120mm 且≥板厚; ★ 净跨=板在梁间或剪力墙间的净距。 ★ 另一方向底筋同上 板底筋根数 底筋根数,扣减值有三种情况: 1)距支座边距离有50m m ;板边有梁支座及剪力墙支座时,从梁、墙内边计算,起始步距为50m m ; ● 底板钢筋根数=(净跨-50*2)÷板筋间距+1 2)一个保护层;板边没有梁、剪力墙等砼构件,而是平板悬挑或直接搁置在砌体墙上时,从板边计算,起始步距为一个保护层; ● 底板钢筋根数=(净跨-保护层*2)÷板筋间距+1 3)1/2 板筋间距;至于起始步距为1/2 板筋间距的情况,为04G101-4 第25 页设置的距梁角筋为1/2 板筋间距。 ● 底板钢筋根数=(净跨+保护层×2+左梁角筋1/2 直径+右梁角筋1/2 直径-板筋间距)÷板筋间距+1 ★ 另一方向底筋根数同上 ★ 钢筋重量=一根钢筋长度×根数×钢筋直径每米重量 kg/m 板负筋长度 1)板负筋为 负筋长度=锚入长度+板内净尺寸+弯折长度 锚入长度 La+弯勾 按标注计算 板厚-保护层*2 (板厚-保护层) 板负筋根数 负筋根数,扣减值有三种情况: 1)距支座边距离有50mm;板边有梁支座及剪力墙支座时,从梁、墙内边计算,起始步距为50mm; ● 负筋根数=(净跨-50*2)÷板筋间距+1 2)一个保护层;板边没有梁、剪力墙等砼构件,而是平板悬挑或直接搁置在砌体墙上时,从板边计算,起始步距为一个保护层; ● 负筋根数=(净跨-保护层*2)÷板筋间距+1 3)1/2 板筋间距;至于起始步距为1/2 板筋间距的情况,为04G101-4 第25 页设置的距梁角筋为1/2 板筋间距。 ● 负筋根数=(净跨+保护层×2+左梁角筋1/2 直径+右梁角筋1/2 直径-板筋间距)÷板筋间距+1 ★ 钢筋重量=一根钢筋长度×根数×钢筋直径每米重量 kg/m 板分布筋 分布筋和负筋参差150m 1、分布筋带弯勾 分布筋长度=轴线(净跨)长度-负筋标注长度×2+参差长度(150m m )×2+弯勾(6.25d)×2 2、分布筋不带弯勾 分布筋长度=轴线(净跨)长度-负筋标注...

1、当您付费下载文档后,您只拥有了使用权限,并不意味着购买了版权,文档只能用于自身使用,不得用于其他商业用途(如 [转卖]进行直接盈利或[编辑后售卖]进行间接盈利)。
2、本站所有内容均由合作方或网友上传,本站不对文档的完整性、权威性及其观点立场正确性做任何保证或承诺!文档内容仅供研究参考,付费前请自行鉴别。
3、如文档内容存在违规,或者侵犯商业秘密、侵犯著作权等,请点击“违规举报”。

碎片内容

板筋的计算规则

小辰4+ 关注
实名认证
内容提供者

出售各种资料和文档

确认删除?
VIP
微信客服
  • 扫码咨询
会员Q群
  • 会员专属群点击这里加入QQ群
客服邮箱
回到顶部