电脑桌面
添加小米粒文库到电脑桌面
安装后可以在桌面快捷访问

样板展示区施工方案

样板展示区施工方案_第1页
1/6
样板展示区施工方案_第2页
2/6
样板展示区施工方案_第3页
3/6
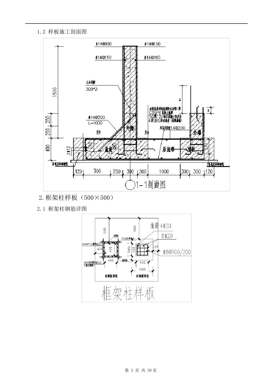
第 1 页 共 39 页 目录 1.地下室底板、外墙样板 .................................................... 2 2.框架柱样板 .............................................................. 3 3.楼梯样板 ................................................................ 5 第 2 页 共 39 页 1.地下室底板、外墙样板 底板厚400mm,底板双层双向钢筋14@150。砼C35。 墙筋:14@150 双层双向,砼C35,梅花状拉筋6@450×450。墙厚300。 墙体迎水面保护层厚度 50mm,内侧保护层厚度 20mm,基础底板顶面保护层厚度 20mm,底面保护层厚度 50mm。 1.1 样板施工平面图 第 3 页 共 39 页 1.2 样板施工剖面图 2.框架柱样板(500×500) 2.1 框架柱钢筋详图 第 4 页 共 39 页 2.2 样板施工详图 图 柱钢筋样板立面图 图 柱样板三维效果图 2.3 柱样板施工要点 (1)钢筋保护层厚度≥20mm。每边设保护层塑料卡。 (2)箍筋与主筋要垂直,箍筋的接头(弯钩叠合处)应交错布置在四角纵向钢筋上;箍筋绑扣相互间应成八字形。 第 5 页 共 39 页 3.楼梯样板 3.1 楼梯样板平面图 3.2 楼梯样板立面图 第 6 页 共 39 页 3.3 楼梯可抽板条清扫口示意 3.4 参照下图进行施工

1、当您付费下载文档后,您只拥有了使用权限,并不意味着购买了版权,文档只能用于自身使用,不得用于其他商业用途(如 [转卖]进行直接盈利或[编辑后售卖]进行间接盈利)。
2、本站所有内容均由合作方或网友上传,本站不对文档的完整性、权威性及其观点立场正确性做任何保证或承诺!文档内容仅供研究参考,付费前请自行鉴别。
3、如文档内容存在违规,或者侵犯商业秘密、侵犯著作权等,请点击“违规举报”。

碎片内容

样板展示区施工方案

您可能关注的文档

确认删除?
VIP
微信客服
  • 扫码咨询
会员Q群
  • 会员专属群点击这里加入QQ群
客服邮箱
回到顶部