电脑桌面
添加小米粒文库到电脑桌面
安装后可以在桌面快捷访问

脚手架的分类

脚手架的分类_第1页
1/17
脚手架的分类_第2页
2/17
脚手架的分类_第3页
3/17
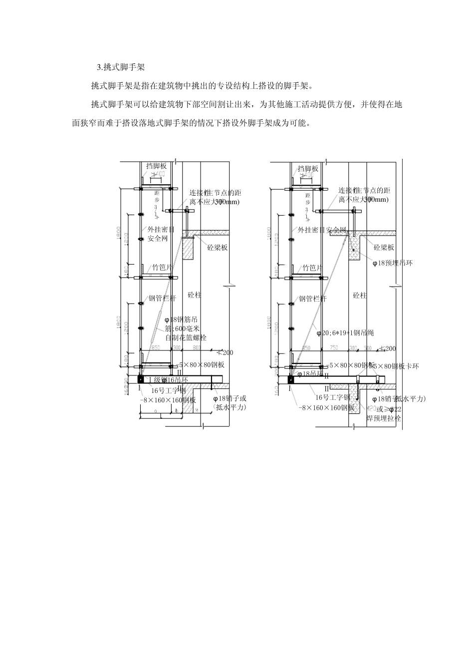
脚手架的分类 脚手架分类可根据施工对象的位置关系、支承特点、结构形式以及使用材料等划分为多种类型。 一、 按建筑物的位置关系分 1 、外脚手架 外脚手架统指在建筑物外围所搭设的脚手架。外脚手架使用广泛,各种落地式外脚手架、挂式脚手架、挑式脚手架、吊式脚手架等,一般均在建筑物外围搭设。外脚手架多用于外墙砌筑、外立面装修以及钢筋混凝土工程。 15000图4-4 剪刀撑布置剪刀撑 2 、里脚手架 里脚手架是指建筑物内部使用的脚手架。里脚手架有各种形式,常见的有凳式里脚手架、支柱式里脚手架、梯式里脚手架、组合式操作平台等。里脚手架用于内墙砌筑、外墙砌筑、内部装修工程以及安装和钢筋混凝土工程。 二、 按脚手架支承特点分 1 .落地式外脚手架 它是自地面搭设的外脚手架。落地式外脚手架中有各种多立杆式钢管脚手架、门式钢管脚手架、桥式脚手架等,它们的结构均支承于地面。 2 .挂式脚手架 挂式脚手架是指挂置于建筑物的柱、墙等结构上的,并随建筑物的外高而移动 的脚手架。挂式脚手架在高层建筑外装修工程中较多地采用。 φ 14∠50×5钢管或∠50×5约1000约10001200φ 16φ 32φ 16φ 20φ 32×2.5φ 14200100018001200L=120-90×5L=140-90×5L=140-90×5L=140-100×5L=140φ 12φ 12φ 32×2.5φ 32×2.5图6-1 附墙挂架的两种方式挂钩(φ 20) 3.挑式脚手架 挑式脚手架是指在建筑物中挑出的专设结构上搭设的脚手架。 挑式脚手架可以给建筑物下部空间割让出来,为其他施工活动提供方便,并使得在地面狭窄而难于搭设落地式脚手架的情况下搭设外脚手架成为可能。 φ18预埋吊环-5×80钢板卡环或≥2φ22焊预埋拉栓≧≧1/3步距挡脚板连接件(主节点的距离不应大于300m m )砼梁板外挂密目安全网竹笆片φ20;6*19+1钢吊绳φ18吊环-8×160×160钢板16号工字钢-5×80×80钢板φ18销子抵水平力)ⅠⅡⅠⅡ≦200砼柱钢管栏杆钢管栏杆砼柱≦200ⅡⅠⅡⅠφ18销子或抵水平力)-5×80×80钢板16号工字钢-8×160×160钢板Ⅰ级钢φ16吊环φ18钢筋吊筋;600毫米自制花篮螺栓竹笆片外挂密目安全网砼梁板连接件(主节点的距离不应大于300m m )挡脚板≧1/3步距≧ 栏杆脚手板大横杆小横杆斜杆横杆小横杆大横杆脚手板栏杆斜杆12001000图6-13 挑杆式脚手架 4 .吊式脚手架 吊式脚手架是指从建筑物顶部或楼板上设置悬吊结构,利用吊索悬吊吊架或吊篮,由起重机具来提升或下降的脚手架。吊式脚手架在高层建筑装修施...

1、当您付费下载文档后,您只拥有了使用权限,并不意味着购买了版权,文档只能用于自身使用,不得用于其他商业用途(如 [转卖]进行直接盈利或[编辑后售卖]进行间接盈利)。
2、本站所有内容均由合作方或网友上传,本站不对文档的完整性、权威性及其观点立场正确性做任何保证或承诺!文档内容仅供研究参考,付费前请自行鉴别。
3、如文档内容存在违规,或者侵犯商业秘密、侵犯著作权等,请点击“违规举报”。

碎片内容

脚手架的分类

您可能关注的文档

确认删除?
VIP
微信客服
  • 扫码咨询
会员Q群
  • 会员专属群点击这里加入QQ群
客服邮箱
回到顶部