电脑桌面
添加小米粒文库到电脑桌面
安装后可以在桌面快捷访问

盘扣式脚手架详细计算书

盘扣式脚手架详细计算书_第1页
1/11
盘扣式脚手架详细计算书_第2页
2/11
盘扣式脚手架详细计算书_第3页
3/11
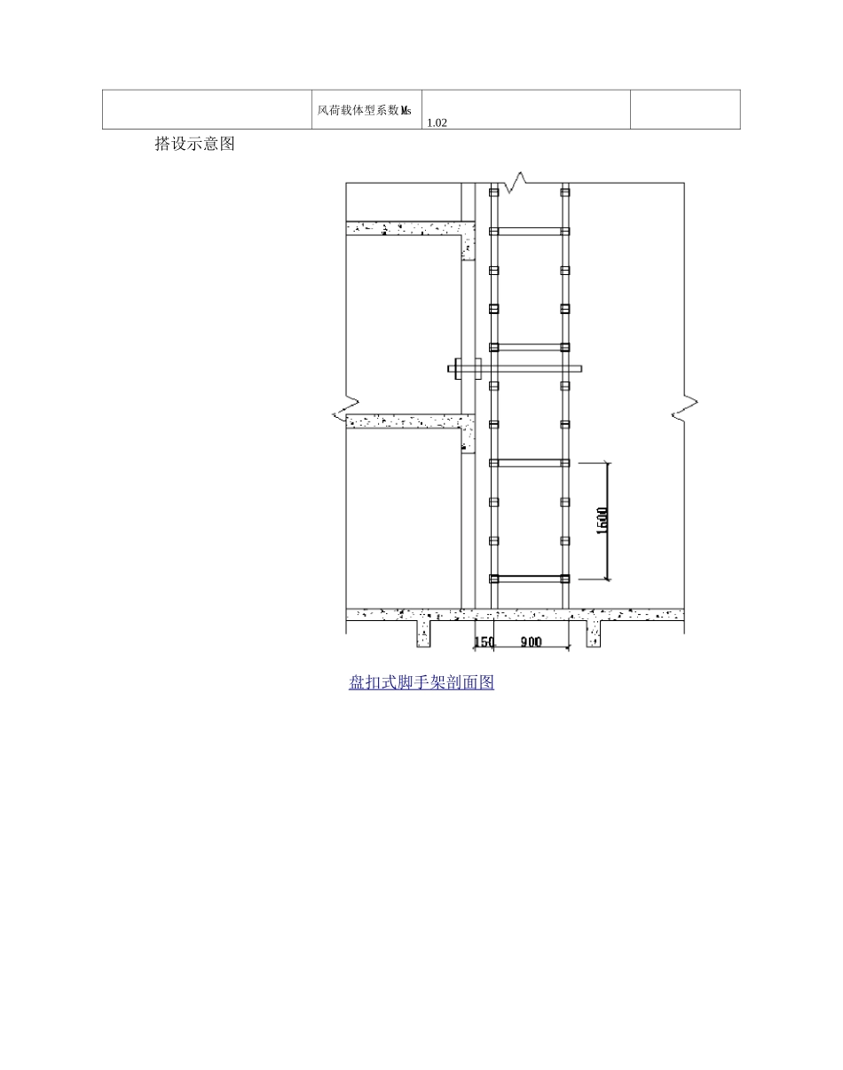
盘扣式脚手架计算书计算依据:1、《建筑施工承插型盘扣式钢管支架安全技术规程》JGJ231-20102、《建筑地基基础设计规范》GB50007-20113、《建筑结构荷载规范》GB50009-20124、《钢结构设计规范》GB50017-2003、脚手架参数脚手架架体高度 H(m)13.4脚手架沿纵向搭设长度 L(m)25立杆纵向间距 la(m)1.8立杆横向间距 lb(m)0.9立杆步距 h(m)1.5脚手架总步数 n8顶部防护栏杆高 hi(m)1.2纵横向扫地杆距立杆底距离 h2(mm)200内立杆离建筑物距离 a(mm)150脚手架立杆安放位置混凝土板二、荷载设计脚手板类型冲压钢脚手板脚手板自重标准值 Gkjb(kN/m2)0.35脚手板铺设方式6 步 1 设密目式安全立网自重标准值 Gkmw(kN/m2)0.01挡脚板类型冲压钢脚手板挡板栏杆与挡脚板自重标准值 Gkdb(kN/m)0.17挡脚板铺设方式6 步 1 设装修脚手架作业层数1装修脚手架荷载标准值 Qkzj(kN/m2)2风荷载标准值®k(kN/m2)(连墙件、立杆稳定性)基本风压®0(kN/m2)0.40.688,0.445风荷载高度变化系数应(连墙件、立杆稳定性)1.687,1.09风荷载体型系数 Ms1.02搭设示意图盘扣式脚手架剖面图盘扣式脚手架立面图连墙件间 WF水平斜杆Aa缶盘扣式脚手架平面图三、横向横杆验算横向横杆钢管类型A-SG-1500横向横杆自重 Gkhg(kN)0.05单跨间横杆根数 njg2间横杆钢管类型B-SG-1500间横杆自重 Gkjg(kN)0.043纵向横杆钢管类型B-SG-1500纵向横杆自重 Gkzg(kN)0.043横向横杆抗弯强度设计值⑴(N/mm2)205横向横杆截面惯性矩 I(mm4)92800横向横杆弹性模量 E(N/mm2)206000横向横杆截面抵抗矩 W(mm3)3860承载力使用极限状态qTOxqhg/lb+GkjbXla/gg+l))+1.4xQkzjx./(+1)=1.2x(0.050/0.9+0.35xl.8/(2+l))+1.4x2.0xl.8/(2+l)=1.999kN/m正常使用极限状态q'=(Gkhg/lb+Gkjbxla/(njg+1))+Qkzjxla/(njg+1)=(0.050/0.9+0.35x1.8/(2+1))+2.0x1.8/(2+1)=1.466kN/m计算简图如下1、抗弯验算M=qlb2/8=1.999x0.92/8=0.202kN・mmaxbo=M/W=0.202x106/3860=52.43N/mm2口 f]=205N/mm2max满足要求。2、挠度验算Vmax=5q'lb4/(384EI)=5x1.466x9004/(384x206000x92800)=0.65mmS[v]=min[lb/150,10]=min[900/150,10]=6mm 满足要求。3、支座反力计算承载力使用极限状态R]=R2=qlb/2=1.999x0.9/2=0.899kN 正常使用极限状态R]/=R2,=qflb/2=1.466x0.9/2=0.659kN四、间横杆验算单跨间横杆根数 njg2间横杆钢管类型B-SG-1500间横杆自重 Gkjg(kN)0.043间横杆抗弯强度设计值(f)(N/mm2)205间横杆截面惯性矩 I(mm...

1、当您付费下载文档后,您只拥有了使用权限,并不意味着购买了版权,文档只能用于自身使用,不得用于其他商业用途(如 [转卖]进行直接盈利或[编辑后售卖]进行间接盈利)。
2、本站所有内容均由合作方或网友上传,本站不对文档的完整性、权威性及其观点立场正确性做任何保证或承诺!文档内容仅供研究参考,付费前请自行鉴别。
3、如文档内容存在违规,或者侵犯商业秘密、侵犯著作权等,请点击“违规举报”。

碎片内容

盘扣式脚手架详细计算书

wxg+ 关注
实名认证
内容提供者

该用户很懒,什么也没介绍

相关文档

确认删除?
VIP
微信客服
  • 扫码咨询
会员Q群
  • 会员专属群点击这里加入QQ群
客服邮箱
回到顶部