电脑桌面
添加小米粒文库到电脑桌面
安装后可以在桌面快捷访问

2025年河北市政工程倒班楼暖通全套设计施工图纸节点图多整理版施工方案

2025年河北市政工程倒班楼暖通全套设计施工图纸节点图多整理版施工方案_第1页
1/4
2025年河北市政工程倒班楼暖通全套设计施工图纸节点图多整理版施工方案_第2页
2/4
2025年河北市政工程倒班楼暖通全套设计施工图纸节点图多整理版施工方案_第3页
3/4
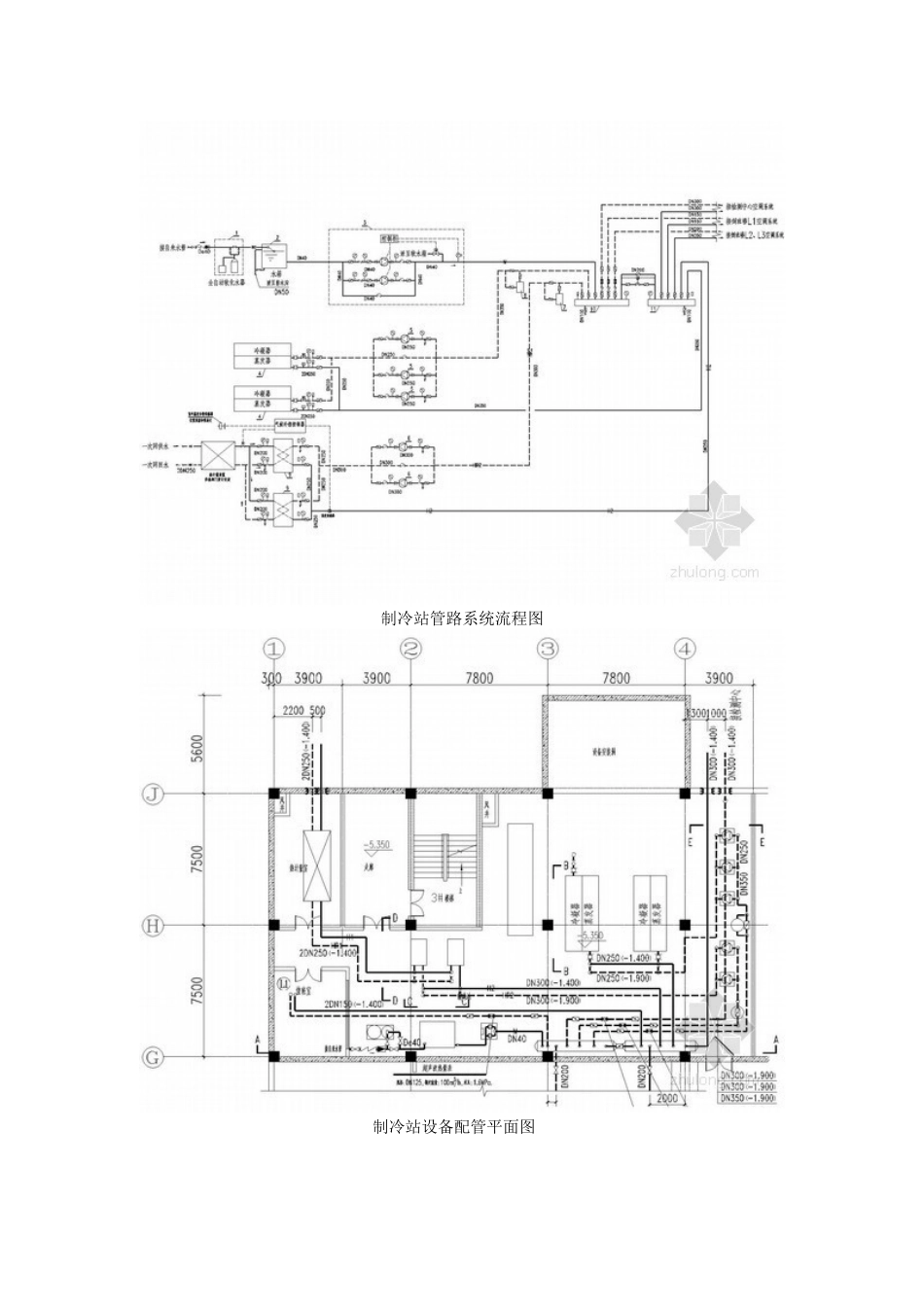
[河北]市政工程倒班楼暖通全套设计施工图纸(节点图多)下载请点击:http://down6.zhulong。com/tech/detailprof1000759NT.htm 河北石家庄某市政工程倒班楼暖通全套设计施工图纸;该建筑为综合性大楼, 功能规定比较齐全,建筑物功能为食堂、宿舍。建筑面积 18500m2, 其中空调面积 15825m2,高度45。3m, 地下 1 层,功能为车库及设备用房,地上 11 层。设计内容:该大楼的空调、通风、防排烟设计,地下室人防通风设计,以及厨房区域地板辐射采暖设计.制冷站管路系统流程图制冷站设备配管平面图 空调水管系统原理图空调水平面图下载请点击:http://down6。zhulong。com/tech/detailprof1000759NT。htm

1、当您付费下载文档后,您只拥有了使用权限,并不意味着购买了版权,文档只能用于自身使用,不得用于其他商业用途(如 [转卖]进行直接盈利或[编辑后售卖]进行间接盈利)。
2、本站所有内容均由合作方或网友上传,本站不对文档的完整性、权威性及其观点立场正确性做任何保证或承诺!文档内容仅供研究参考,付费前请自行鉴别。
3、如文档内容存在违规,或者侵犯商业秘密、侵犯著作权等,请点击“违规举报”。

碎片内容

2025年河北市政工程倒班楼暖通全套设计施工图纸节点图多整理版施工方案

您可能关注的文档

确认删除?
VIP
微信客服
  • 扫码咨询
会员Q群
  • 会员专属群点击这里加入QQ群
客服邮箱
回到顶部