电脑桌面
添加小米粒文库到电脑桌面
安装后可以在桌面快捷访问

2025年河北市政工程倒班楼暖通全套设计施工图纸节点图多

2025年河北市政工程倒班楼暖通全套设计施工图纸节点图多_第1页
1/4
2025年河北市政工程倒班楼暖通全套设计施工图纸节点图多_第2页
2/4
2025年河北市政工程倒班楼暖通全套设计施工图纸节点图多_第3页
3/4
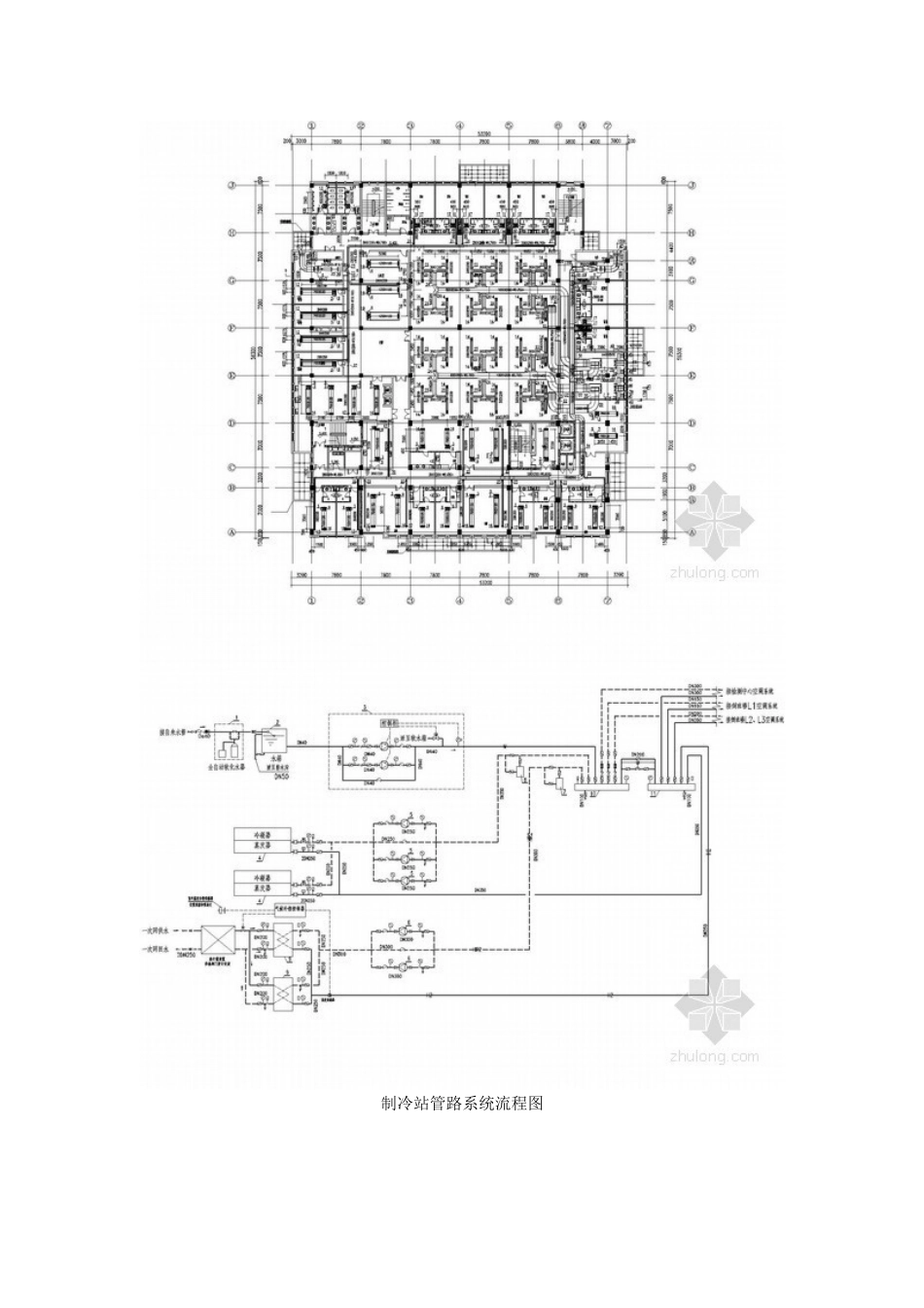
[河北 ] 市政工程倒班楼暖通全套设计施工图纸(节点图 多)下载请点击:htt p: / /do wn 6 。 z h ulong 。 c o m/ t ech/ det a il p ro f10 0 07 5 9 N T 。 htm 河北石家庄某市政工程倒班楼暖通全套设计施工图纸;该建筑为综合性大楼, 功能规定比较齐全,建筑物功能为食堂、宿舍。建筑面积1 8 5 0 0 m2, 其中空调面积 1 58 25 m 2,高度45。3 m, 地下 1 层,功能为车库及设备用房,地上 11 层。设计内容:该大楼的空调、通风、防排烟设计,地下室人防通风设计,以及厨房区域地板辐射采暖设计。制冷站管路系统流程图制冷站设备配管平面图 空调水管系统原理图空调水平面图下载请点击:http :/ / do w n 6.zhul o ng . com/tech/detailpr of1 0007 5 9NT.htm

1、当您付费下载文档后,您只拥有了使用权限,并不意味着购买了版权,文档只能用于自身使用,不得用于其他商业用途(如 [转卖]进行直接盈利或[编辑后售卖]进行间接盈利)。
2、本站所有内容均由合作方或网友上传,本站不对文档的完整性、权威性及其观点立场正确性做任何保证或承诺!文档内容仅供研究参考,付费前请自行鉴别。
3、如文档内容存在违规,或者侵犯商业秘密、侵犯著作权等,请点击“违规举报”。

碎片内容

2025年河北市政工程倒班楼暖通全套设计施工图纸节点图多

您可能关注的文档

确认删除?
VIP
微信客服
  • 扫码咨询
会员Q群
  • 会员专属群点击这里加入QQ群
客服邮箱
回到顶部