电脑桌面
添加小米粒文库到电脑桌面
安装后可以在桌面快捷访问

水平防护棚安全专项施工方案

水平防护棚安全专项施工方案_第1页
1/22
水平防护棚安全专项施工方案_第2页
2/22
水平防护棚安全专项施工方案_第3页
3/22
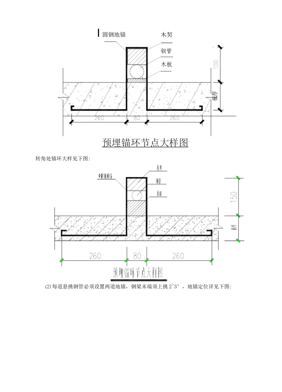
水平防护棚安全专项施工方案一、编制依据2. 写字楼结构、建筑施工图纸;3. 法律规范、标准:建筑施工手册(第四版);建筑工程施工质量统一验收标准 GB503-2025建筑施工高处作业安全技术法律规范 JGJ80-91建筑施工扣件式钢管脚手架安全技术规程 JGJ130-2025建筑施工安全检查标准 JGJ59-2025建设部[29]87 号文件二、工程概况1.基本概况A、B 座写字楼单体概况:防护棚设计为双层防砸,悬挑梁采纳① 48*3.0mm 标准钢管,间距 1.5m;垂直于悬挑梁方向采纳① 48*3.0 钢管作为次梁,间距 0.5m,上下两层形成网格,钢管之间采纳扣件连接牢固;上层钢序号项目内 容1层数A、B 座地上均为 35 层2标准层层高A、B 座标准层均为 3.6m3避难层层高A、B 座均为 4.8m4建筑总高度A、B 座均为 136.5m5结构形式均为框架结构6结构周长A、B 座均为 165.2m7架体使用周长每栋楼均为 166.1m2.防护棚设计概况综合考虑安全、经济的原则,并结合本工程实际情况,A 区两栋写字楼均设置 2 道水平防护,分别设置在地上十一层、地上二十七层。管间隙满铺一层竹跳板,采纳 22#铁丝与钢管主梁绑扎牢固;满铺 2 层安全密目网;铺设 15mm厚旧模板两层;最上层钢管压顶。防护棚悬挑末端用钢管搭设上翻 1.5m 栏杆,内挂钢丝网,外挂密目安全网。防护棚钢管必须统一涂刷红白色油漆。悬挑钢梁外伸 4 山,锚入主体结构段长 2.0m。距结构边缘 3.9m 处拉一道 6x19 股©15.5mm 光面钢丝绳,钢丝绳隔一布一,。在防护棚所在楼层的上一层结构边梁侧埋设©18 吊环(一级钢),预埋于梁内。所有钢丝绳须用手动葫芦或紧线钳张拉紧,钢丝绳连接每处设置四个钢丝绳绳夹,绳夹夹座应扣在钢丝绳的工作段上,钢丝绳夹间的距离不小于 1mm。锚环采纳©18 圆钢,现场冷加工成“A 型,预埋在结构梁或板上,每根挑架设三个锚环,挑梁穿进锚环后用木楔削紧(详节点大样)。四、施工工艺流程在结构楼面上按 1.5M 间距埋设预埋环> 混凝土浇筑后在预埋环中安置悬挑钢管按 0.5 米间距布置水平钢管上层楼面混凝土中埋拉环间距 3 米设置斜拉钢丝绳—— 防护架上满铺竹跳板——安全密目网、旧模板铺设—— 外防护栏杆设置、满挂安全网,立杆涂刷红白相间颜色。五、施工方法1.地锚施工(1)各楼层地锚在混凝土浇筑前必须预埋到位,预埋锚环采纳① 18 圆钢冷弯而成,U 型钢筋锚环须预埋至混凝土梁、板底层钢筋位置,并与混凝土梁、板底层钢筋焊接牢固,锚环两...

1、当您付费下载文档后,您只拥有了使用权限,并不意味着购买了版权,文档只能用于自身使用,不得用于其他商业用途(如 [转卖]进行直接盈利或[编辑后售卖]进行间接盈利)。
2、本站所有内容均由合作方或网友上传,本站不对文档的完整性、权威性及其观点立场正确性做任何保证或承诺!文档内容仅供研究参考,付费前请自行鉴别。
3、如文档内容存在违规,或者侵犯商业秘密、侵犯著作权等,请点击“违规举报”。

碎片内容

水平防护棚安全专项施工方案

确认删除?
VIP
微信客服
  • 扫码咨询
会员Q群
  • 会员专属群点击这里加入QQ群
客服邮箱
回到顶部